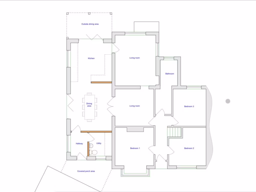
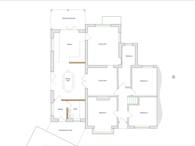
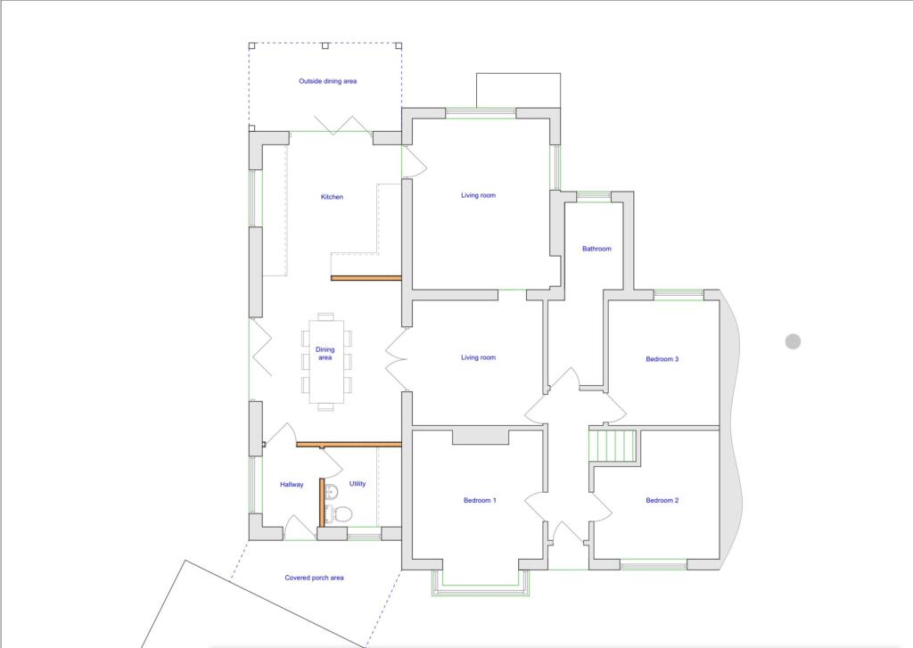
**Standout Features:**
- Semi-detached bungalow with planning permission for substantial extension.
- Located on a larger-than-average private plot within a quiet cul-de-sac.
- Three spacious double bedrooms plus an attic room with en-suite.
- Multiple living spaces including a family kitchen breakfast room and triple aspect dining room.
- Generous driveway with parking for up to five cars, plus a garage currently utilized as a gym and additional lounge.
- Low crime area with excellent mobile signal.
**Summary:**
Discover this charming semi-detached bungalow nestled in a peaceful cul-de-sac, offering the perfect blend of comfort and future potential. With three double bedrooms and an attic room featuring an en-suite, this home is ideal for families or those seeking extra space. Enjoy the generous living areas, including a light-filled family kitchen and a dining room with garden access, perfect for entertaining. The expansive private garden wraps around the property, providing a serene outdoor retreat.
Additionally, planning permission has been granted for a side extension, allowing for the creation of a new kitchen, dining area, and utility space, maximizing the property's footprint and configurability. With ample parking for five cars and a garage that serves as a gym, convenience is at your doorstep. Located just over a mile from Falmouth town center's amenities and beaches, this home presents a rare opportunity in a sought-after area. Act swiftly to secure a viewing—properties like this are becoming increasingly rare!
5 bedroom detached house for sale in Queen Anne Gardens, Falmouth, TR11 — £675,000 • 5 bed • 3 bath • 18998 ft²
3 bedroom detached house for sale in The Gables, 2 Kelley Road, Falmouth TR11 4JR, TR11 — £695,000 • 3 bed • 2 bath • 1673 ft²
2 bedroom semi-detached house for sale in Bosmeor Road, Falmouth, TR11 — £325,000 • 2 bed • 1 bath • 798 ft²
2 bedroom semi-detached bungalow for sale in Hichens Lane, Falmouth, TR11 — £275,000 • 2 bed • 1 bath • 772 ft²
4 bedroom detached house for sale in Venton Road, Falmouth, TR11 — £525,000 • 4 bed • 2 bath • 1155 ft²
4 bedroom semi-detached house for sale in Boslowick Road, Falmouth, TR11 — £395,000 • 4 bed • 2 bath • 998 ft²






































































































































































