Large freehold building with established income and strong conversion potential.
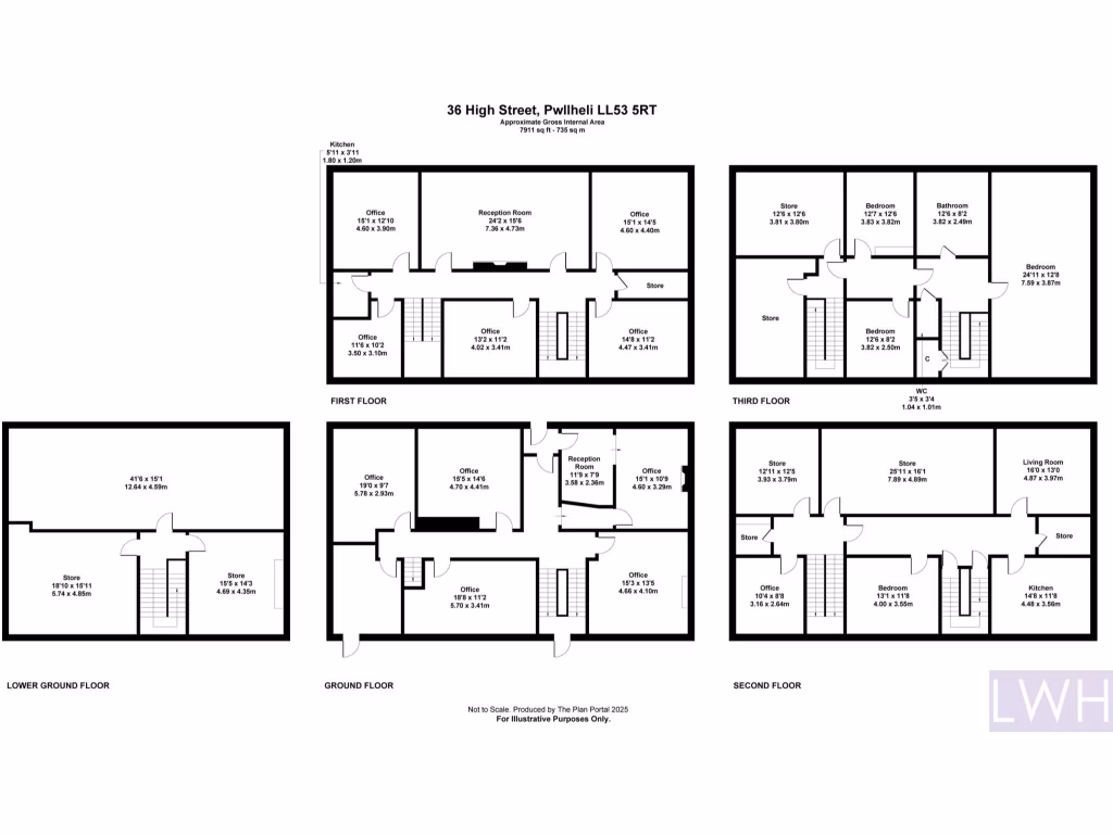
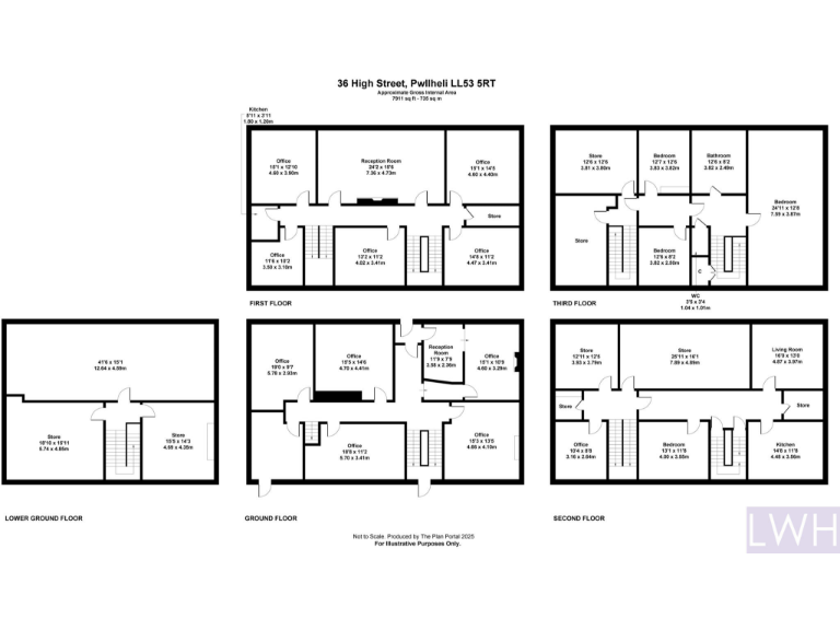
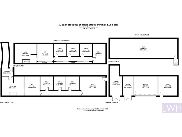
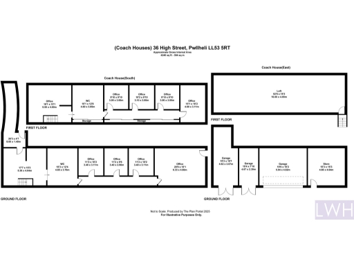
Approximately 12,000 sq ft across four storeys and outbuildings
This large freehold building on Pwllheli’s High Street offers an established income with short-term upside. Lower floors and the coach house are fully let to two professional firms, providing immediate rental return, while the upper floors include a vacant four‑bed flat ready for occupation or refurbishment.
The property extends to around 12,000 sq ft over four storeys with garages, yard and direct access to the nearby local authority car park. Traditional Georgian/Victorian construction gives high ceilings and period character, making it suitable for retained office use, refurbishment into mixed‑use apartments, or alternative commercial conversion subject to planning consent.
Buyers should note material considerations: the building is in a very deprived, high‑crime area and parts show signs of damp and general wear that will require renovation. Services are mains gas and drainage; the flat is empty and some areas are in need of modernisation and likely upgrading to current building regulations and EPC standards.
This is a clear opportunity for an investor or developer who can manage on‑going tenancies, secure consents for change of use if desired, and deliver a refurbishment programme. The size and central frontage create flexibility — from specialist office landlord to a sensitive residential conversion — but budget and risk planning are essential.
Commercial property for sale in Stryd Fawr, Pwllheli, LL53 — £175,000 • 1 bed • 1 bath • 3856 ft²
Terraced house for sale in High Street, Pwllheli, Gwynedd, LL53 — £129,995 • 1 bed • 1 bath • 2299 ft²
Commercial property for sale in High Street, Pwllheli, LL53 — £148,500 • 1 bed • 1 bath • 776 ft²
End of terrace house for sale in Gaol Street, Pwllheli, Gwynedd, LL53 — £185,000 • 1 bed • 1 bath • 1925 ft²
3 bedroom flat for sale in Penlan Street, Pwllheli, Gwynedd, LL53 — £295,000 • 3 bed • 1 bath • 1045 ft²
1 bedroom house for sale in Station Square, Pwllheli, Gwynedd, LL53 — £95,000 • 1 bed • 1 bath • 1933 ft²


























































