LS17 8SL - Plot for sale in Land with planning Bay Horse Lane, Leeds,…

View on Property Piper

Plot for sale in Land with planning - Bay Horse Lane, Leeds, LS17

Summary - THE POULTRY FARM, BAY HORSE LANE, LEEDS LS17 8SL

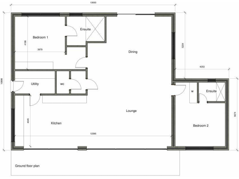
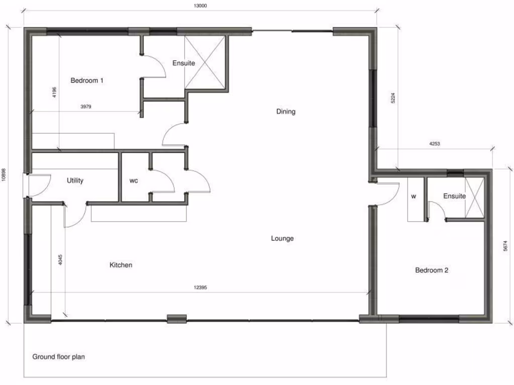
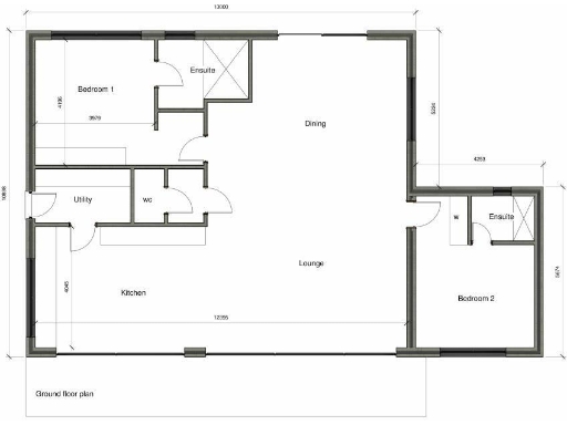
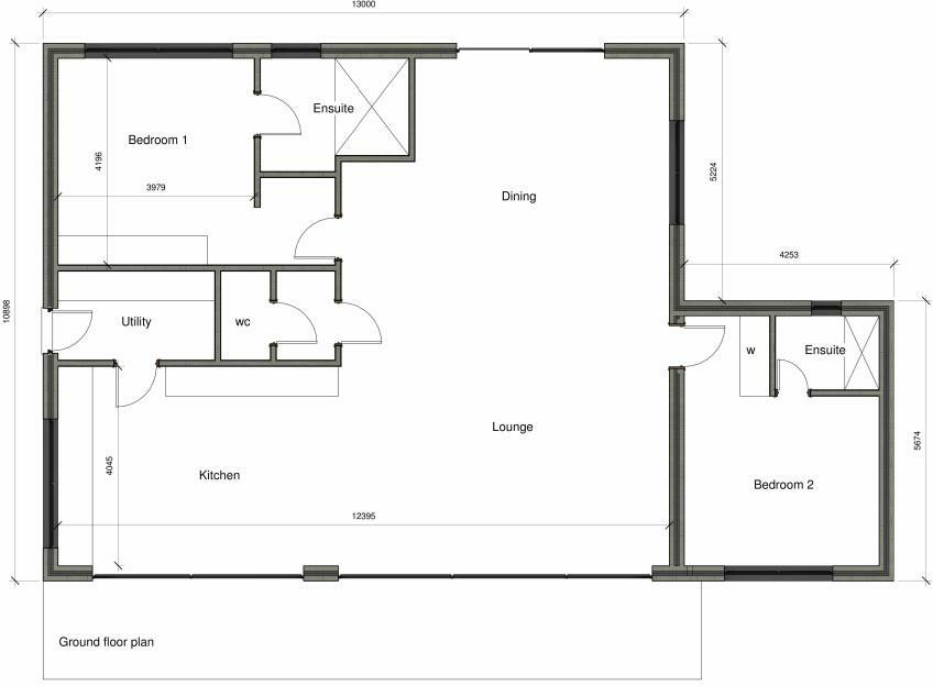
2 bed 2 bath Plot

**Standout Features:**
- Approximately 0.35 acres of land with full planning permission.
- Potential to build a bespoke 1700 sqft bungalow.
- Sought-after location off Ling Lane, adjacent to open countryside.
- Excellent privacy with established trees and serene ambience.
- Convenient access to Leeds City Centre and Wetherby.
- Close to top-rated schools and amenities.

**Summary:**
Discover a unique opportunity to build your dream home on this expansive 0.35-acre plot situated off the desirable Ling Lane in Leeds. Granting full planning permission for the demolition of existing structures and the erection of a stylish 1700 sqft bungalow, this property is designed to embrace modern living with an open-plan kitchen-living-diner, two ensuite bedrooms, a utility room, and a convenient WC. Surrounded by lush greenery and mature trees, you can enjoy exceptional privacy and tranquil views of the open countryside.

This prime location not only offers a peaceful retreat but also places you just a 20-minute drive from Leeds City Centre and within easy reach of local amenities, including trendy shops and renowned schools—truly a fantastic blend of convenience and comfort. With properties like this in high demand, don’t miss out on your chance to create a future oasis in this affluent community!

Property Details

Brochure Descriptions

Image Descriptions

Floorplan Description

Rooms

Textual Property Features

Detected Visual Features

Nearby Schools

Nearest Bars And Restaurants

,,,,}

Nearest General Shops

,,}

Nearest Grocery shops

,,}

Nearest Supermarkets

,,}

Nearest Religious buildings

,,}

Nearest Medical buildings

,,,}

Nearest Airports

}

Nearest Leisure Facilities

,,,,}

Nearest Tourist attractions

,,}

Nearest Train stations

,,,,}

Nearest Bus stations and stops

,,,,}

Nearest Hotels

,,}

Tags

Local Market Stats

AirBnB Data

Similar Properties

Meta

High Res Images

Compatible Images

Low res Images

Thumbnails

Raw Images

High Res Floorplan Images

Compatible Floorplan Images

Low res Floorplan Images

FloorplanImages Thumbnail

Raw Floorplan Images