Create a contemporary family home on 0.76 acres with detailed planning consent and excellent privacy.
- Approximately 0.76 acres (very large) ideal for substantial new home
- Detailed planning consent renewed April 2023 (22/01089/FUL)
- Mains water and electricity available for connection
- Drainage to private system; no mains gas on site
- Secluded setting with existing trees and strong privacy
- Village location; remote character and countryside surroundings
- Excellent mobile signal; broadband speeds average
- Requires full build works and associated construction costs
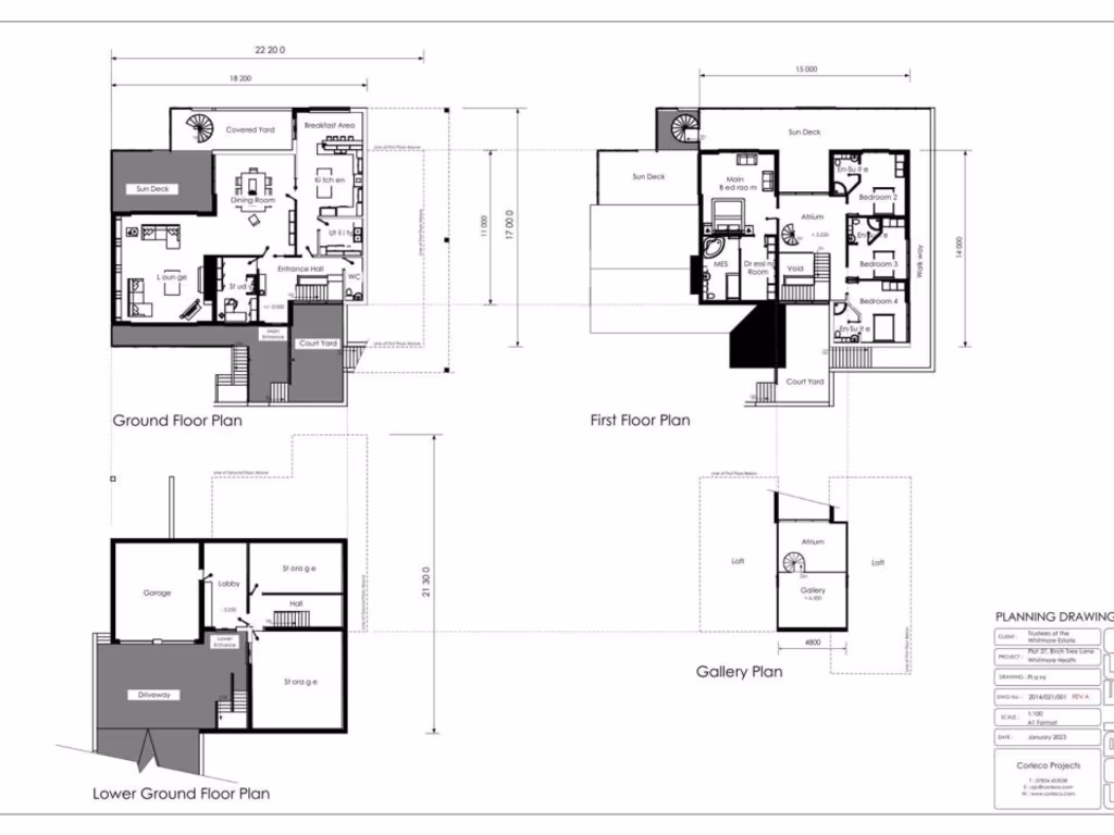
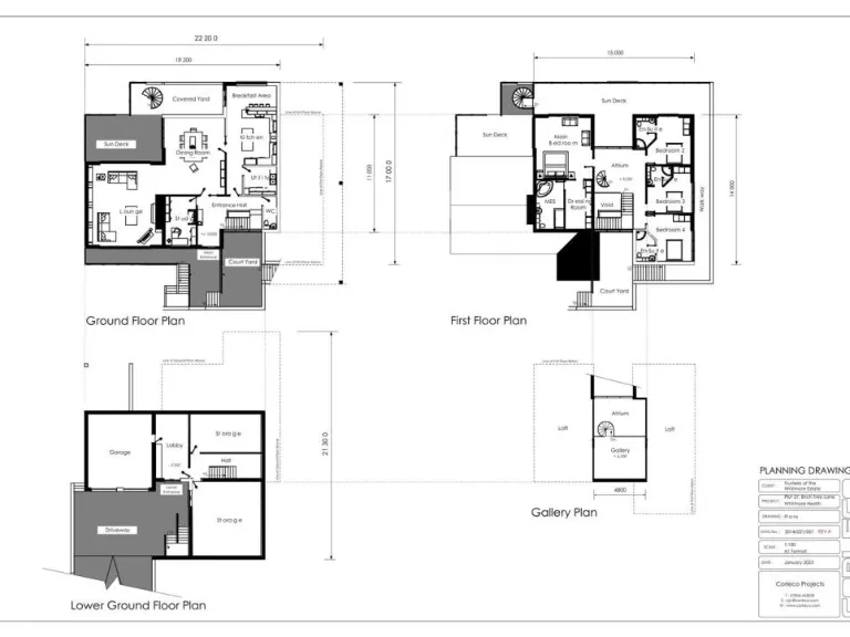
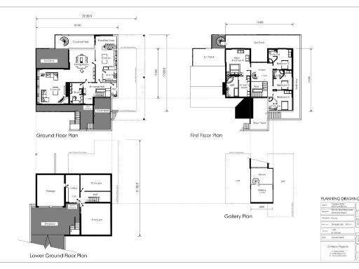
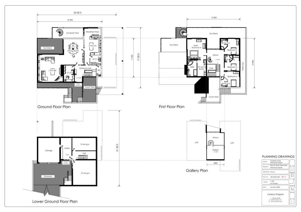
One of the last remaining development plots on Whitmore Heath, Plot 37 extends to approximately 0.76 acres and comes with renewed detailed planning consent (application 22/01089/FUL, renewed April 2023) for a substantial contemporary detached home. The site sits tucked behind existing trees, offering strong privacy, generous garden space and potential elevated views across the surrounding farmland.
Mains water and electricity are available for connection; drainage is to a private system and there is no mains gas on this part of Whitmore Heath. The location is village‑scale and remote in character, with excellent mobile signal and average broadband speeds — suitable for modern living but requiring off‑mains heating choices and private drainage installation.
This plot is aimed at buyers wanting a bespoke new build or a grand design project in an affluent rural setting. Practical points to note: the sale is freehold, vacant possession on completion, on‑site viewing is possible but be courteous to neighbours, and full planning documentation can be inspected on the Newcastle‑under‑Lyme Borough Council Planning Portal.
Local amenities include good primary and secondary schools nearby and easy routing from the A519. Buyers should budget for full build costs, private drainage installation and any landscaping works to realise the consented contemporary dwelling.
Plot for sale in Haddon Lane, Chapel Chorlton, ST5 — £895,000 • 5 bed • 5 bath • 7500 ft²
Plot for sale in Land off Red Barn Road, Market Drayton, Shropshire, TF9 — £420,000 • 1 bed • 1 bath • 865 ft²
Plot for sale in Ash Bank Road, Werrington, Staffordshire Moorlands, ST9 — £225,000 • 1 bed • 1 bath
Plot for sale in Longton Road, Nanny Goat Lane Longton Road, ST15 — £350,000 • 2 bed • 2 bath • 1540 ft²
Plot for sale in Tongue Lane, Brown Edge, Stoke-On-Trent, ST6 — £150,000 • 5 bed • 5 bath
Land for sale in Land Off Church Lane, Newcastle-under-Lyme ST5 6EB, ST5 — £550,000 • 5 bed • 1 bath










