ST15 8DJ - Plot for sale in Longton Road, Nanny Goat Lane Longton Road…

View on Property Piper

Plot for sale in Longton Road, Nanny Goat Lane Longton Road, ST15

Summary - THE FOLIE, LONGTON ROAD ST15 8DJ

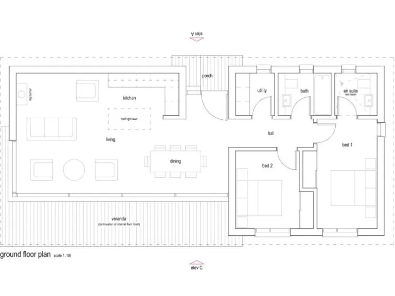
2 bed 2 bath Plot

**Standout Features:**
- 0.88 acres with full planning permission for a contemporary dwelling
- Unique location in Moddershall Valley, walking distance to Stone town center
- Current log cabin on-site with independent utility services
- Design-led architect plans for spacious open-plan living
- Retained permitted development rights for future expansion potential
- Secluded woodland retreat with stunning countryside views
- Detached garage included in planning

Don’t miss out on this extraordinary opportunity to craft your dream home in the picturesque Moddershall Valley. This expansive 0.88-acre plot offers full planning permission for a contemporary single-story residence, designed to blend seamlessly with its tranquil surroundings. Imagine a spacious open-plan living area leading to a covered verandah, perfect for enjoying serene garden views.

Current on-site infrastructure includes a cozy log cabin, providing immediate utility services while you embark on your construction journey. The existing plans also permit future expansion—envision adding a basement or further personal touches to create a truly unique retreat. With convenient access to Stone town center and top-rated local schools, this property is ideal for families, investors, or anyone seeking an exclusive, nature-inspired lifestyle.

Seize this once-in-a-lifetime chance to build a home that reflects your vision and lifestyle. Act now; opportunities like this are fleeting!

Property Details

Image Descriptions

Floorplan Description

Textual Property Features

Detected Visual Features

EPC Details

Nearby Schools

Nearest Bars And Restaurants

,,,,}

Nearest General Shops

,,}

Nearest Grocery shops

,,}

Nearest Supermarkets

,,}

Nearest Religious buildings

,,}

Nearest Medical buildings

,,,}

Nearest Leisure Facilities

,,,,}

Nearest Tourist attractions

,,}

Nearest Train stations

,,,,}

Nearest Bus stations and stops

,,,,}

Nearest Hotels

,,}

Tags

Local Market Stats

Similar Properties

Meta

High Res Images

Compatible Images

Low res Images

Thumbnails

Raw Images

High Res Floorplan Images

Compatible Floorplan Images

Low res Floorplan Images

FloorplanImages Thumbnail

Raw Floorplan Images