**Standout Features:**
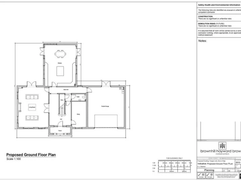
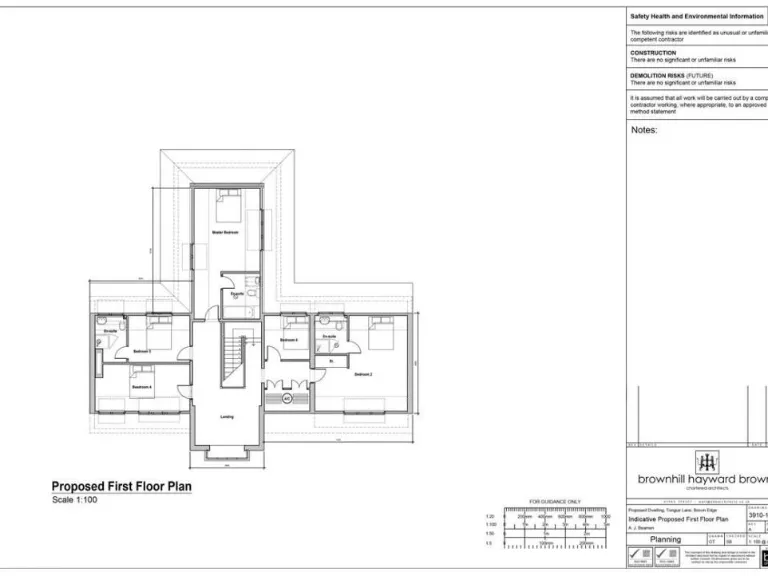
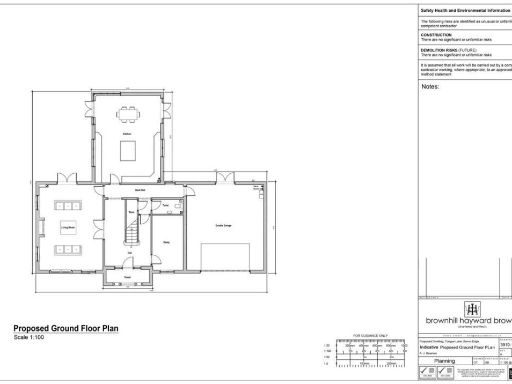
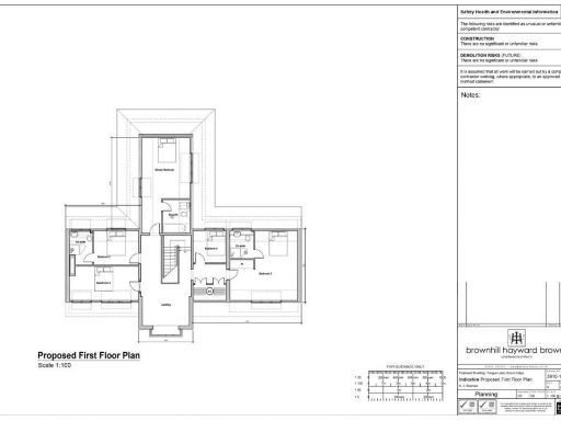
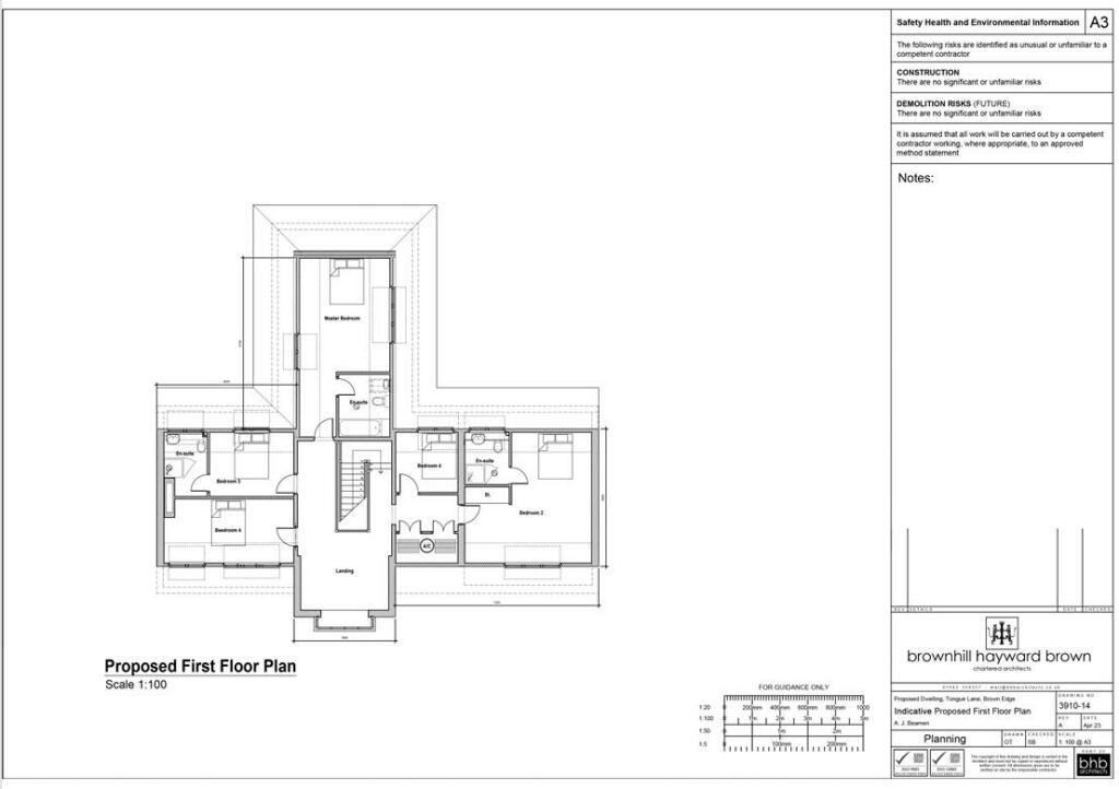
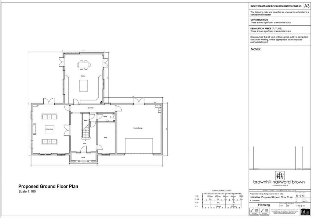
- Plot for sale with outline planning permission (SMD/2023/0194) for a two-storey, detached family home
- Prime location in the desirable village of Brown Edge
- Large grassland area, perfect for landscaping and outdoor space
- Gated access from Tongue Lane
- Peaceful environment with lush greenery surrounding the plot
- Excellent mobile signal and low crime rate in the area
**Potential Downsides:**
- Broadband speeds are currently very slow
- Planning application must be finalized before construction begins
This unique plot on Tongue Lane in the picturesque village of Brown Edge, Stoke-On-Trent, presents an exceptional opportunity for investors or families eager to build their dream home. With outline planning permission in place for a stylish two-storey, detached family residence, this predominantly grassland site offers the promise of comfort and space. Surrounded by lush greenery, the future home could feature a beautiful garden while benefiting from serene, private views.
Families will appreciate the access to reputable local schools, reinforcing the area’s appeal for long-term living. Despite current slow broadband speeds, the property enjoys excellent mobile connectivity and is situated in a very low-crime community, contributing to a secure environment. Don’t miss out on this rare opportunity to secure such a generous plot in a sought-after area—embrace the potential for personal customization and future family memories!
Land for sale in Sytch Road, Brown Edge, Stoke-On-Trent, ST6 — £500,000 • 1 bed • 1 bath
Land for sale in Land at The Green, Kingsley, ST10 — £80,000 • 1 bed • 1 bath
Land for sale in Building Plot on Eleanor Crescent, Newcastle-under-Lyme, Staffordshire, ST5 — £160,000 • 1 bed • 1 bath • 2313 ft²
Land for sale in Building Plot, Station Road, Keele, ST5 — £125,000 • 1 bed • 1 bath • 9957 ft²
Land for sale in Knutton Lane, Newcastle-under-Lyme. ST5 6EU, ST5 — £35,000 • 3 bed • 2 bath
Plot for sale in Land At Corner Of Alsop Street And Broad Street, Leek, Staffordshire, ST13 — £399,950 • 1 bed • 1 bath






























