Ready-to-build development plot ideal for experienced investors or small developers.
Freehold plot with full planning permission for dormer bungalow
Starting bid £140,000; sold via online auction
Buyer’s Premium 3.6% (min £6,600) plus £396 legal pack fee
56 working days to exchange/complete after draft contract issued
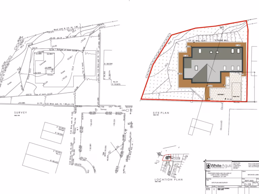
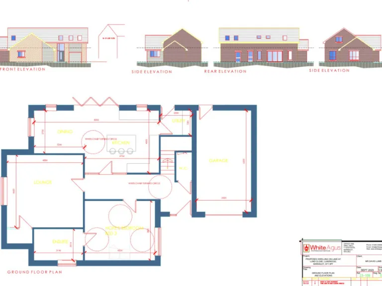
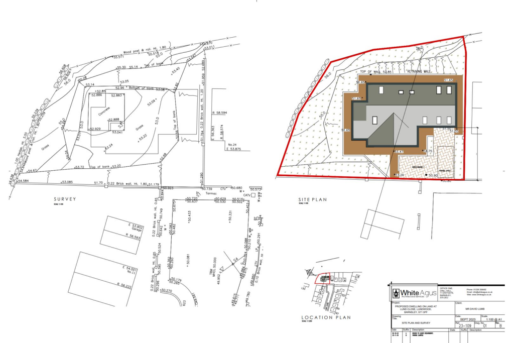
Garage parking included in approved plans
Area classed very deprived; local crime levels high
Mains gas, boiler/radiators, fast broadband, average mobile signal
Buyers must complete due diligence; legal pack available for review
A rare freehold development plot in Lund Close with full planning permission granted for a substantial dormer bungalow. The approved scheme shows ground-floor living and three large first-floor bedrooms (one bedroom may be subdivided to create a fourth), plus a garage — attractive for builders, small developers or investor-developers seeking a near-complete planning position.
The site is being sold by online auction with a Starting Bid of £140,000. The sale uses the Modern Method of Auction: successful buyers pay a non-refundable reservation fee (Buyer’s Premium 3.6% inc. VAT, minimum £6,600) and a Legal Pack fee of £396. Purchasers are given 56 working days to exchange and complete, allowing time to arrange finance, but you should study the Legal Pack and factor all fees into purchase costs.
Location and utilities are practical: mains gas, boiler and radiators, double glazing indicated, fast broadband and average mobile signal. Nearby primary schools have Good Ofsted ratings and local amenities are within reach. Be aware of local challenges: the area is classified as very deprived with high crime levels; purchasers should review site boundaries, services, and neighbourhood context before bidding.
This plot suits experienced developers or investors comfortable with auction purchase mechanics and local regeneration risk. The planning permission reduces one planning hurdle, but the scheme will still require construction budgeting, contractor procurement and full due diligence on services, ground conditions and planning covenants.
Land for sale in Beechfield Close,Bolton-upon-Dearne,Rotherham,S63 8EY, S63 — £120,000 • 1 bed • 1 bath
Land for sale in Fields End Road, Barnsley Road, Goldthorpe, S63 — £160,000 • 18 bed • 6 bath • 915 ft²
Land for sale in Fields End Road, Barnsley Road, Goldthorpe, Rotherham, S63 — £160,000 • 1 bed • 1 bath • 1892 ft²
Land for sale in Pitt Street, Wombwell, Barnsley, S73 — £399,950 • 1 bed • 1 bath
Land for sale in High Street, Thurnscoe, Rotherham, S63 — £20,000 • 1 bed • 1 bath
Plot for sale in Rotherham Road, Barnsley, S71 — £575,000 • 1 bed • 1 bath






















































































