Ready-planned site for five detached homes in Barnsley.
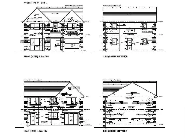
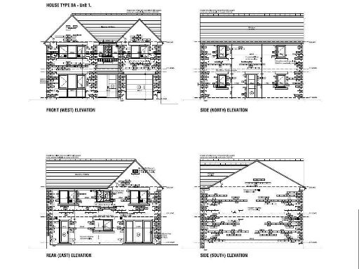
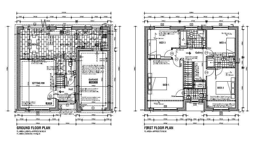
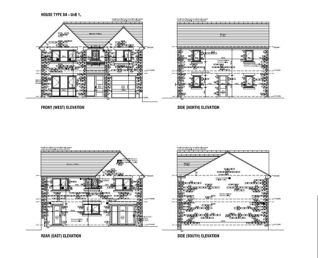
Full planning permission for five stone detached homes
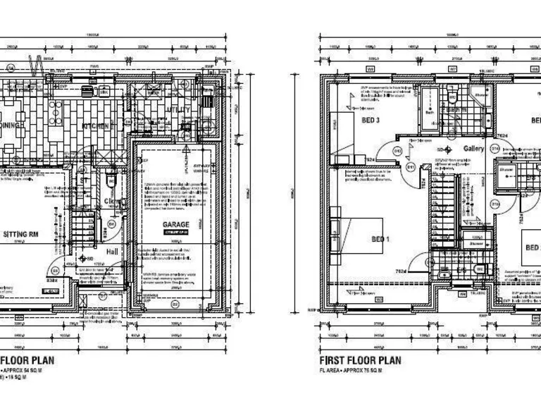
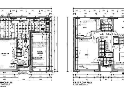
A substantial freehold plot on Rotherham Road with full planning permission to build five stone-built detached homes. The consent and site access mean a developer can move quickly to construction on this very large parcel. Essential connections are indicated on plans, and the site sits outside flood risk zones.
This is a clear development-led investment: five detached homes already approved, a gated layout and single garages shown in the scheme. Broadband speeds are listed as fast and the plot benefits from road access on the A633. Nearby primary schools include two rated Good and one Outstanding, which supports family marketability.
Buyers should weigh the commercial upside against local challenges. The wider area is classified as very deprived with 'young hard-pressed families' and 'ageing urban communities' locally, and crime is average. The land is undeveloped, so costs for construction, siteworks and infrastructure hookups will be incurred despite planning and indicated utility provision.
Suitable for housebuilders or investor-developers seeking a ready-planned scheme in Barnsley. The freehold tenure and planning approval reduce early-stage risk, but the site's success depends on build-cost control, local market demand, and managing sales in a lower-income area.
Land for sale in Beechfield Close,Bolton-upon-Dearne,Rotherham,S63 8EY, S63 — £120,000 • 1 bed • 1 bath
Land for sale in Pitt Street, Barnsley, S73 — £300,000 • 1 bed • 1 bath • 12281 ft²
Land for sale in Springfield Street, Barnsley, South Yorkshire, S70 — £55,000 • 3 bed • 1 bath • 1076 ft²
Plot for sale in Victoria Street, Barnsley, S70 — £375,000 • 1 bed • 1 bath • 1437 ft²
Land for sale in Former Allotment Gardens, Carlton, S71 — £350,000 • 1 bed • 1 bath
Land for sale in Clear View, Grimethorpe, Barnsley, S72 — £325,000 • 1 bed • 1 bath














































