**Standout Features:**
- Development land with planning permission for six dwellings (two detached, two semi-detached)
- Anticipated GDV of over £1.4m upon completion
- Freehold tenure
- Close proximity to local amenities, schools, and public transport
- Off-street parking available
**Concerns:**
- Located in a high-crime area classified as very deprived
- Plot size is notably small
- Required works have only commenced minimally
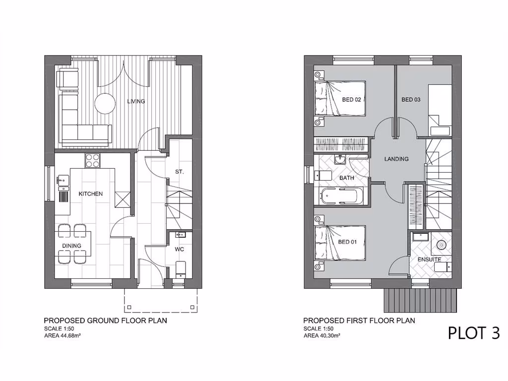
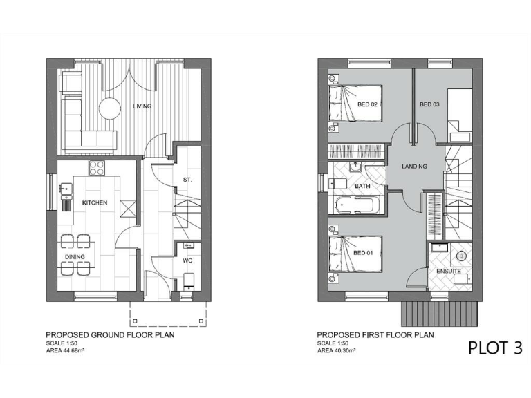
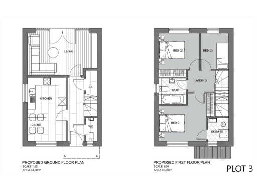
Seize a unique investment opportunity with this expansive development land, positioned perfectly for creating six residential units along the busy Barnsley Road. Currently a former car park, this prime site boasts existing planning permission (under reference 2020/0665) and has already undertaken minor initial works, setting you up for a swift start on your project. Envision two spacious detached homes and two pairs of semi-detached houses, each featuring modern amenities including en-suite bedrooms and generous living spaces.
Despite the area's challenges, including a high crime rate and economic deprivation, the location provides excellent accessibility to Goldthorpe's amenities, including schools, shops, and public transport links to Barnsley, Rotherham, and Doncaster. This is an ideal project for developers or investors looking to tap into potential for high returns in a growing community. With a guide price of £160,000, act now—opportunities like this won't last long!
Land for sale in Fields End Road, Barnsley Road, Goldthorpe, S63 — £160,000 • 18 bed • 6 bath • 915 ft²
Plot for sale in Rotherham Road, Barnsley, S71 — £575,000 • 1 bed • 1 bath
2 bedroom terraced house for sale in Main Street, Goldthorpe, Rotherham, S63 — £47,000 • 2 bed • 1 bath • 453 ft²
Land for sale in High Street, Thurnscoe, Rotherham, S63 — £35,000 • 1 bed • 1 bath
Land for sale in Land Between Meadowhall Road, Pollard Street, And Thornton Street, Rotherham, S61 2JZ, S61 — POA • 1 bed • 1 bath
3 bedroom terraced house for sale in 39 Kelly Street, Goldthorpe, Rotherham, South Yorkshire S63 9NB, S63 — £45,000 • 3 bed • 1 bath • 713 ft²






































































