Former consent for eleven family homes on over half an acre near local amenities.
- Freehold lot including shell property and 0.56 acres of land
- Previous planning for 11 dwellings (lapsed 2021, REF 18/00556/MAO)
- Shell: derelict 3-bed end terrace; likely demolition/major works needed
- Very large plot with scope for townhouses and semi-detached units
- Auction sale: 5% deposit, buyer's premium, 28-day completion required
- Located in a very deprived area with high crime — affects values
- Excellent mobile signal and fast broadband; near schools and shops
- Additional costs and special conditions detailed in legal pack
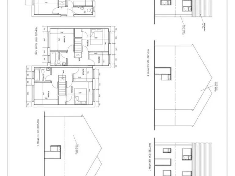
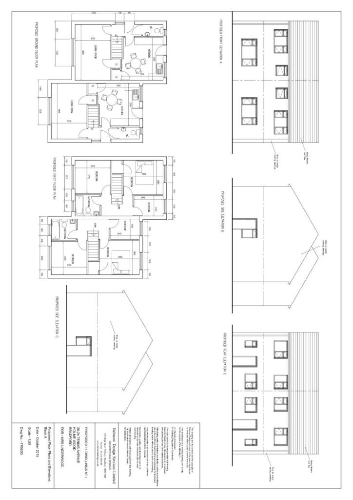
A substantial brownfield opportunity offered as a freehold lot in Bradford — the sale includes the shell of a former 3-bed end-terrace and approximately 0.56 acres of land. Planning permission for 11 dwellings (four 3-bed semis and seven 3-bed townhouses with integral garages) was previously granted (Bradford City Council REF 18/00556/MAO) but lapsed in 2021. The site suits a developer or investor prepared to reapply for permission or adapt proposals to current policy.
The plot is being sold at online auction with unconditional terms: a 5% deposit on the fall of the hammer plus a buyer’s premium and 28-day completion. Buyers must review the legal pack carefully for special conditions and potential additional costs; pre-auction offers may be considered but all auction conditions remain. The property lies in a very deprived area with high local crime statistics — these factors will affect end-market values and build costs.
The existing building is derelict and requires full renovation or demolition. Services, highways access and detailed site works should be verified; any redevelopment will involve design, planning re-submission and remediation costs. For the right buyer, the combination of plot size, previously approved layout and strong mobile and broadband connectivity offers scope to deliver family-sized homes close to local schools and amenities.
Land for sale in Land West of 12 To 16, Far Hills, Bradford, Bradford, BD6 3SL, BD6 — £500,000 • 1 bed • 1 bath
Land for sale in Car Park North Of Pine Street, Bradford, West Yorkshire, BD1 4EY, BD1 — £60,000 • 1 bed • 1 bath • 8579 ft²
Land for sale in Chapel Street, Wibsey, BRADFORD, BD6 — £350,000 • 1 bed • 1 bath
Terraced house for sale in 265 Otley Road, Bradford, West Yorkshire BD3 0LW, BD3 — £60,000 • 1 bed • 1 bath • 807 ft²
1 bedroom terraced house for sale in Rook Lane, Bradford, BD4 — £30,000 • 1 bed • 1 bath • 440 ft²
3 bedroom end of terrace house for sale in 13, Chelmsford Terrace Bradford, BD3 8AG, BD3 — £88,000 • 3 bed • 1 bath • 587 ft²


























































