Build a four‑bed family home with countryside outlook and ready permission.
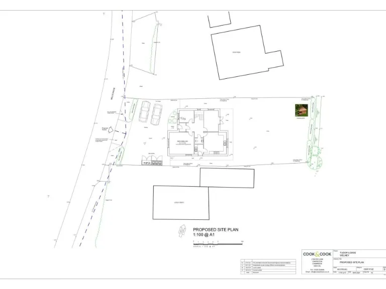
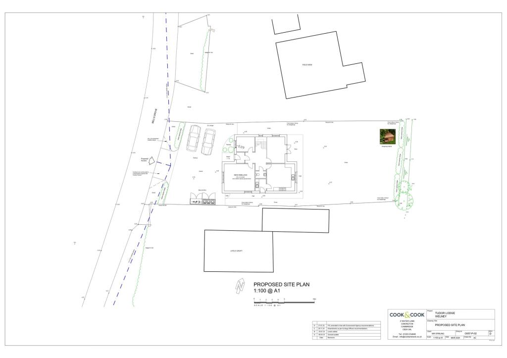
Full planning consent for a 4-bed detached house (~1,872 sq ft).
Approx 0.15 acre (STS) plot with open countryside views.
Site has concrete hardstanding, rubble and overgrown vegetation.
Mains water and electricity available in Bells Drove (buyer to verify).
Plot subject to Community Infrastructure Levy and standard planning conditions.
Vehicle access from Bells Drove; garage and garden included in consent.
Site clearance, soil remediation and service capacity checks likely required.
Located in a deprived area classification — consider local market factors.
This cleared single-building plot in Littleport comes with full planning consent (ref 24/00706/FUL) for a four‑bedroom detached house of approximately 1,872 sq ft. Set on about 0.15 acres (STS) on Bells Drove, the site fronts a quiet rural road and benefits from open countryside views — an appealing canvas for a modern family home with garage and garden.
Practical points are straightforward: mains water and electricity are available in Bells Drove, Ofcom reports mobile coverage best with EE and O2, and standard/superfast broadband is listed up to 80Mbps. The site currently shows a remaining concrete hardstanding, some loose rubble and overgrown vegetation; vehicle access is present from the road but boundaries and service connection points should be verified before purchase.
Buyers should allow for the known obligations and costs: the plot is subject to a Community Infrastructure Levy and the planning consent carries standard conditions (full details available via the planning portal). Site clearance, potential soil remediation and confirmation of utility capacities will be required prior to construction. The location is in a deprived area classification, which may affect resale values and local services.
This plot will suit a buyer wanting to deliver a ready-designed family home in a semi‑rural setting — either a private buyer who will build their home to spec, or an investor/developer able to manage the clearance and connections. The combination of full planning consent and countryside outlook represents clear development potential, provided the purchaser allows for the additional costs and statutory checks.
Plot for sale in Bells Drove, Welney, Wisbech, PE14 — £150,000 • 1 bed • 1 bath • 1700 ft²
Land for sale in Camel Road, Littleport, CB6 — £300,000 • 2 bed • 1 bath • 657 ft²
Residential development for sale in Owl Barn, 10 Hale Fen, Littleport, CB6 1EL, CB6 — £250,000 • 1 bed • 1 bath
Plot for sale in Mildenhall Road, Littleport, Ely, CB7 — £225,000 • 3 bed • 1 bath • 1130 ft²
Detached house for sale in Ten Mile Bank, Littleport, Ely, Cambridgeshire, CB6 — £230,000 • 1 bed • 1 bath
2 bedroom bungalow for sale in Mildenhall Road, Littleport, Ely, Cambridgeshire, CB7 — £250,000 • 2 bed • 2 bath






















