PE14 9TG - Plot for sale in Bells Drove, Welney, Wisbech, PE14

View on Property Piper

Plot for sale in Bells Drove, Welney, Wisbech, PE14

Summary - Bells Drove, Welney, Wisbech PE14 9TG

1 bed 1 bath Plot

Ready-permission plot for a 4-bed family home on 0.15 acre in peaceful rural Welney..
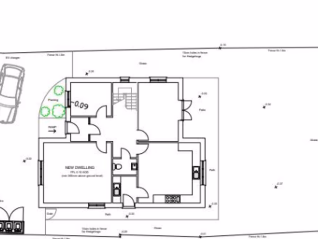
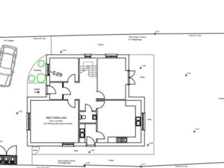
- Full planning permission for a four-bedroom detached home (ref 24/00706/FUL)
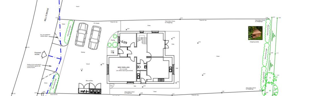
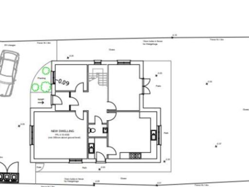
- Plot size approx 0.15 acre with garden and parking potential
- Proposed house about 1,700 sq ft (lounge, kitchen/dining, study, utility)
- Freehold tenure; subject to Community Infrastructure Levy (CIL)
- Medium flood risk — mitigation may be required
- Rural hamlet location; limited local services and amenities
- Mobile signal and broadband speeds are average
- Purchase requires arranging construction and service connections
A rare single building plot in quiet Bells Drove with full planning permission for a spacious four-bedroom detached family home. The consent (ref: 24/00706/FUL) covers a house of approximately 1,700 sq ft with lounge, kitchen/dining, study, utility, ensuite and family bathroom — essentially a turnkey design for a family build. The plot extends to about 0.15 acres, allowing a garden, patio and parking or garage space as shown on the plans.

This site will suit a family seeking rural living and privacy: the hamlet/isolated-dwelling location promises countryside views and low immediate neighbour density. The architectural visuals suggest traditional materials (brick, concrete roof tiles, stone sills) with a modern internal layout — practical, straightforward construction without ornate detailing.

Important considerations are set out plainly. The plot is freehold but subject to a Community Infrastructure Levy and standard planning conditions (details available via the planning portal). There is a medium flood risk for the area, and local services are limited — mobile signal and broadband are average. Buyers should expect to manage the build process, drainage/flood-prevention measures, and connection of services.

For families wanting to create a ready-designed home in a quiet rural setting, this plot offers immediate planning security and a clear canvas. It will most appeal to purchasers prepared to commission the build and factor in CIL, flood mitigation and rural utility arrangements.

Property Details

Brochure Descriptions

Image Descriptions

Textual Property Features

Target Audience

AI Tags

Detected Visual Features

Nearby Schools

Nearest Bars And Restaurants

,,,,}

Nearest General Shops

,,}

Nearest Grocery shops

,,}

Nearest Supermarkets

,,}

Nearest Religious buildings

,,}

Nearest Medical buildings

,,,}

Nearest Leisure Facilities

,,,,}

Nearest Tourist attractions

,,}

Nearest Train stations

,,,,}

Nearest Bus stations and stops

,,,,}

Nearest Hotels

,,}

Tags

Local Market Stats

Similar Properties

Meta

High Res Images

Compatible Images

Low res Images

Thumbnails

Raw Images