CB6 1EE - Detached house for sale in Ten Mile Bank, Littleport, Ely,…

View on Property Piper

Detached house for sale in Ten Mile Bank, Littleport, Ely, Cambridgeshire, CB6

Summary - Ten Mile Bank, Littleport, Ely, Cambridgeshire, CB6 CB6 1EE

1 bed 1 bath Detached

Spacious secluded plot with outbuildings and planning potential on town fringe..
- Large secluded plot with fields to rear and substantial outbuildings
- Existing 'workers' house provides temporary accommodation
- Planning application in place: ref 20/00384/FUL (check portal)
- Property requires renovation; front derelict dwelling to be removed
- Broadband fast; mobile signal average suitable for remote work
- Area deprivation high and local crime levels reported as high
- Tenure and council tax unknown; buyer to verify statutory details
- Small town fringe location—rural feel but within reach of amenities
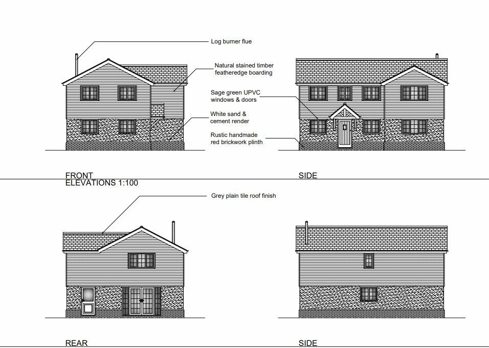
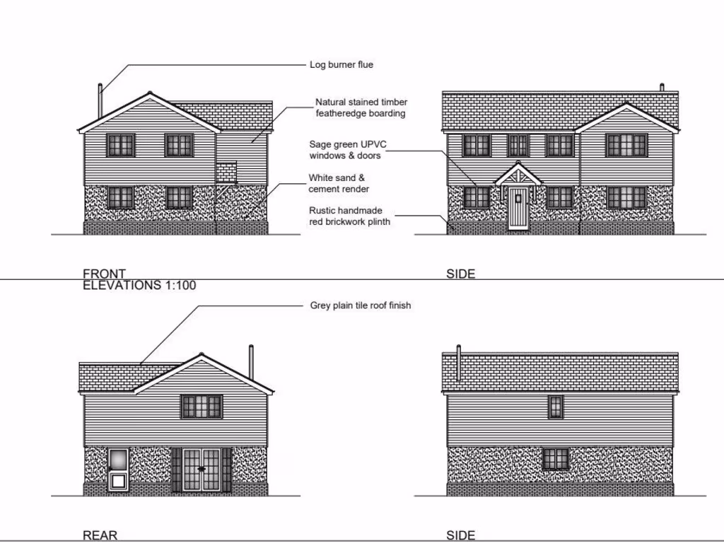
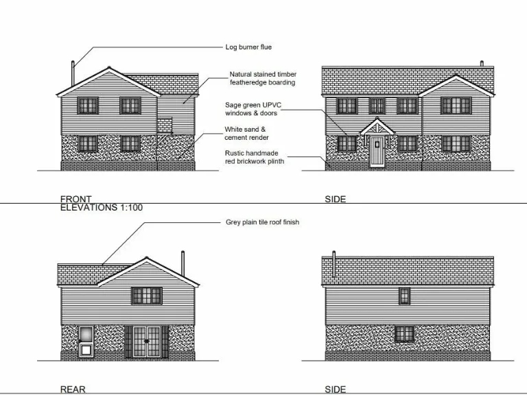
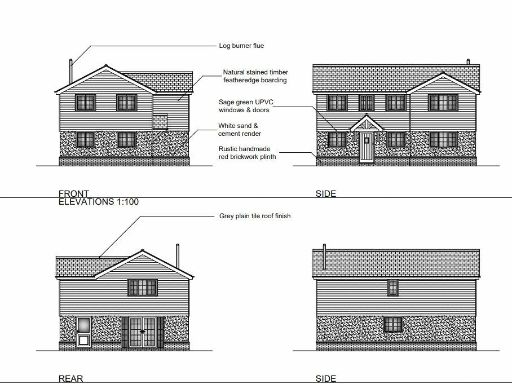
A rare non-estate parcel on the edge of Littleport, this site offers a large plot with countryside views and outbuildings, ideal for a bespoke replacement home. The current derelict dwelling to the front is to be removed, leaving room for the proposed new build; planning reference 20/00384/FUL is on the East Cambridgeshire planning portal and should be checked by interested buyers.

A well-built 'workers' house remains on site providing immediate, flexible accommodation during any build or renovation. The setting is private and semi-rural, with fields to the rear and substantial garden and workshop/ barn space suitable for storage, hobby farming or conversion (subject to consents). Broadband speeds are reported fast and mobile signal average, which supports remote working despite the rural location.

Buyers should note this is a renovation/new-build opportunity rather than a move-in-ready family home. The property needs renovation and the derelict front dwelling will be removed as part of redevelopment, so budgets should allow for demolition, planning checks, and building costs. The area ranks as deprived with higher local crime statistics, and tenure and council tax banding are unknown — these are important due-diligence items before offer.

For buyers looking to escape the estate envelope and design a spacious home in a secluded setting, this plot and its existing buildings offer significant potential. Check planning application 20/00384/FUL for scope and constraints, and arrange a site visit by appointment to assess access, services and the condition of existing structures.

Property Details

Image Descriptions

Textual Property Features

Target Audience

AI Tags

Detected Visual Features

Nearby Schools

Nearest Bars And Restaurants

,,,,}

Nearest General Shops

,,}

Nearest Grocery shops

,,}

Nearest Supermarkets

,,}

Nearest Religious buildings

,,}

Nearest Medical buildings

,,,}

Nearest Leisure Facilities

,,,,}

Nearest Tourist attractions

,,}

Nearest Train stations

,,,,}

Nearest Bus stations and stops

,,,,}

Nearest Hotels

,,}

Tags

Local Market Stats

Similar Properties

Meta

High Res Images

Compatible Images

Low res Images

Thumbnails

Raw Images