Planning approved for a four-bedroom detached dwelling; auction sale with strong local comparables.
0.6-acre freehold site with planning approved for a four-bedroom detached dwelling
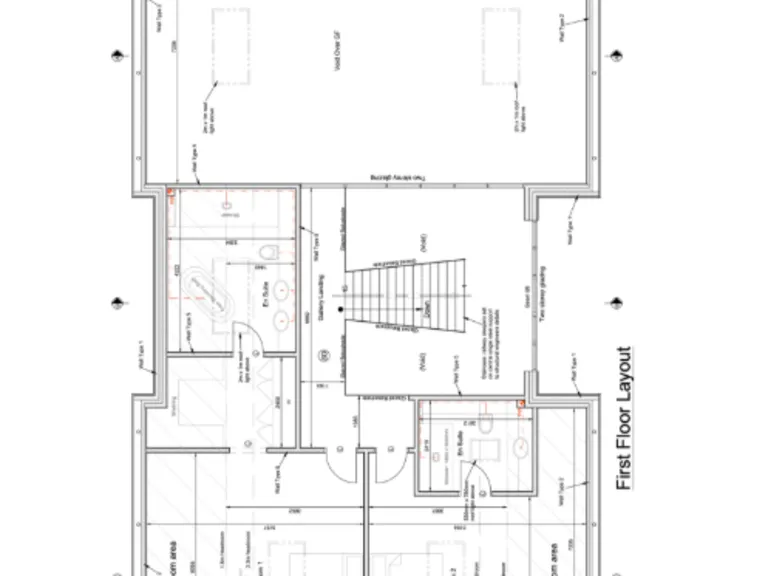
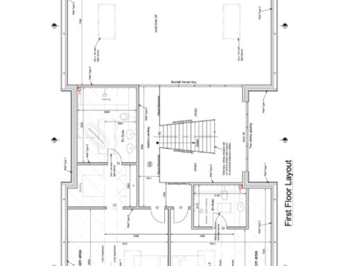
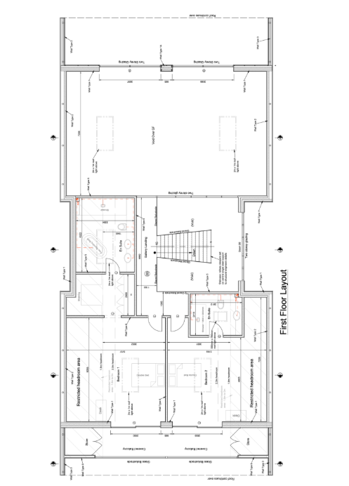
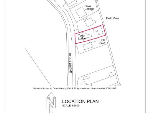
This very large 0.6-acre freehold parcel sits in a peaceful Littleport rural setting with planning approved (ref: 22/00403/FUL) for a four-bedroom detached dwelling. The size and approved scheme create clear scope for a single high-value residence or a bespoke developer build, backed by recent local residential sales evidence.
The site is presented for sale at auction, offering a straightforward route to purchase for builders or investors seeking uplift. Littleport benefits from commuter links to Ely and Cambridge, local schools and amenities—factors that support resale and rental demand in the area. Note the CGI is an artist’s impression; prospective purchasers should check final specifications with the local planning authority.
Buyers should factor in a few material limitations: the site is in an isolated/hamlet location, has a medium flood risk and very slow broadband speeds, and will be sold at auction. These issues affect build cost, insurance and marketability for some buyer types but do not negate the planning status or the plot’s development potential.
Overall, this plot offers a rare, well-sized opportunity for a practical developer or investor prepared to manage location-specific constraints. With planning in place and positive local sales comparables, the site is positioned for capital growth for the right purchaser.
Land for sale in Camel Road, Littleport, CB6 — £300,000 • 2 bed • 1 bath • 657 ft²
Detached house for sale in Ten Mile Bank, Littleport, Ely, Cambridgeshire, CB6 — £230,000 • 1 bed • 1 bath
Commercial property for sale in Owl Barn, 10 Hale Fen, Littleport, CB6 1EL, CB6 — £320,000 • 1 bed • 1 bath
2 bedroom bungalow for sale in Mildenhall Road, Littleport, Ely, Cambridgeshire, CB7 — £200,000 • 2 bed • 2 bath
Land for sale in Bells Drove, Littleport, CB6 — £150,000 • 1 bed • 1 bath • 1872 ft²
4 bedroom detached house for sale in Manor Close, Witchford, Ely, Cambridgeshire, CB6 — £185,000 • 4 bed • 2 bath






































































