Rare ring‑fenced historic estate with extensive equestrian facilities and income potential.
Grade II listed six‑bed farmhouse dating from 1400 with period character
About 84.18 acres: 56.22 grass, 22.31 woodland, ponds and tracks
Extensive equestrian facilities: 22‑box barn, indoor school, manège, walker
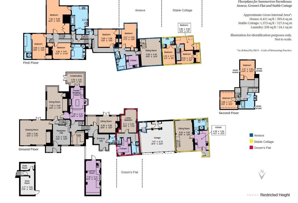
Multiple supporting residences — several vacant; Marie’s Cottage under licence
Photovoltaic arrays produce ~£15k pa export income; air‑source heat pump
Heated swimming pool, pool house, gym and Hartley Botanic greenhouse
Secure air‑conditioned storage building; flexible use but needs upkeep
Listed status restricts alterations and may increase maintenance costs
Summertree Farm is a rare, ring‑fenced East Sussex estate centred on a Grade II listed six‑bedroom farmhouse, presented with period character and modern comforts. The main house dates from the 15th century and sits within formally planted gardens, water features and extensive pasture, offering wide uninterrupted countryside views. The estate includes a heated swimming pool with gym, a Hartley Botanic greenhouse, and environmental measures including photovoltaic panels and an air‑source heat pump.
The holding extends to c.84.18 acres (56.22 acres grass, 22.31 woodland) with well fenced fields, paddocks, ponds and an established woodland managed for biodiversity. Equestrian provision is extensive: traditional stables, a modern 22‑box stable barn, large indoor school with viewing gallery, outdoor manège, horse walker, and ancillary farm buildings. A secure, air‑conditioned portal‑frame storage building has been used for vehicle storage and offers flexible options for owners.
Supporting residential units comprise several self‑contained cottages and flats (Groom’s Flat, Stable Cottage, Oast Cottage, Garage Flat and Marie’s Cottage). Most will be vacant on completion, providing accommodation for staff, extended family or rental income; Marie’s Cottage is subject to a short‑term licence. Solar panels on two estate roofs produce an export income (c. £15k pa) and reduce onsite electricity use.
Important considerations: the farmhouse and some buildings are Grade II listed — this protects heritage but restricts alterations and may add costs. The property is presented to a high standard but, as a large historic estate, will require ongoing maintenance and listed‑building sensitive repairs. The listing, unknown tenure details and limited disclosure on internal floor area and council tax should be confirmed prior to offer.
Equestrian facility for sale in Bodle Street Green, Heathfield, East Sussex, BN27 — £5,000,000 • 6 bed • 1 bath
Equestrian facility for sale in NO CHAIN rural East Sussex, TN39 — £950,000 • 3 bed • 1 bath • 2000 ft²
Equestrian facility for sale in Criers Lane, Five Ashes, Mayfield, East Sussex, TN20 — £1,495,000 • 1 bed • 1 bath • 3924 ft²
6 bedroom detached house for sale in Fairlight Farm, Holtye Road, East Grinstead, West Sussex, RH19 — £2,250,000 • 6 bed • 5 bath • 4104 ft²
6 bedroom detached house for sale in Stalkers Lane, Chiddingly, Lewes, BN8 — £1,250,000 • 6 bed • 5 bath • 4000 ft²
Equestrian facility for sale in Robertsbridge, East Sussex, TN32 — £1,550,000 • 5 bed • 2 bath • 2540 ft²


















































































































































