Rare 249‑acre equestrian estate with extensive stabling, indoor school and income potential.
Grade II listed six‑bed farmhouse dating to the 15th century
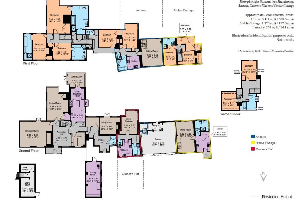
Summertree Farm is a rare, ring‑fenced equestrian estate of some 249.37 acres in the Golden Triangle of East Sussex, centred on a Grade II listed six‑bed farmhouse. The estate combines historic character (parts dating to the 15th century) with extensive modern equestrian infrastructure: a 22‑box stable barn, indoor school with viewing gallery, manège, horse walker and a four‑furlong gallop. Two buildings carry photovoltaic arrays producing around £15k pa in export revenue, and several energy upgrades include an air‑source heat pump and solar panels.
Beyond the main house, the estate includes multiple supporting residential units (Groom’s Flat, Stable Cottage, Oast Cottage, Garage Flat and Marie’s Cottage) offering flexible staffing or rental potential. Most properties will be vacant at completion; Marie’s Cottage is subject to a short‑term licence. A substantial air‑conditioned portal‑frame storage building (recently used for car storage) and additional farm buildings provide versatile space for vehicles, tack, machinery or further development, subject to consents.
The farmland is predominantly grass (c.165 acres) with c.73.6 acres of managed woodland, ponds and tracks, well fenced with railed boundaries, water points, cross‑country jumps and paddocks close to the buildings. The undulating terrain has supported shoots and a racing yard in the past; the shoot is dormant but could be revived. The farm is currently run in hand by a long‑standing farm manager, which may assist an incoming owner or allow continuity.
Important considerations: the principal farmhouse is Grade II listed — any changes will be constrained and will likely require specialist conservation input and listed‑building consent. Marie’s Cottage remains occupied under licence until completion of that term. Although the estate is presented to a high standard, ongoing maintenance, staffing and running costs for buildings, equestrian facilities and 249 acres should be budgeted for by any purchaser. The property is offered either as a whole or in lots, enabling several acquisition strategies.
6 bedroom detached house for sale in Stalkers Lane, Chiddingly, Lewes, BN8 — £1,500,000 • 6 bed • 5 bath • 4000 ft²
Equestrian facility for sale in Criers Lane, Five Ashes, Mayfield, East Sussex, TN20 — £1,495,000 • 1 bed • 1 bath • 3924 ft²
Equestrian facility for sale in NO CHAIN rural East Sussex, TN39 — £950,000 • 3 bed • 1 bath • 2000 ft²
Equestrian facility for sale in Robertsbridge, East Sussex, TN32 — £1,550,000 • 5 bed • 2 bath • 2540 ft²
Equestrian facility for sale in Laundry Lane, East Hoathly, Lewes, BN8 — £1,750,000 • 6 bed • 3 bath • 4800 ft²
Equestrian facility for sale in Battle Road, Robertsbridge, TN32 — £850,000 • 4 bed • 2 bath • 2128 ft²






























































































































































