**Standout Features:**
- Prominent freehold corner building with high visibility
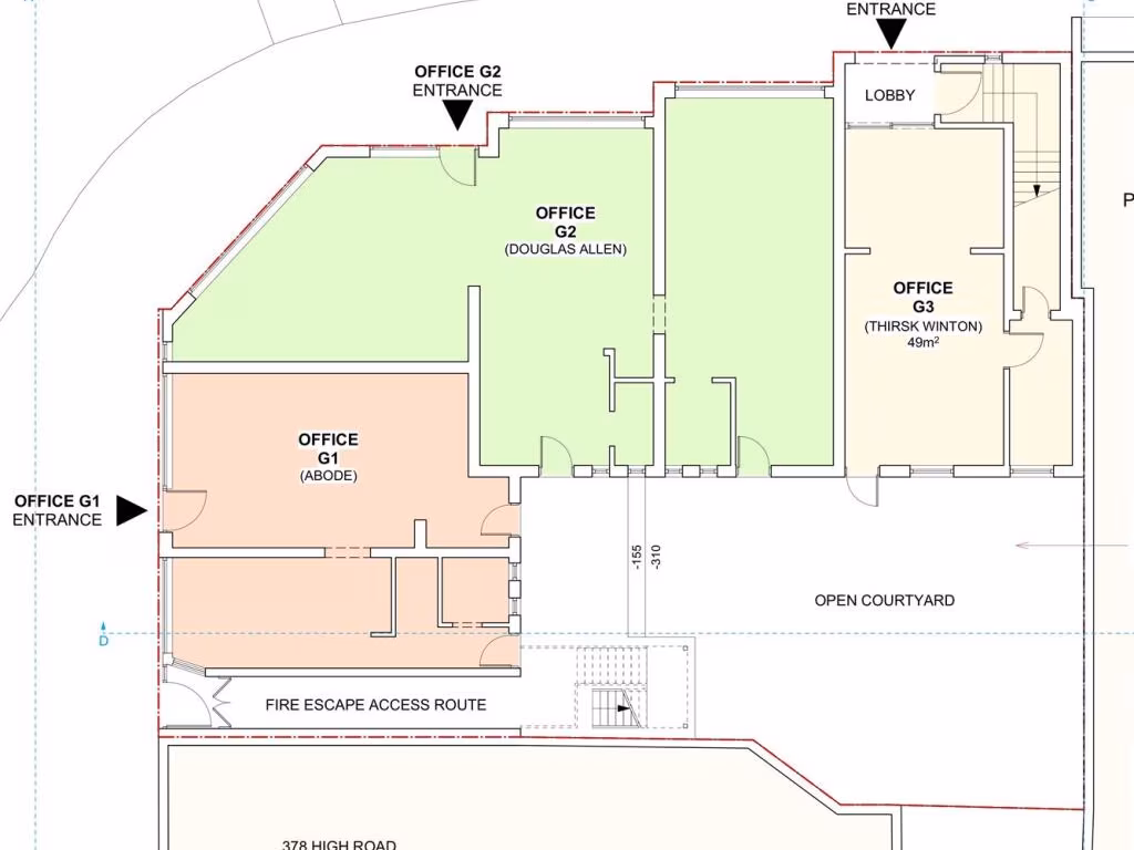
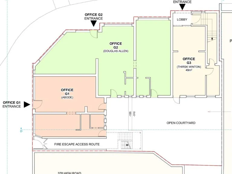
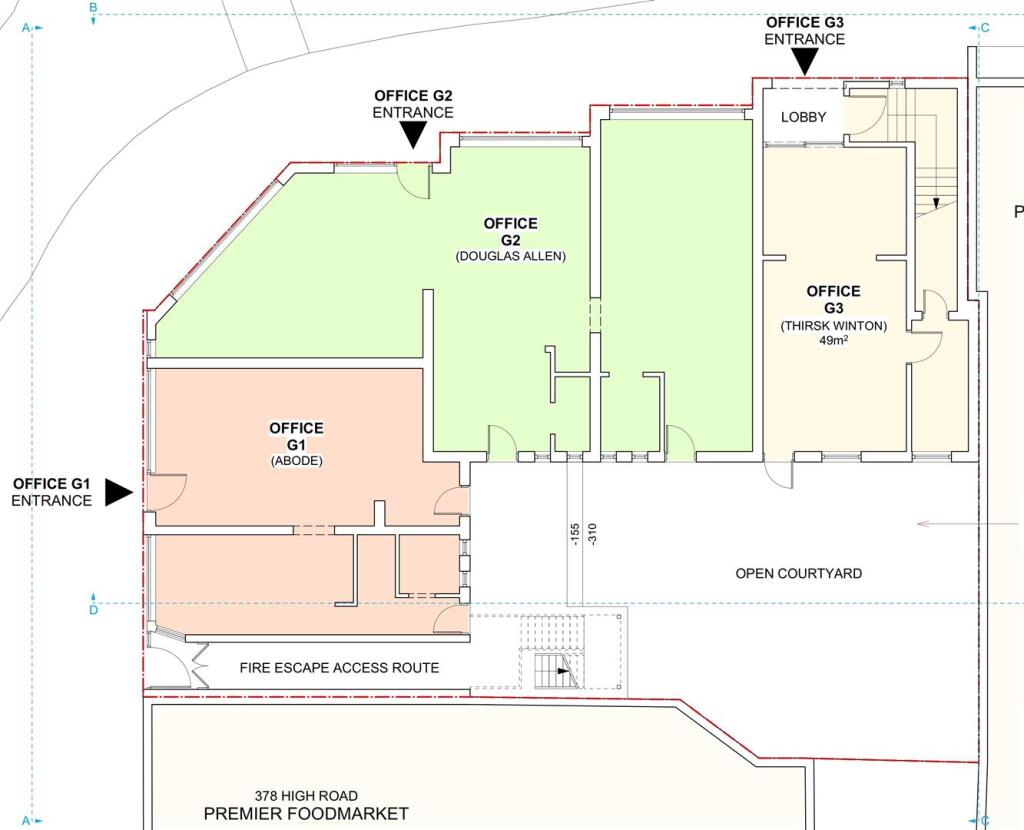
- Two established retail shops generating £62,500 per annum
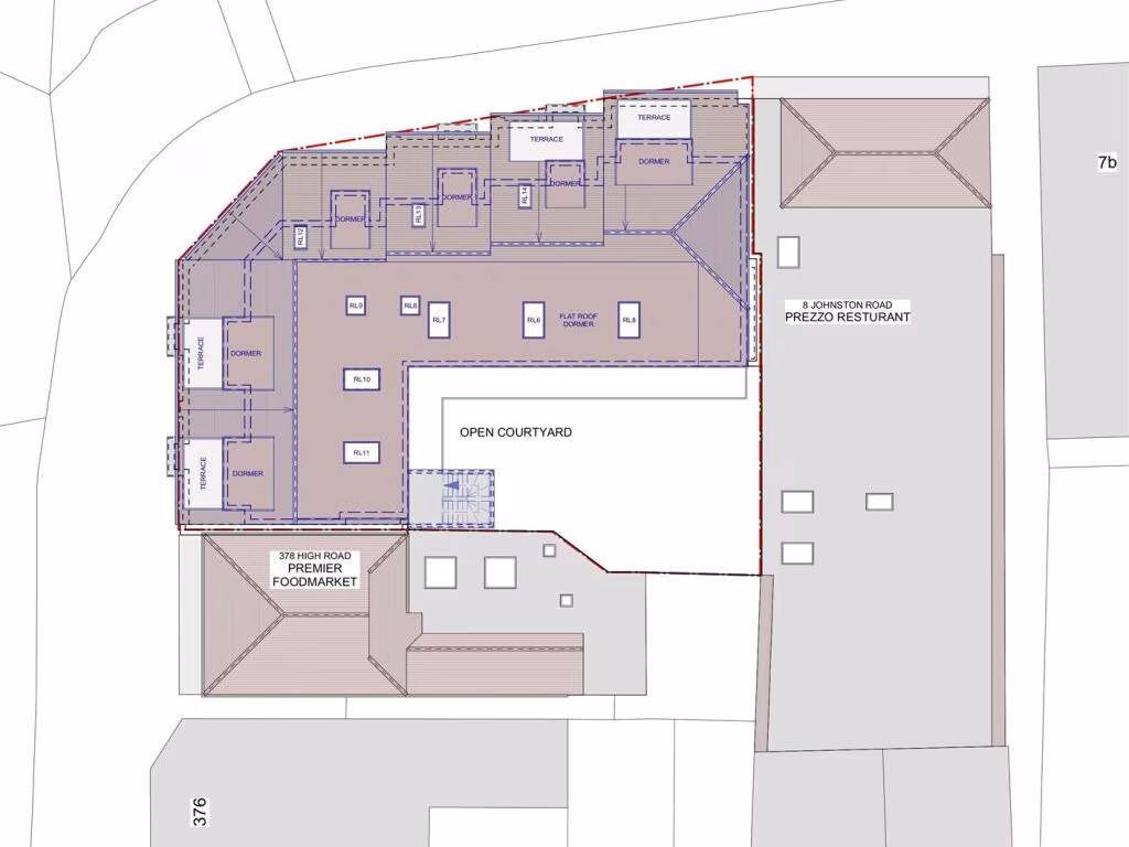
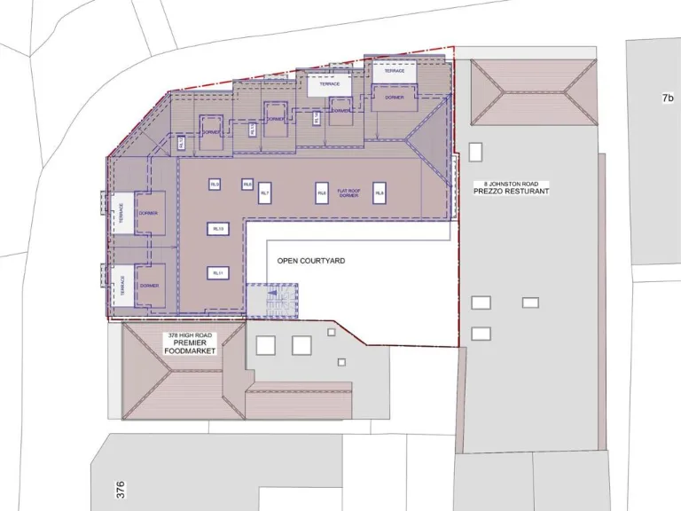
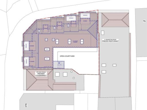
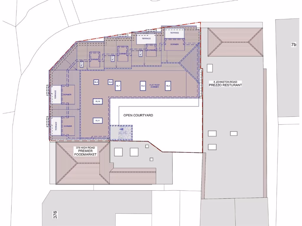
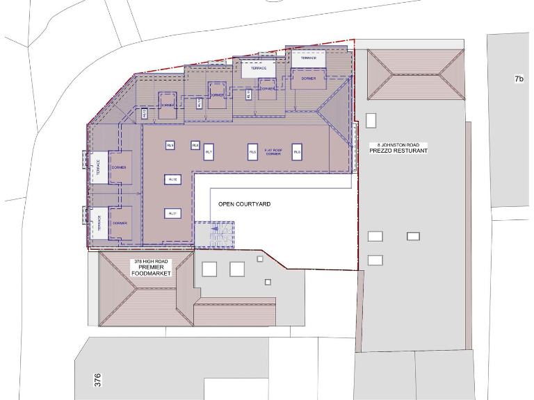
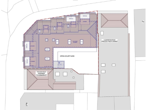
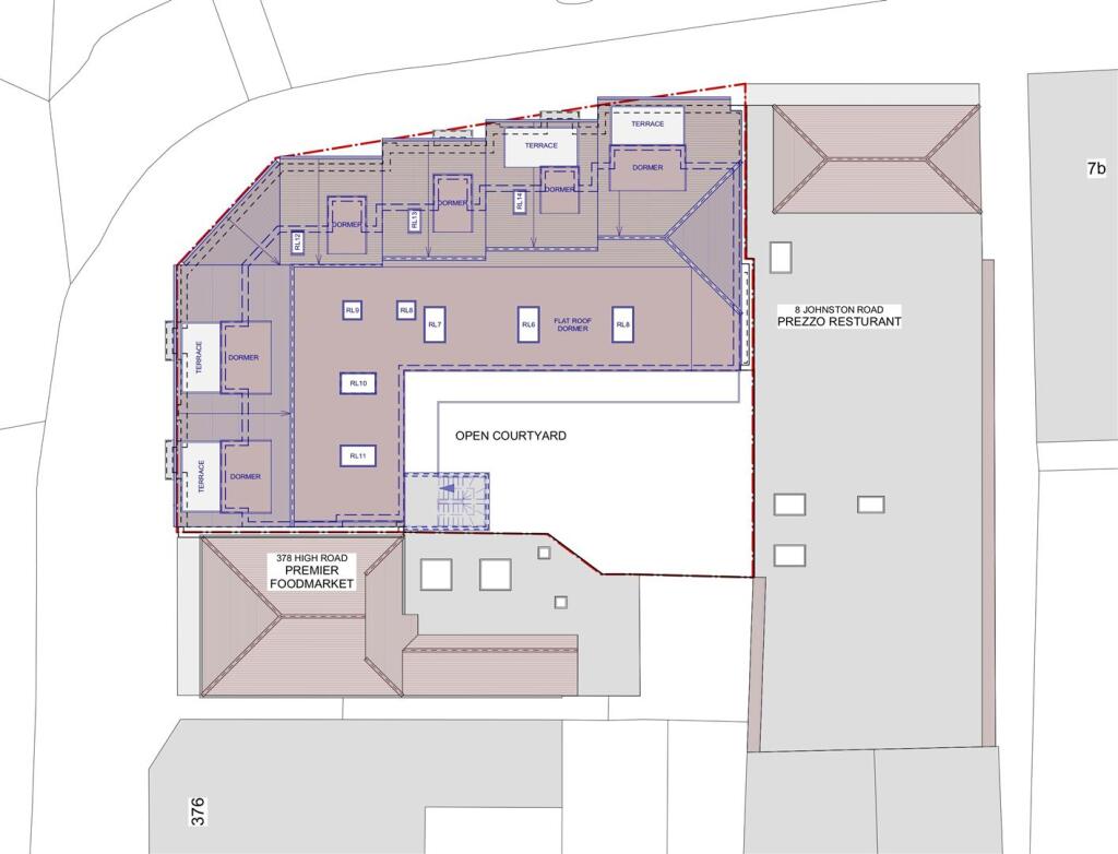
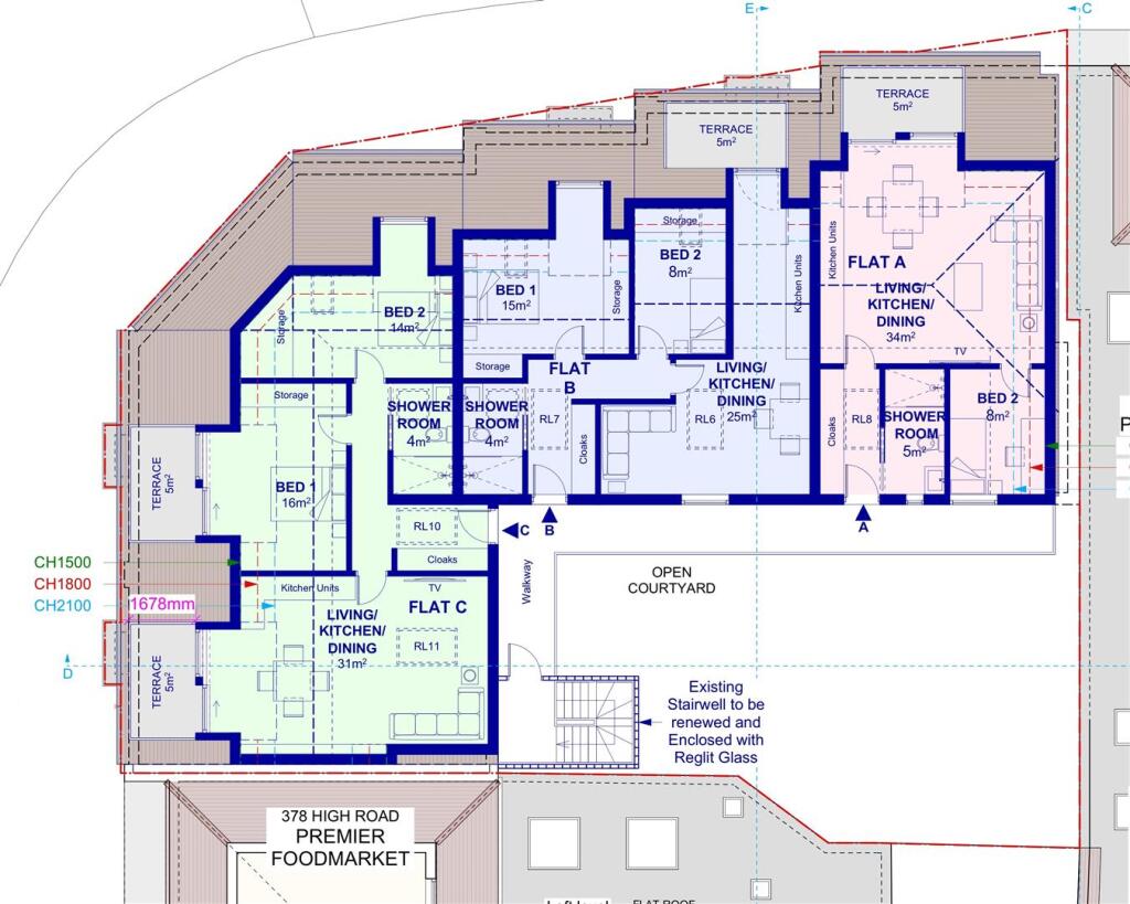
- Planning consent for three residential apartments (one 1-bedroom and two 2-bedrooms)
- Spacious layout with a rear courtyard
- Located near Woodford Underground Station, Central Line access
**Summary:**
This exceptional freehold corner property presents an outstanding opportunity for investors, combining a lucrative commercial base with substantial development potential. Currently home to two retail spaces that have provided stable income from established estate agencies, this property is situated in a high-traffic area overlooking the picturesque Green/Duckpond. With planning consent already approved to convert the loft into three self-contained apartments complete with balconies and landscaped amenity space, you have a rare chance to enhance the property’s value and capitalize on the growing demand for residential units.
The meticulously maintained brick exterior complements the diverse local offerings, from shops and restaurants to schools recognized for excellence, making it a desirable location for residential living, especially among families and professionals. While the building is solid in construction, prospective buyers should note that the loft conversion will require additional investment and consideration. Don’t miss out on this unique opportunity to secure a prominent property with dual income streams and the potential for future growth in a vibrant community!
Residential development for sale in High Road & 9-10 Johnston Road, Woodford Green, IG8 — £650,000 • 1 bed • 1 bath • 2605 ft²
High street retail property for sale in Jubilee Parade, Snakes Lane, Woodford Green, Essex, IG8 — £650,000 • 1 bed • 1 bath • 2037 ft²
Commercial property for sale in The Broadway, Woodford Green, IG8 — £1,300,000 • 1 bed • 1 bath • 3414 ft²
Commercial property for sale in High Road, Woodford Green, Essex, IG8 — £1,000,000 • 1 bed • 1 bath • 631 ft²
2 bedroom mixed use property for sale in Snakes Lane East, Woodford Green, Essex, IG8 — £510,000 • 2 bed • 1 bath • 1901 ft²
3 bedroom mixed use property for sale in Mulberry Way, London, E18 — £799,000 • 3 bed • 2 bath • 2106 ft²


























