Long‑term retail income with vacant flat and refurbishment upside near the Central Line.
Freehold mixed-use Victorian parade property
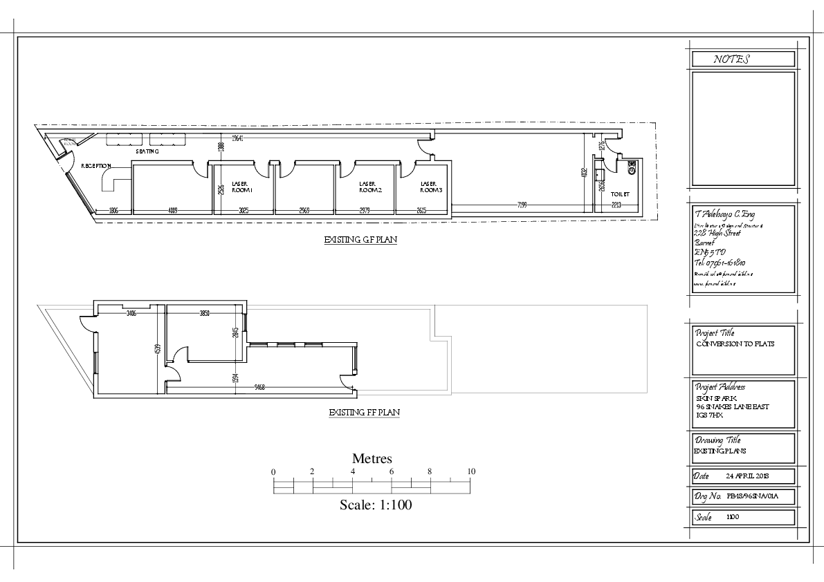
A freehold mixed-use terrace in a high-footfall Woodford Green parade, offered with a long-standing retail tenant and a vacant upper-flat, presenting an immediate income stream and refurbishment upside. The ground-floor shop is let at £20,000 per annum on a 10-year lease from 20 December 2018 (tenancy running until December 2028). The first-floor self-contained two-bedroom flat is vacant and will require inspection and likely refurbishment before re-letting, offering scope to increase overall yield.
The property is a typical Victorian parade shop with upper residential accommodation, brick frontage and glass retail display. It sits close to Woodford Central Line station and local amenities, benefiting from excellent commuter links and a strong pedestrian catchment. There is no indication of flood risk, broadband and mobile signals are strong, and the local area is family- and student-oriented.
Measured internal areas show approximately 1,901 sq ft overall, with the shop at about 118.8 m² (1,270 ft²) and the flat at 58.7 m² (632 ft²). Note the published flat room sizes include an unusually small second bedroom measurement (0.95 m²) which should be checked on inspection — this may be a typographical error or indicate a study/storage room rather than a conventional bedroom. The property is not elected for VAT.
Suitable for investors seeking a hands-on asset with short-term refurbishment potential or a landlord wanting mixed income, this freehold offers immediate rental return plus reversionary value if the flat is upgraded or the retail terms renegotiated. Offers are sought in the region of £500,000, subject to contract.
3 bedroom mixed use property for sale in Mulberry Way, London, E18 — £800,000 • 3 bed • 2 bath • 2106 ft²
Industrial development for sale in High Road & 9-10 Johnston Road, Woodford Green, IG8 — £1,650,000 • 1 bed • 1 bath • 3647 ft²
Commercial property for sale in The Broadway, Woodford Green, IG8 — £1,300,000 • 1 bed • 1 bath • 3414 ft²
High street retail property for sale in 245 Cann Hall Road, Leytonstone, E11 3NL, E11 — £500,000 • 1 bed • 1 bath • 1346 ft²
2 bedroom property for sale in Chingford Road, Walthamstow, London, E17 — £600,000 • 2 bed • 1 bath • 1642 ft²
Commercial development for sale in Wilton Road, Abbey Wood, SE2 9RH, SE2 — £650,000 • 1 bed • 1 bath • 1400 ft²














