Spacious plot, strong school links and ready-to-use garden office.
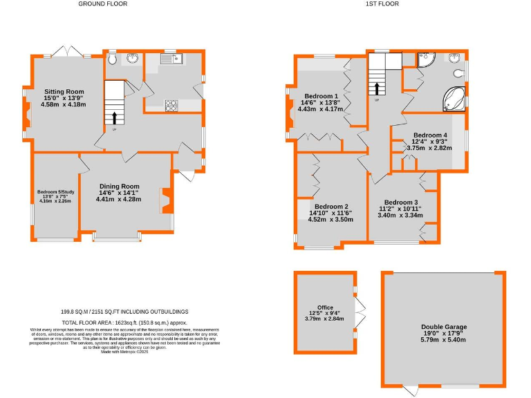
Four double bedrooms with fitted wardrobes throughout
Three reception rooms plus separate study/bedroom five
Large private rear garden and wide paved front driveway
Purpose-built garden office with air conditioning and internet
Double garage accessed from Hayes Way; extra parking available
Single family bathroom only; potential need for second bathroom
Solid brick 1930s walls, limited insulation; EPC D
Scope for extension subject to planning permission
This handsome 1930s detached family house sits on a large plot on the fringe of Park Langley, close to Highfield and Langley Park schools. The house is well presented throughout with three reception rooms, a generous entrance hall, and four double bedrooms with built-in wardrobes — ready for everyday family life. A purpose-built garden office with air conditioning and fast internet makes working from home straightforward.
Outside offers genuine family space: a wide paved driveway, low-maintenance front garden and a substantial rear garden extending beyond the patio. A large double garage accessed from Hayes Way provides secure parking and storage or could be repurposed as a gym or workshop. The property benefits from full double glazing, attractive flooring and mains gas central heating.
Practical points to note: accommodation totals about 1,117 sq ft and there is a single family bathroom, so some buyers may want to add an additional bathroom. The house was built 1930–1949 with solid brick walls (likely without cavity insulation) and currently has an EPC rating of D; there is obvious scope to improve energy performance and extend the home, subject to planning permission. Council tax is described as quite expensive.
In short, this is a roomy, well-located family home with strong local school links and good home‑working facilities, offering immediate comfort with clear potential for improvement and extension for a growing family.
3 bedroom detached house for sale in Hayes Way, Park Langley, Beckenham, BR3 — £825,000 • 3 bed • 1 bath • 1179 ft²
4 bedroom detached house for sale in Hayes Lane, Beckenham, BR3 — £1,500,000 • 4 bed • 1 bath • 2423 ft²
5 bedroom detached house for sale in Brabourne Rise, Beckenham, BR3 — £1,450,000 • 5 bed • 2 bath • 2370 ft²
4 bedroom semi-detached house for sale in Den Close, Beckenham, BR3 — £965,000 • 4 bed • 1 bath • 1428 ft²
4 bedroom detached house for sale in Hayes Chase, West Wickham, BR4 — £1,000,000 • 4 bed • 2 bath • 1857 ft²
5 bedroom detached house for sale in Hayes Chase, West Wickham, BR4 — £1,200,000 • 5 bed • 2 bath • 2058 ft²


















































































