**Standout Features:**
- Planning permission granted for a three-bedroom detached family home and garage
- Spacious building plot set in a picturesque village with pleasant rural views
- Private driveway access providing off-street parking
- Quiet, low-crime area with a community feel
- Close proximity to local amenities and good-rated primary schools
**Notable Concerns:**
- Access to the private drive is shared with future developments
- Rural location may mean limited broadband speeds and average mobile signal
**Property Summary:**
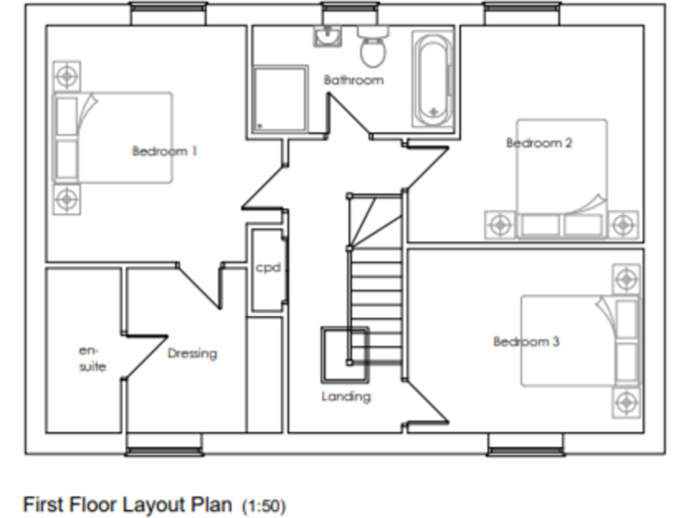
This exceptional plot in the charming village of Hemswell presents a rare opportunity for self-builders or developers, with planning permission already secured for a detached three-bedroom family home with an integrated garage. Spanning approximately 1,636 square feet, the proposed design promises modern living with an inviting entrance hall, multiple reception areas, and spacious bedrooms, including a principal suite with an en-suite and dressing room.
Enjoy the tranquility of open countryside views while benefiting from the community atmosphere of this quieter neighborhood. The generous garden space and private driveway make it ideal for families seeking a peaceful retreat or investors looking at promising rental potential. While the area offers peaceful living with excellent primary schools nearby, do note the average mobile and broadband connectivity. This is a unique opportunity not to be missed—secure your spot in this idyllic rural haven!
Land for sale in Brook Street, Hemswell, GAINSBOROUGH, DN21 — £165,000 • 1 bed • 1 bath • 1041 ft²
Plot for sale in Hawthorne Close, Glentworth, Gainsborough, DN21 — £100,000 • 4 bed • 2 bath • 894 ft²
Plot for sale in Folly Hill, Thornton Road, North Owersby, LN8 — £125,000 • 4 bed • 3 bath • 2007 ft²
Land for sale in Fieldside, Ingham, Lincoln, LN1 — £115,000 • 3 bed • 2 bath • 1771 ft²
Land for sale in Church Street, Hemswell, Gainsborough, DN21 5UQ, DN21 — £450,000 • 1 bed • 1 bath • 15500 ft²
Plot for sale in Residential Building Plot, Off Monson Road, Northorpe, Gainsborough, DN21 4AF, DN21 — £150,000 • 1 bed • 1 bath


















































