DN21 5UQ - Land for sale in Church Street, Hemswell, Gainsborough, DN2…

View on Property Piper

Land for sale in Church Street, Hemswell, Gainsborough, DN21 5UQ, DN21

Summary - 20 CHURCH STREET HEMSWELL GAINSBOROUGH DN21 5UQ

1 bed 1 bath Land

Freehold gated site with consent for four executive homes and strong GDV potential..
Planning consent for four executive detached houses (ref 146370)
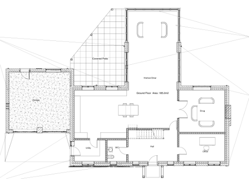
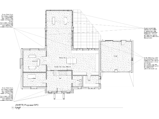
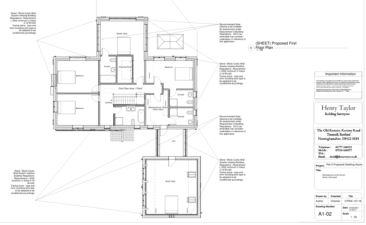
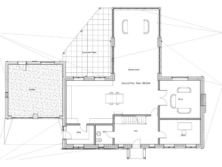
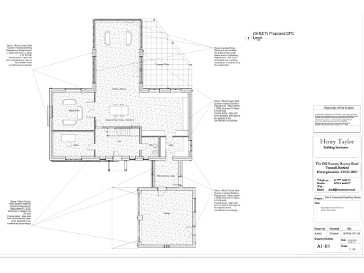
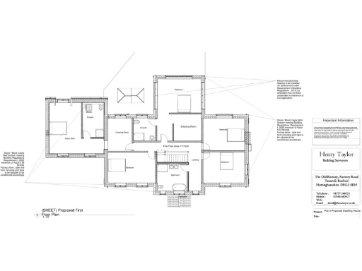
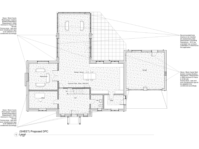
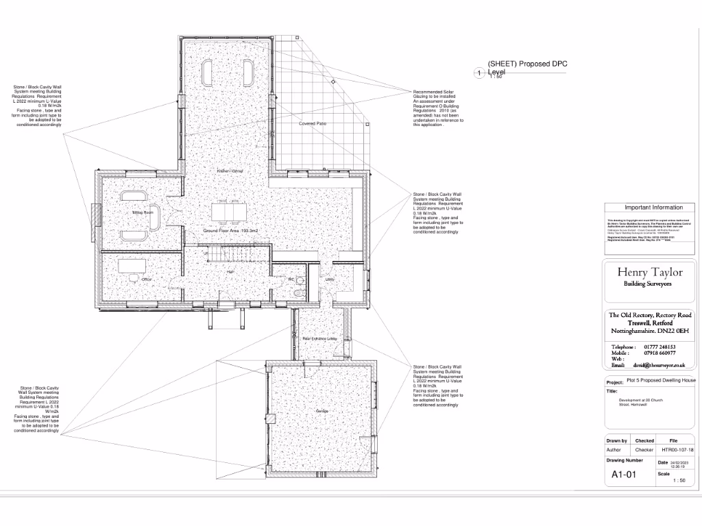
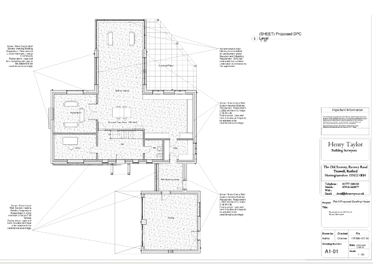
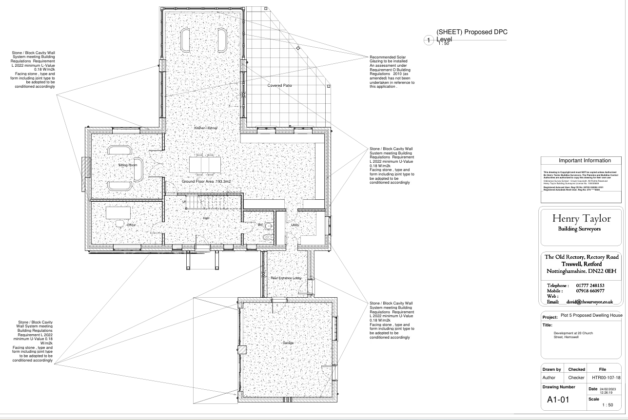
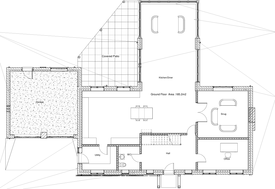
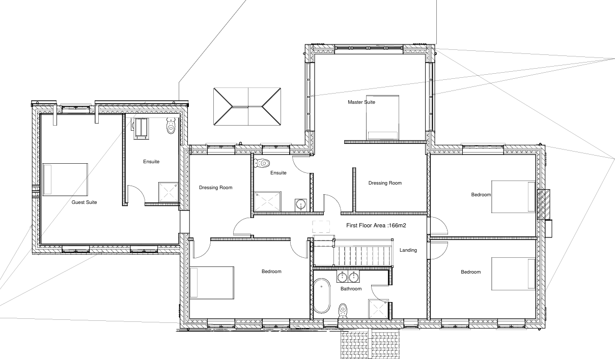
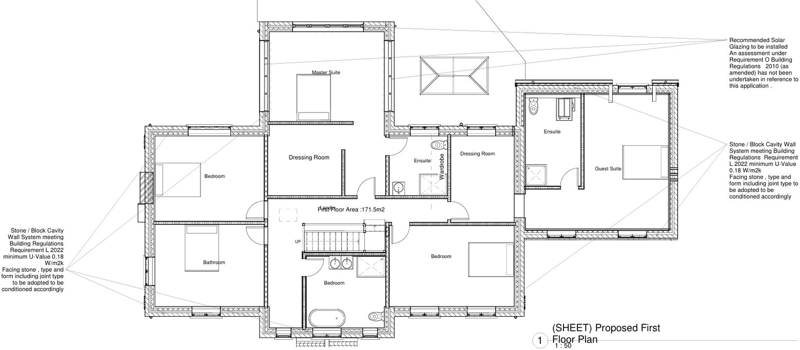
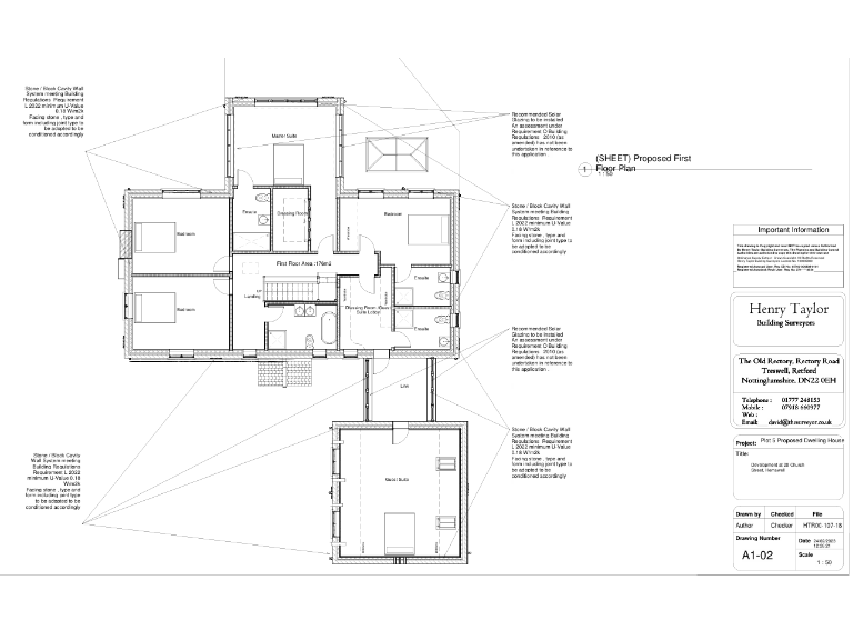
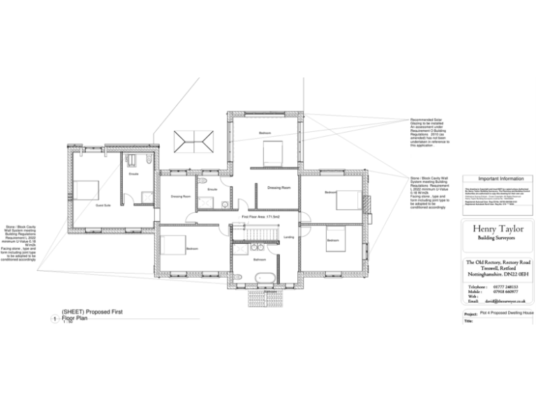
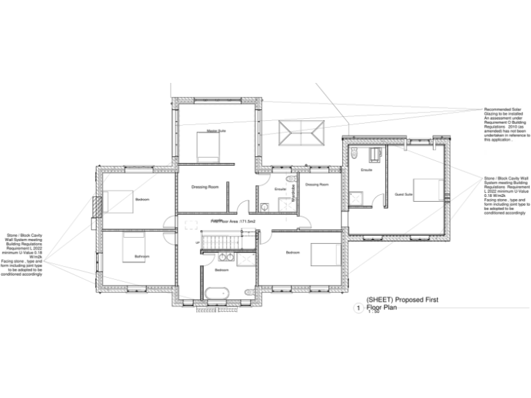
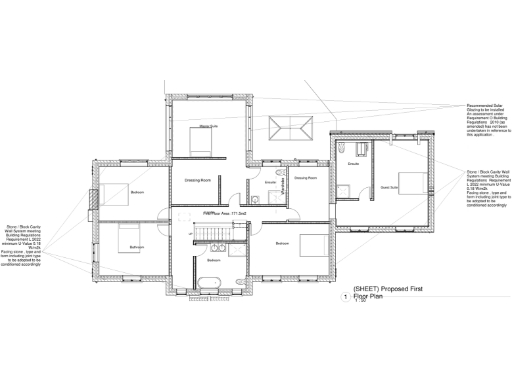
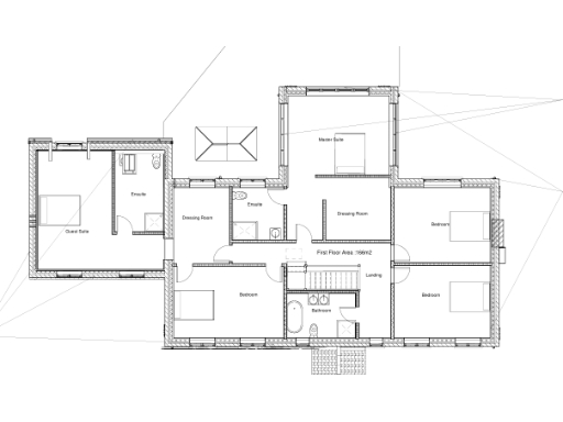
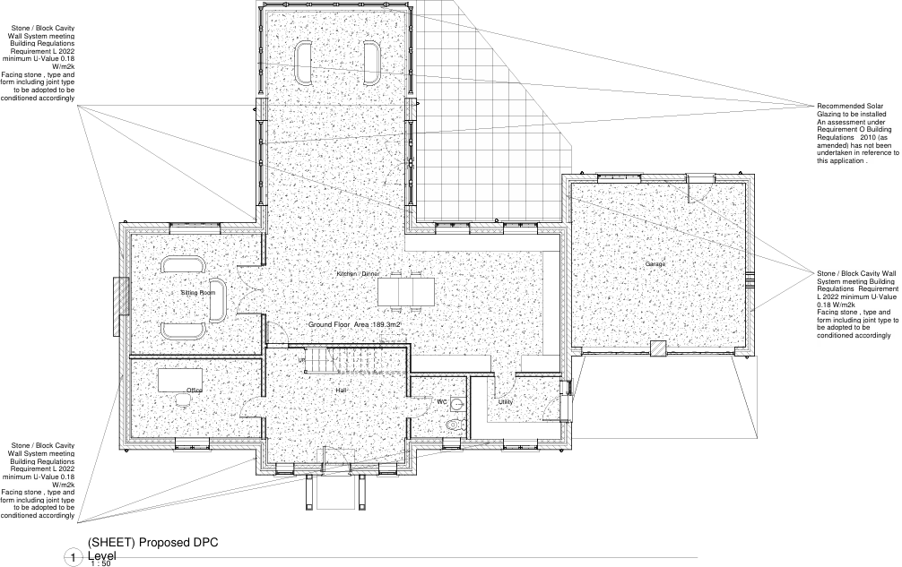
A rare select development site in Hemswell with planning consent (West Lindsey ref 146370) for four substantial executive detached houses and scope for a fifth plot subject to further planning. The parcel sits set back from Church Street in a peaceful rural village location, offering an estimated GDV in excess of £3m and potential living space of around 1,440 m² (15,500 sq ft).

The site is sold freehold and currently contains former poultry buildings; redevelopment and demolition will be required before construction. Services and connectivity are basic — average broadband and no mobile signal on site — so developers should allow for utility upgrades and site remediation costs. Flood risk is recorded as no risk and local crime levels are very low, supporting the site’s appeal for high-spec family homes.

This opportunity suits developers or investor-builders seeking a high-value small gated scheme in a tranquil Lincolnshire village, around 15 miles from Lincoln. Planning approval and the strong estimated GDV reduce planning risk, but purchasers should factor in demolition, site preparation, infrastructure works and planning for any additional plot.

Property Details

Image Descriptions

Floorplan Description

Rooms

Textual Property Features

Target Audience

AI Tags

Detected Visual Features

Nearby Schools

Nearest Bars And Restaurants

,,,,}

Nearest General Shops

,,}

Nearest Grocery shops

,,}

Nearest Supermarkets

,,}

Nearest Religious buildings

,,}

Nearest Medical buildings

,,,}

Nearest Airports

}

Nearest Leisure Facilities

,,,,}

Nearest Tourist attractions

,,}

Nearest Train stations

,,,,}

Nearest Bus stations and stops

,,,,}

Nearest Hotels

,,}

Tags

Local Market Stats

Similar Properties

Meta

High Res Images

Compatible Images

Low res Images

Thumbnails

Raw Images

High Res Floorplan Images

Compatible Floorplan Images

Low res Floorplan Images

FloorplanImages Thumbnail

Raw Floorplan Images