Modern family layout with en-suites and garden, ideal for everyday living.
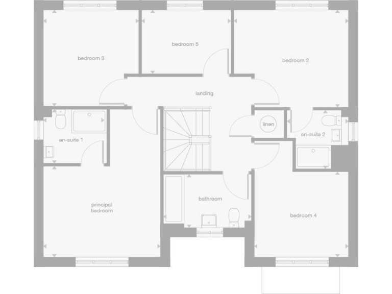
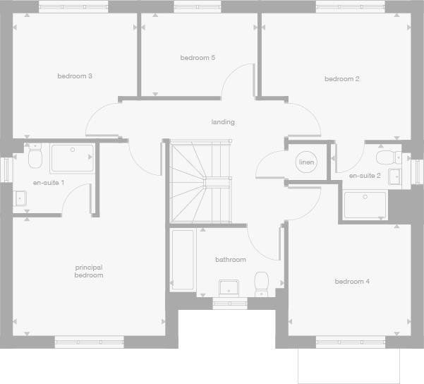
- Five bedrooms with two en-suite principal bedrooms
- Large open-plan kitchen/family/dining with French doors
- Separate bay-windowed lounge for formal living
- Dedicated laundry room, downstairs WC and good storage
- Extended single garage and private rear garden
- Small overall internal size (~1,201 sq ft)
- Broadband speeds reported slow despite excellent mobile signal
- Area classified as very deprived; consider long-term resale factors
This newly built five-bedroom detached house at Hoghill Farm offers practical family space with modern finishes and sensible storage. The ground floor centres on a large open-plan kitchen/family/dining area with French doors to the rear garden, plus a separate bay-windowed lounge for quieter living. Two principal bedrooms include en-suites, providing flexible sleeping arrangements for parents and guests.
Built as part of the East Calder Oaks development, the home is presented with contemporary fixtures, an extended single garage and a dedicated laundry room. Useful extras include downstairs WC, handy storage and good natural light throughout. The property is freehold and carries a modest annual service charge of £234.50.
Buyers should note a few practical drawbacks: the advertised broadband speeds are slow despite excellent mobile signal, and the wider area is classified as very deprived which may affect long-term resale dynamics. The overall internal square footage is relatively compact at about 1,201 sq ft, so the layout is optimized rather than expansive.
For families seeking a low-maintenance, modern new-build with en-suite convenience and outdoor space, this house offers strong everyday practicality. Investors or buyers prioritising high‑speed wired broadband or a more affluent neighbourhood may want to weigh those factors against the property’s new-build benefits and layout.
5 bedroom detached house for sale in Common Road,
East Calder,
West Lothian,
EH53 0JR, EH53 — £474,000 • 5 bed • 1 bath • 1417 ft²
5 bedroom detached house for sale in Common Road,
East Calder,
West Lothian,
EH53 0JR, EH53 — £439,000 • 5 bed • 1 bath • 1169 ft²
4 bedroom detached house for sale in Common Road,
East Calder,
West Lothian,
EH53 0JR, EH53 — £374,000 • 4 bed • 1 bath • 859 ft²
5 bedroom detached house for sale in Off Manuel Terrace,
Whitecross,
Falkirk,
EH49 6LR, EH49 — £420,000 • 5 bed • 1 bath • 1201 ft²
5 bedroom detached house for sale in Off Grahamsdyke Road,
Bo'ness
EH51 9DH, EH51 — £418,000 • 5 bed • 1 bath • 1202 ft²
5 bedroom detached house for sale in Off Turnhouse Road,
Edinburgh,
EH12 0AD, EH12 — £625,000 • 5 bed • 1 bath • 1201 ft²


































































