Two double bedrooms with en suite, conservatory and parking in St Erth.
End-terrace, built 2013, presented in immaculate move-in ready condition
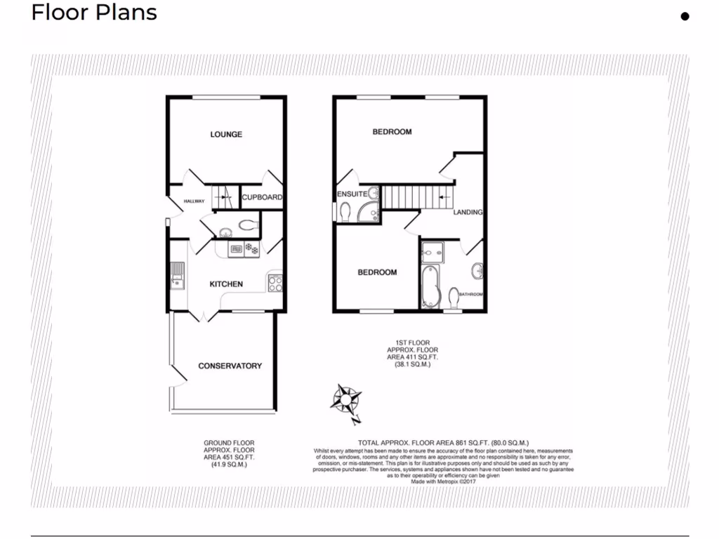
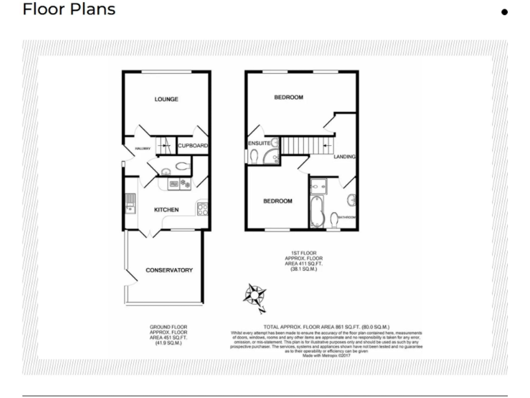
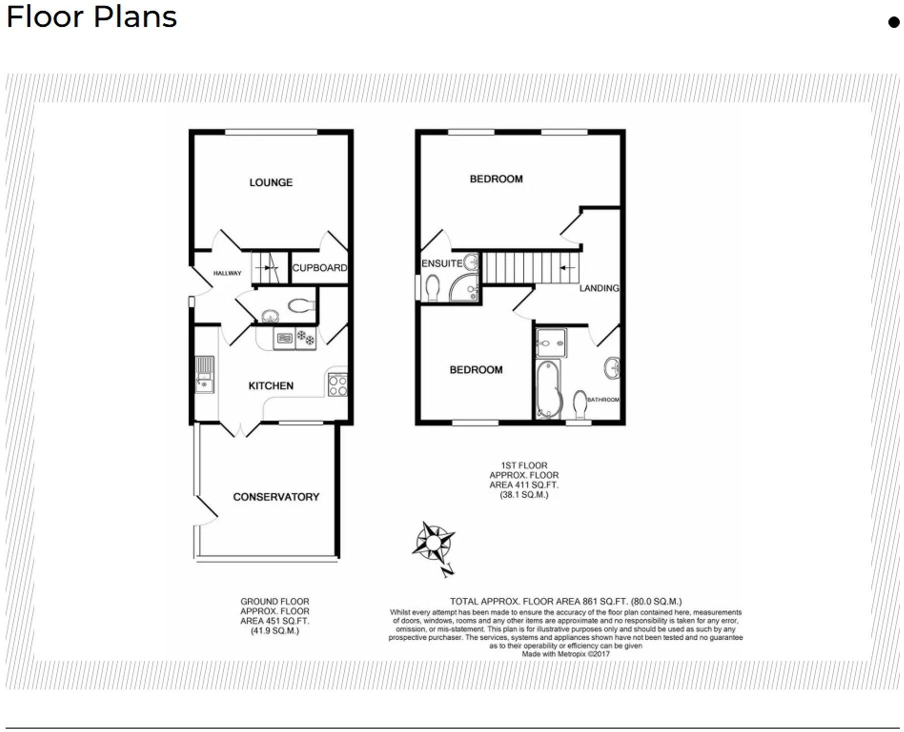
This immaculate two-bedroom end-terrace, built in 2013, offers a move-in ready start for first-time buyers or couples. The ground floor flows from a fitted kitchen with integrated appliances into a bright conservatory that opens onto a private rear garden and terrace. An off-street parking space and gas central heating add everyday convenience.
Upstairs are two double bedrooms, the principal with an en suite, plus a family bathroom. The house measures about 861 sq ft and benefits from double glazing and modern finishes throughout following recent renovation. Freehold tenure and a low council tax band help keep running costs down.
Practical considerations: the rear plot is small and already topsoiled, ready for planting rather than large-scale landscaping. Broadband speeds in the area are slow, which may affect heavy home-working needs. The local area is described as relatively deprived despite low crime and excellent mobile signal; nearby train links and coastal amenities improve accessibility and lifestyle.
Overall this property suits buyers seeking a low-maintenance, contemporary home in a village setting. It presents straightforward potential to personalise the garden and offers a convenient base for exploring the north Cornwall coast.
2 bedroom terraced house for sale in Trehayes Meadow, St. Erth, Hayle, TR27 — £229,950 • 2 bed • 1 bath • 507 ft²
3 bedroom house for sale in St Erth, Hayle - views towards Trencrom Hill, TR27 — £270,000 • 3 bed • 1 bath • 369 ft²
3 bedroom terraced house for sale in Lanuthnoe Estate, St. Erth, TR27 6HU, TR27 — £229,950 • 3 bed • 1 bath • 587 ft²
2 bedroom detached bungalow for sale in Lanuthnoe Estate, St. Erth, TR27 — £500,000 • 2 bed • 1 bath • 765 ft²
2 bedroom cottage for sale in Charming character cottage with no onward chain, St. Erth, TR27 — £225,000 • 2 bed • 1 bath • 554 ft²
2 bedroom house for sale in St Erth, Hayle - Two bedroom home, TR27 — £160,000 • 2 bed • 1 bath


























































