Small two-bedroom cottage in St Erth with parking and courtyard.
No onward chain — vacant possession possible
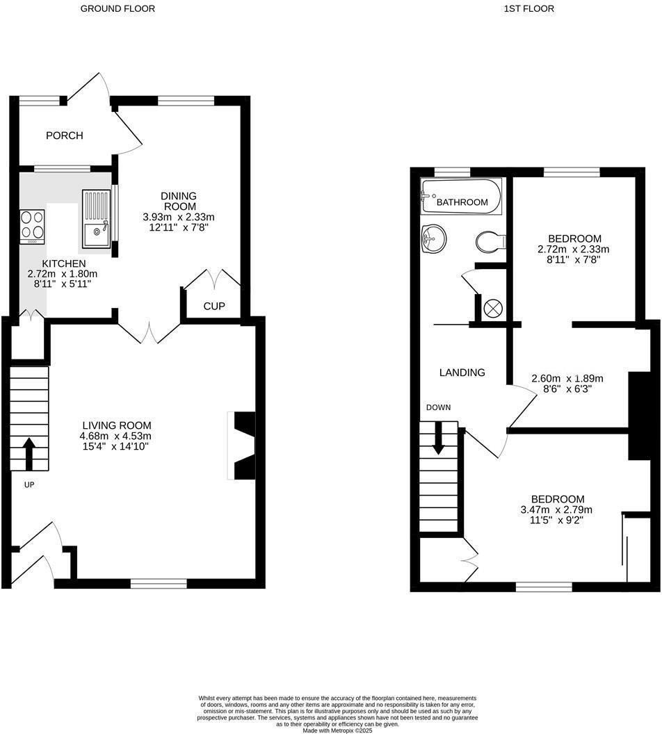
A compact two-bedroom mid-terrace cottage in St Erth offered with no onward chain — ideal for a first-time buyer seeking character and scope to add value. The house retains traditional Cornish stonework and a quaint façade, with a practical layout including lounge, separate dining room, kitchen, two bedrooms and a small flexible room for a home office or dressing area.
The property requires modernising throughout: expect cosmetic and likely some fabric improvements (windows double glazed but install date unknown; walls assumed uninsulated granite). Heating is mains gas via boiler and radiators; the Energy Performance Certificate is E (54). The small rear courtyard and front off-street parking are convenient but the plot is modest, so outdoor space is limited.
St Erth village offers local amenities, a good primary school and a rail link to nearby towns and coast — helpful for commuting or weekend escapes. Broadband speeds are slow and mobile signal average, which should be factored into remote-working plans. Council Tax Band B keeps ongoing costs low.
This cottage suits a buyer wanting a manageable project to personalise with potential for value uplift. Be realistic about renovation costs and the compact footprint; surveys are recommended to confirm insulation, services and any structural issues before committing.
2 bedroom terraced house for sale in Fore Street, St. Erth, Hayle, Cornwall, TR27 6HT, TR27 — £245,000 • 2 bed • 1 bath • 603 ft²
3 bedroom terraced house for sale in Fore Street, St. Erth, Hayle, TR27 6HT, TR27 — £235,000 • 3 bed • 1 bath • 839 ft²
2 bedroom semi-detached house for sale in Chapel Hill, St. Erth, Hayle, Cornwall, TR27 6HL, TR27 — £285,000 • 2 bed • 2 bath • 1184 ft²
2 bedroom house for sale in St Erth, Hayle - Two bedroom home, TR27 — £160,000 • 2 bed • 1 bath
2 bedroom terraced house for sale in Troon Row, Breage, Helston, Cornwall, TR13 — £269,500 • 2 bed • 1 bath • 521 ft²
2 bedroom semi-detached house for sale in Canonstown, Hayle TR27 — £180,000 • 2 bed • 1 bath • 614 ft²


















































































