Move-in ready terrace with a low-maintenance garden and garage parking.
Newly renovated throughout, modern uPVC windows and fixtures
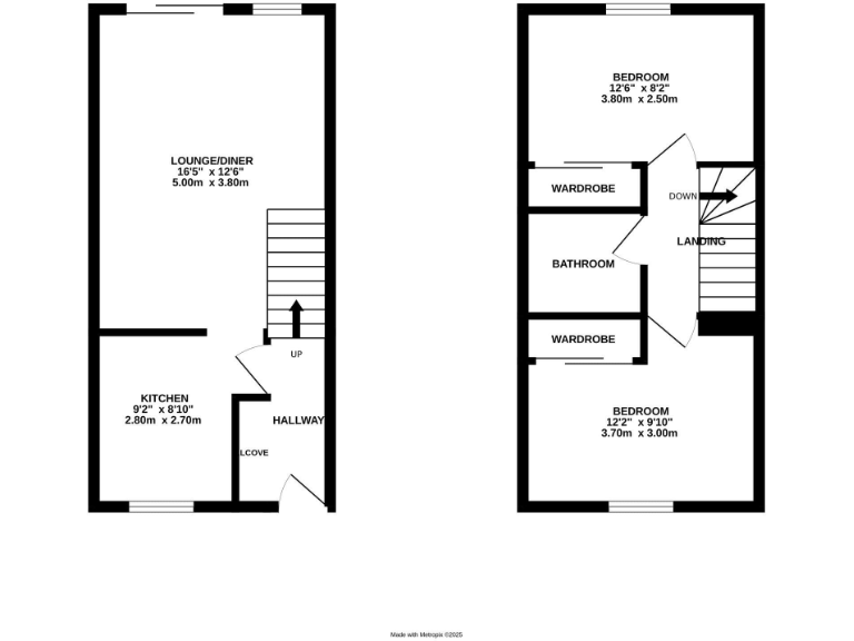
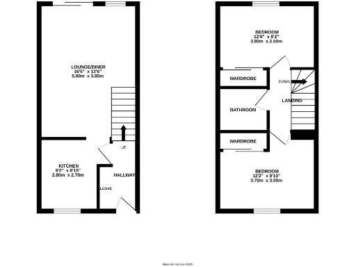
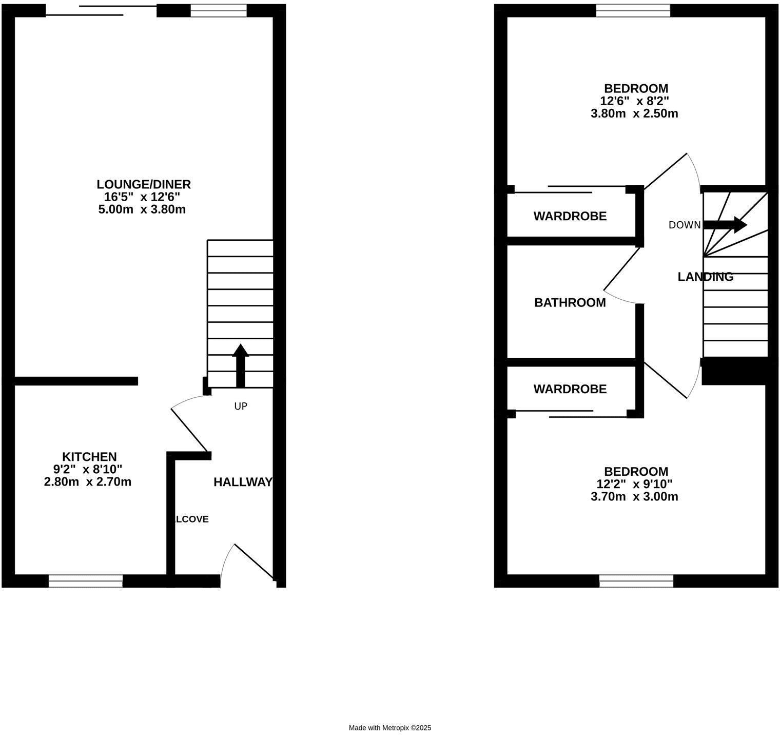
Compact footprint—approximately 507 sq ft, efficient two-bedroom layout
Two double bedrooms with built-in wardrobes and first-floor bathroom
Low-maintenance enclosed rear garden with paved patio and artificial grass
Garage en bloc provides parking/storage but is detached from the house
Electric storage heating—expect higher running costs than gas heating
Pleasant outlook onto communal lawn; front space is communal, not private
Fast broadband, low crime, and good nearby primary and secondary schools
This well-presented two-bedroom mid-terraced house in St Erth offers an economical, move-in ready option for first-time buyers or buy-to-let investors. The interior has recently been renovated, with modern uPVC windows and neat fixtures throughout, and a light through lounge/diner that opens to a low-maintenance rear garden. The property benefits from a garage en bloc and pleasant outlook over a communal lawn.
The house is compact (approximately 507 sq ft) and arranged over two storeys with two double bedrooms and a first-floor bathroom. Heating is provided by electric storage heaters and mains electricity; buyers should note ongoing running costs may be higher than gas-heated homes. The rear garden is small and paved with artificial grass, designed for low upkeep rather than landscaping potential.
Practical positives include fast broadband, low local crime, and proximity to highly rated local primary and secondary schools. The garage en bloc provides useful private parking/storage, but it is not attached to the property. The property sits in an area described as having rural traits within an industrious transitions district and is offered freehold with relatively low council tax.
Buyers should be aware of the modest footprint and small plot size—this is a compact, efficient home rather than a spacious family house. There is straightforward potential for cosmetic updates if desired, but major structural alteration appears unnecessary given the recent renovation and modern double glazing.
3 bedroom house for sale in St Erth, Hayle - views towards Trencrom Hill, TR27 — £270,000 • 3 bed • 1 bath • 369 ft²
3 bedroom terraced house for sale in Lanuthnoe Estate, St. Erth, TR27 6HU, TR27 — £229,950 • 3 bed • 1 bath • 587 ft²
2 bedroom cottage for sale in Charming character cottage with no onward chain, St. Erth, TR27 — £225,000 • 2 bed • 1 bath • 554 ft²
3 bedroom end of terrace house for sale in Three bedroom home in a village setting, St Erth, TR27 — £229,995 • 3 bed • 1 bath • 948 ft²
2 bedroom house for sale in St Erth, Hayle - Two bedroom home, TR27 — £160,000 • 2 bed • 1 bath
3 bedroom terraced house for sale in Fore Street, St. Erth, Hayle, TR27 6HT, TR27 — £235,000 • 3 bed • 1 bath • 839 ft²






















































































































