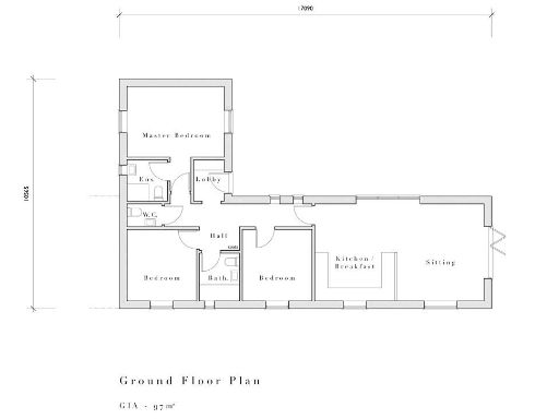
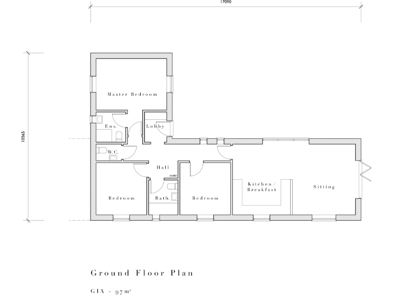
Create two bespoke single-storey homes in peaceful Suffolk countryside.
Full planning consent for two single-storey homes (Ref DC/24/3382/FUL).|Freehold 0.65 acre plot with independent access from Martins Lane.|Requires demolition of steel portal-frame barn before occupation.|No mains drainage; private treatment plant expected to be required.|Mains water and nearby electricity available at site boundary.|CIL payable on commencement: £44,811.90 (reduced amount noted).|Large gardens and long driveway with countryside views; secluded setting.|GDV and detailed cost information available on request.
A rare opportunity to purchase a 0.65-acre freehold site with full planning consent (Ref: DC/24/3382/FUL) for two architect-designed, single-storey homes set in open Suffolk countryside. The plots are designed to sit sensitively beside a listed barn and include independent access from Martins Lane, long landscaped drives, and large private gardens — ideal for buyers seeking single-level living or a bespoke rural development.
Practical aspects are clear: mains water and nearby electricity are available, but there is no mains drainage so a private treatment plant will be required. The current consent requires demolition of the existing steel portal-frame barn before either dwelling may be occupied. A Community Infrastructure Levy (CIL) charge of £44,811.90 is payable on commencement, reduced to reflect the demolished footprint.
The site offers strong development potential with an estimated combined accommodation of about 2,292 sq ft across both plots (GDV information available on request). Its hamlet location provides exceptional privacy, very low crime and fast broadband — balanced by countryside tranquillity rather than immediate urban conveniences. A site visit is recommended to appreciate the views and setting within easy driving distance of Woodbridge.
This plot will suit buyers wanting to create bespoke single-storey homes — downsizers, families seeking ground-floor living, or developers looking for a low-density rural scheme. Note the material conditions and infrastructure requirements so budget planning includes demolition, foul drainage installation and the CIL levy.
Land for sale in Hall Road, Burgh, Woodbridge, IP13 — £275,000 • 2 bed • 1 bath
Land for sale in Creeting Hills, Creeting St. Mary, IP6 — £260,000 • 4 bed • 2 bath • 2500 ft²
Plot for sale in Church Road, Crowfield, Ipswich, IP6 — £225,000 • 4 bed • 3 bath
Land for sale in Old London Road, Copdock, IP8 — £735,000 • 1 bed • 1 bath
Plot for sale in Replacement Dwelling at Moat Farm, Parliament Heath, Groton, Suffolk, CO10 — £425,000 • 4 bed • 3 bath • 2291 ft²
Plot for sale in Debach nr Woodbridge, Suffolk, IP13 — £450,000 • 1 bed • 1 bath • 3660 ft²


















































































































