Chain-free family home with sunny rear garden and easy town access.
Three double bedrooms across two floors
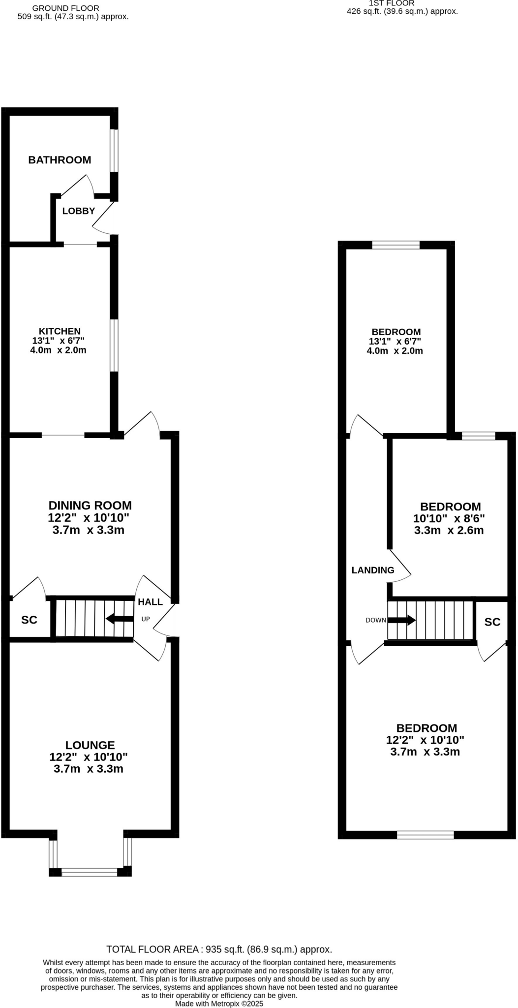
This Edwardian semi‑detached house offers a practical three double‑bedroom layout across two floors, with two separate reception rooms and a fitted kitchen. The living room benefits from a front bay window; the dining room opens directly onto a south‑west facing rear garden that catches afternoon sun. The property is chain‑free and within walking distance of town, shops and the station, making daily routines and commutes straightforward.
Built around 1900–1929 from solid brick, the home has double glazing and gas central heating via a boiler and radiators. The family bathroom is a four‑piece, and there is a brick-built shed and gated side access. A single garage and off‑street parking add practical convenience for families or commuters.
Buyers should note the plot is modest in width and predominantly paved/shingled with a faux lawn — low maintenance but narrow/long in shape. The solid‑brick walls are assumed uninsulated, and the EPC indicates mid‑range efficiency; improving insulation or heating could cut running costs and raise the rating. There is scope for modest updating or extension (subject to planning consent) for anyone seeking to add value.
Overall this is a sensible family purchase or first home for someone wanting straightforward accommodation in a well‑connected town location, with clear potential to modernise energy performance and layout to match current living standards.
3 bedroom semi-detached house for sale in Rowletts View, Biggleswade, SG18 — £385,000 • 3 bed • 1 bath • 732 ft²
3 bedroom semi-detached house for sale in Mead End, Biggleswade, SG18 — £384,950 • 3 bed • 1 bath • 880 ft²
2 bedroom terraced house for sale in Dickens Court, Biggleswade, SG18 — £300,000 • 2 bed • 1 bath • 576 ft²
4 bedroom detached house for sale in Playfield Close, Biggleswade, SG18 — £550,000 • 4 bed • 2 bath • 1237 ft²
3 bedroom semi-detached house for sale in Playfield Close, Biggleswade, SG18 — £375,000 • 3 bed • 1 bath • 929 ft²
3 bedroom semi-detached house for sale in Drove Road, Biggleswade, SG18 — £400,000 • 3 bed • 1 bath • 996 ft²






















































