Corner-plot house with garage, parking and generous west-facing garden.
Three bedrooms: two doubles and one single
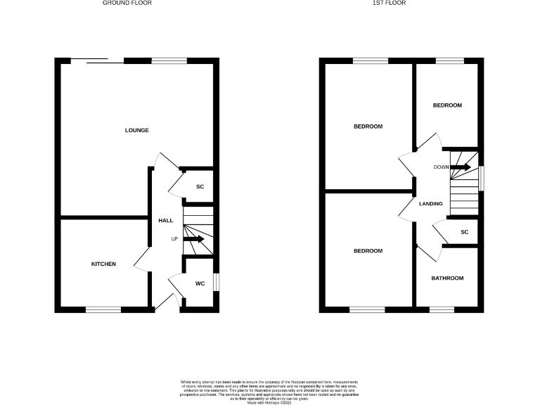
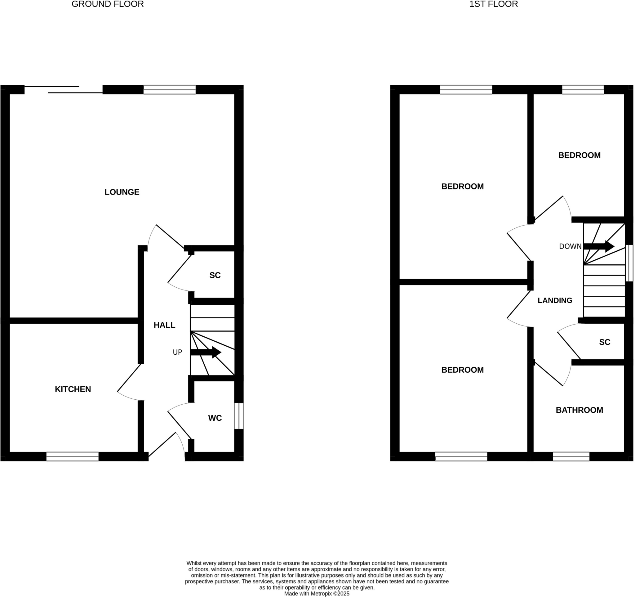
This well-presented three-bedroom semi sits on a corner plot in a quiet cul-de-sac, close to local shops and leisure amenities. The ground floor offers a bright lounge/diner with patio doors to the garden, a practical fitted kitchen and a convenient cloakroom. Upstairs are two double bedrooms, a single bedroom and a family bathroom — a straightforward layout for family life or rental occupation.
Outside the property benefits from a west-facing garden that runs down the side and across the rear, plus a garage with power and light and allocated parking. Broadband speeds are fast and the home is freehold with modern double glazing and gas central heating, reflecting its 2007–2011 construction period.
Buyers should note the house has a relatively small overall footprint and a single bathroom, which may feel tight for larger families. The immediate outlook is suburban and there are no long-distance views. Overall this is a sensible, low-maintenance family home or buy-to-let opportunity in a convenient town location.
3 bedroom semi-detached house for sale in Coates Road, Biggleswade, SG18 — £425,000 • 3 bed • 2 bath • 899 ft²
3 bedroom semi-detached house for sale in Ryswick Road, Kempston, Bedford, MK42 — £325,000 • 3 bed • 2 bath • 582 ft²
3 bedroom semi-detached house for sale in Kennett Drive, Biggleswade, SG18 — £385,000 • 3 bed • 2 bath • 941 ft²
3 bedroom semi-detached house for sale in Ribble Mead, Biggleswade, SG18 — £365,000 • 3 bed • 2 bath • 730 ft²
3 bedroom semi-detached house for sale in Planets Way, Biggleswade, SG18 — £378,000 • 3 bed • 2 bath • 955 ft²
3 bedroom semi-detached house for sale in Mead End, Biggleswade, SG18 — £384,950 • 3 bed • 1 bath • 880 ft²














































































