Bright living areas, excellent parking and a private garden ideal for growing families.
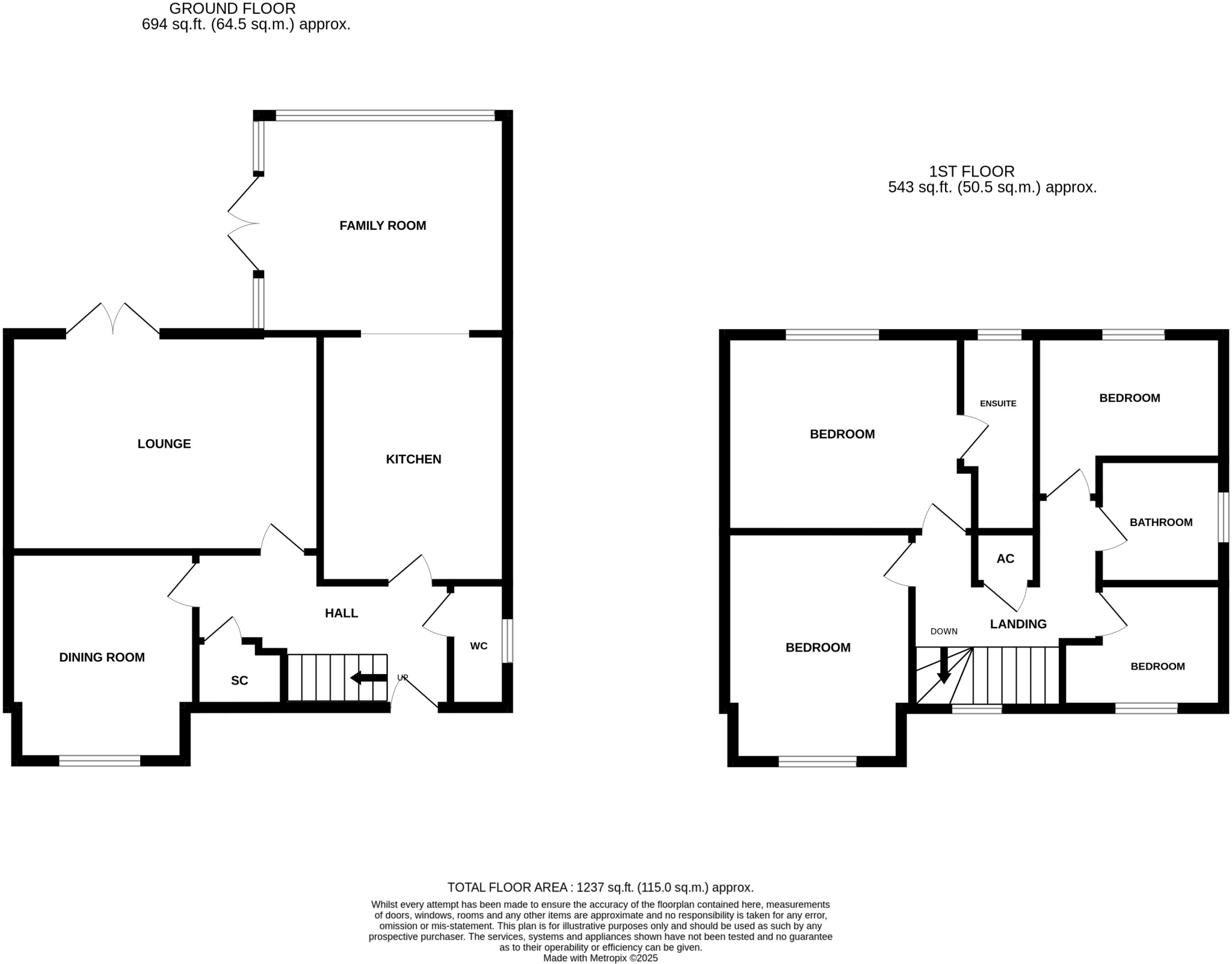
Four double/sized bedrooms with refitted ensuite to principal
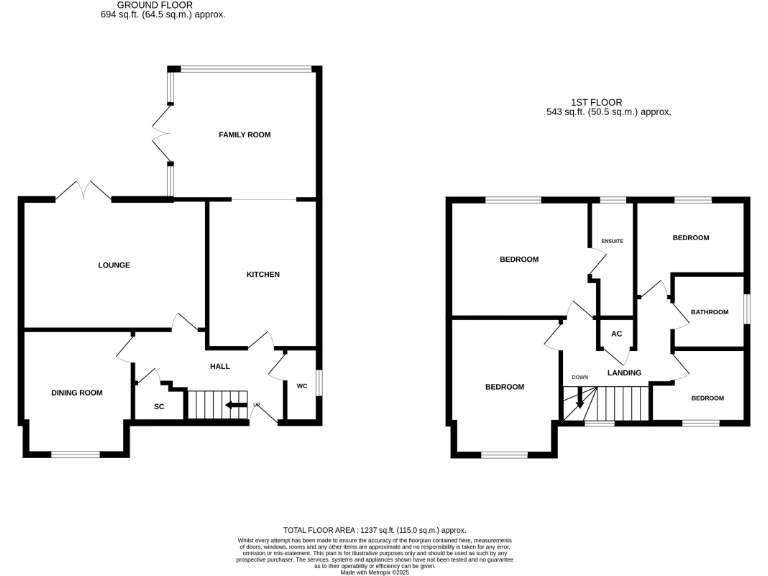
A well-presented four-bedroom detached home arranged over two floors, designed for comfortable family living. The ground floor combines separate reception rooms with a bright kitchen and vaulted family room/conservatory, giving generous flexible space for daily life and entertaining. Skylights and large windows bring strong natural light into the living areas.
Outside, the plot provides excellent parking — a block-paved driveway for up to four cars plus an attached single garage — and a neatly landscaped rear garden with paved patio, lawn, mature planting and a gazebo. Practical extras include an EV charger and garage with power and light.
Upstairs, the principal bedroom benefits from a refitted ensuite; family needs are served by a further family bathroom. The house is freehold, gas-central heated with double glazing and was built around 1996–2002, so it offers modern construction and low flood/crime risk. Note there are only two bathrooms for four bedrooms and council tax is above average.
4 bedroom detached house for sale in Arnold Rise, Biggleswade, SG18 — £490,000 • 4 bed • 2 bath • 1148 ft²
4 bedroom detached house for sale in Darwin Drive, Biggleswade, SG18 — £550,000 • 4 bed • 2 bath • 1213 ft²
4 bedroom semi-detached house for sale in Windermere Drive, Biggleswade, SG18 — £499,950 • 4 bed • 2 bath • 1400 ft²
4 bedroom detached house for sale in Fox Close, Dunton, SG18 — £750,000 • 4 bed • 2 bath • 2239 ft²
4 bedroom detached house for sale in Mountbatten Drive, Biggleswade, SG18 — £588,000 • 4 bed • 2 bath • 1500 ft²
4 bedroom detached house for sale in Swanbourne Close, Biggleswade, SG18 — £695,000 • 4 bed • 3 bath • 1274 ft²






























































































