Rare large-scale site with historic outline consent and allocation for mixed-use development.
44 acres (17.81 ha) substantial development landholding
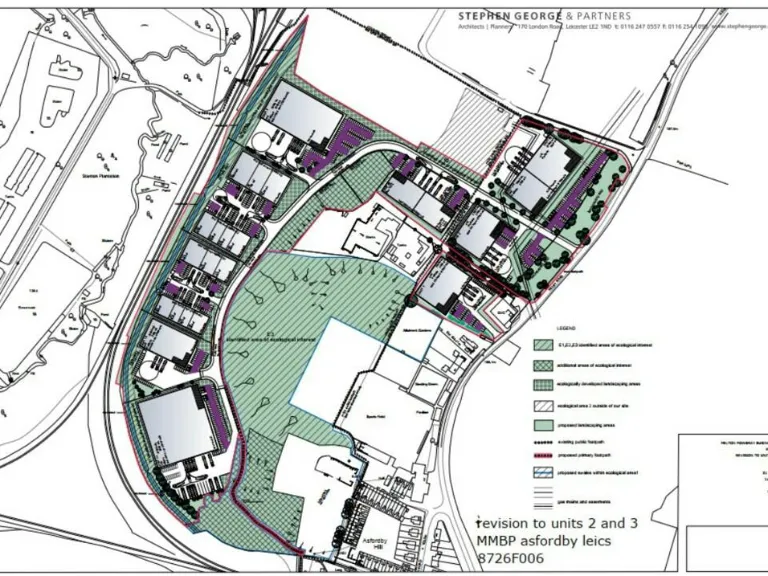
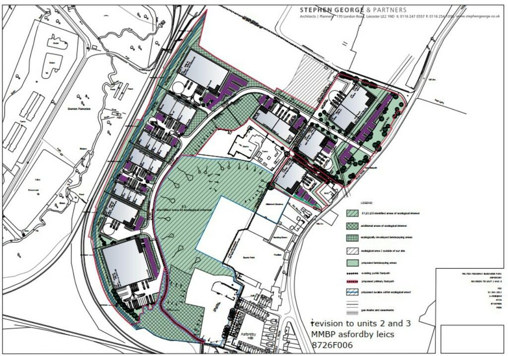
A substantial 44-acre (17.81 ha) development parcel at Holwell Business Park, positioned on the north-west edge of Asfordby Hill. The site benefits from a long-standing allocation in the Asfordby Neighbourhood Plan for mixed-use development, and previously held outline consent for industrial and warehouse floorspace totalling 35,080 sq m plus access, servicing and landscaping. Its scale and location beside existing commercial uses make it attractive for large-scale employment, mixed commercial/residential or bespoke masterplan schemes.
Key positives include excellent mobile signal, fast broadband, no flood risk and direct access from Welby Road. The site adjoins sports and social facilities and existing light industrial neighbours, helping meet operational needs for future occupiers. The local area supports a mix of community uses and up to 100 dwellings in policy documents, presenting options for blended schemes combining Class E employment and Class F2 community space with residential parcels.
Material constraints are clear and factual: the land is former industrial ground and scrubland, historically part of Holwell ironworks, so remediation and site investigation will likely be required. The earlier outline consent is historic rather than current, and tenure information is unspecified — both factors mean prospective buyers should allow time for due diligence, ground works, utility connections and any fresh planning submissions. Access, servicing and landscaping will require delivery through a full technical package.
This holding suits a developer or investor able to manage brownfield remediation and infrastructure delivery, or a local authority/partner seeking to realise an allocated mixed-use project. It offers genuine scale and planning potential but demands capital, technical resource and a clear delivery strategy.
Light industrial facility for sale in 53-59 Main Street, Asfordby, Leicestershire, LE14 — £2,500,000 • 1 bed • 1 bath
Residential development for sale in Land at Sandy Lane, Melton Mowbray, Le14 2un, LE14 2UN, LE14 — POA • 1 bed • 1 bath
Land for sale in Britannia Works, Melton Road, Thurmaston, Leicester, Leicestershire, LE4 — £4,500,000 • 1 bed • 1 bath
Land for sale in Loughborough Road, Hoton, LE12 — £650,000 • 1 bed • 1 bath
Land for sale in Land to the north side of Meadow Lane, Syston, Leicester, LE7 1NR, LE7 — £20,000 • 1 bed • 1 bath
Land for sale in Land Adjacent To Rydal Manor, Kirby Lane, Melton Mowbray, LE14 — £600,000 • 1 bed • 1 bath










