LE14 2UN - 1 bed large development site melton in Hall Drive, LE14 2UN

View on Property Piper

Residential development for sale in Land at Sandy Lane, Melton Mowbray, Le14 2un, LE14 2UN, LE14

Summary - 7 HALL DRIVE BURTON LAZARS MELTON MOWBRAY LE14 2UN

1 bed 1 bath Residential Development

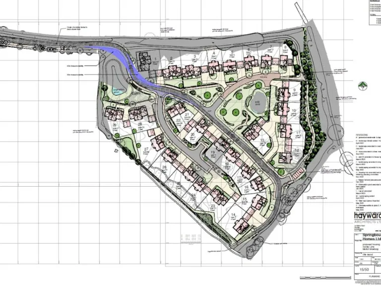
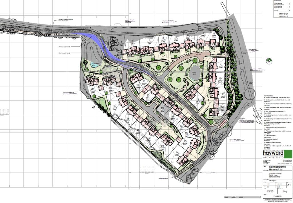
Substantial 9.43-acre freehold site with permission for 29 homes and alternative-use potential..
- Circa 9.43 acres (3.82 ha) freehold development site
- Full planning permission for 29 dwellings (no on-site affordable housing)
- Attractive semi-rural setting, mature boundary trees and open views
- Previous buildings demolished; site cleared and ready to develop
- Unregistered section of access to Sandy Lane — legal review needed
- Suitable for alternative uses (retirement/care) subject to consents
- Slow broadband and average mobile signal; local crime very low
- Vacant possession; informal tender process for offers
A substantial freehold development site of circa 9.43 acres (3.82 ha) on the edge of Melton Mowbray, with full planning permission for 29 dwellings and clear potential for alternative uses such as retirement or care (subject to consents). The land sits in an attractive semi-rural setting with mature boundary trees and open agricultural fields beyond, offering privacy and countryside outlooks about 0.5 miles south of Melton Mowbray.

The site benefits from vacant possession and previous buildings have been demolished and cleared. Key practical points: there is an unregistered section of access between the site and Sandy Lane that requires review; broadband speeds are slow and mobile signal is average; there is no on-site affordable housing within the current permission. Flood risk is low and local crime levels are very low, making the location appealing for family housing, retirement living or a care-led redevelopment.

This opportunity suits developers, specialist operators and investors seeking a large, flexible parcel in an affluent rural catchment with good transport links to Leicester and Nottingham. Offers and joint-venture proposals are invited by informal tender; any redevelopment will need to confirm detailed servicing and access arrangements and meet necessary consents for alternative uses.

Property Details

Brochure Descriptions

Image Descriptions

Textual Property Features

Target Audience

AI Tags

Detected Visual Features

Nearby Schools

Nearest Bars And Restaurants

,,,,}

Nearest General Shops

,,}

Nearest Grocery shops

,,}

Nearest Supermarkets

,,}

Nearest Religious buildings

,,}

Nearest Medical buildings

,,,}

Nearest Airports

}

Nearest Leisure Facilities

,,,,}

Nearest Tourist attractions

,,}

Nearest Train stations

,,,,}

Nearest Bus stations and stops

,,,,}

Nearest Hotels

,,}

Tags

Local Market Stats

Similar Properties

Meta

High Res Images

Compatible Images

Low res Images

Thumbnails

Raw Images