Bright, characterful one-bedroom near Barbican ideal for city lifestyle.
First-floor warehouse conversion with tall ceilings and large windows
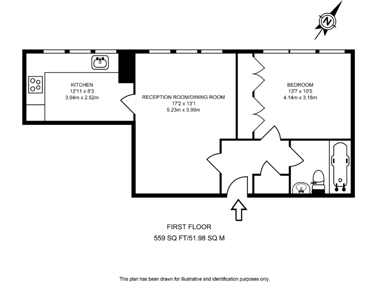
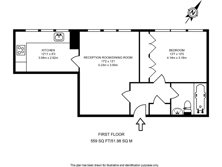
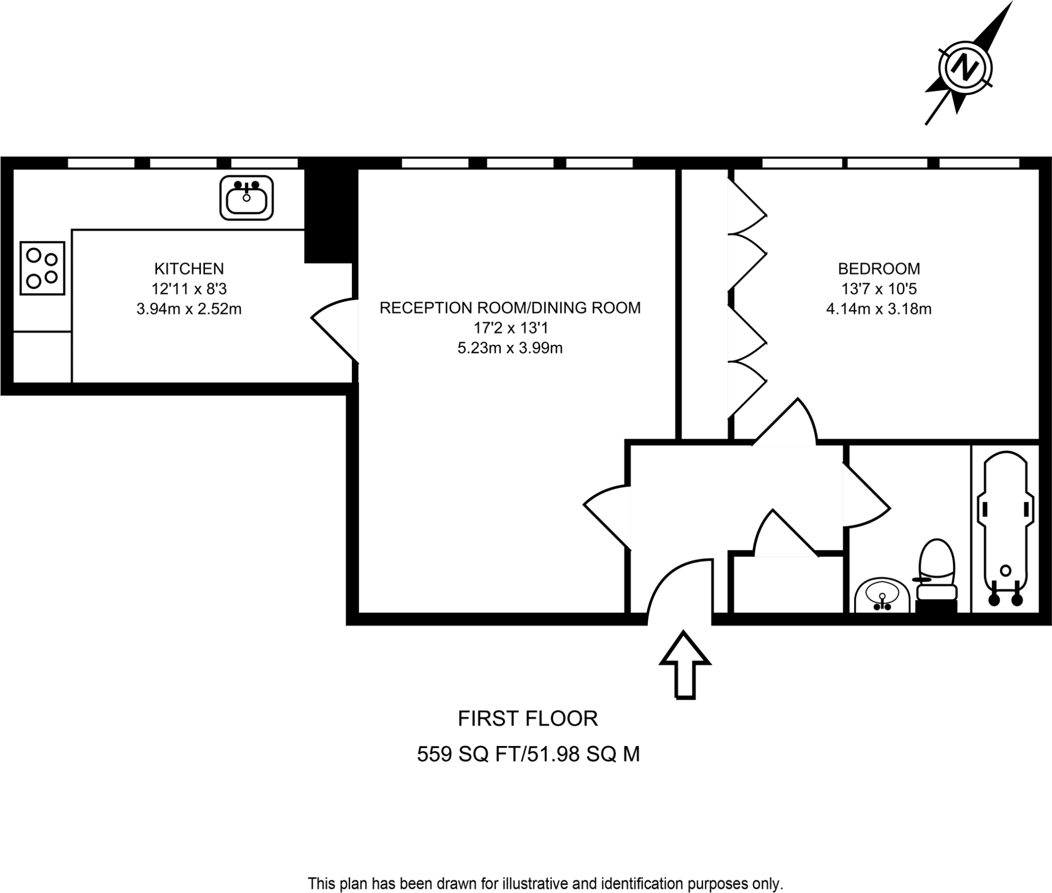
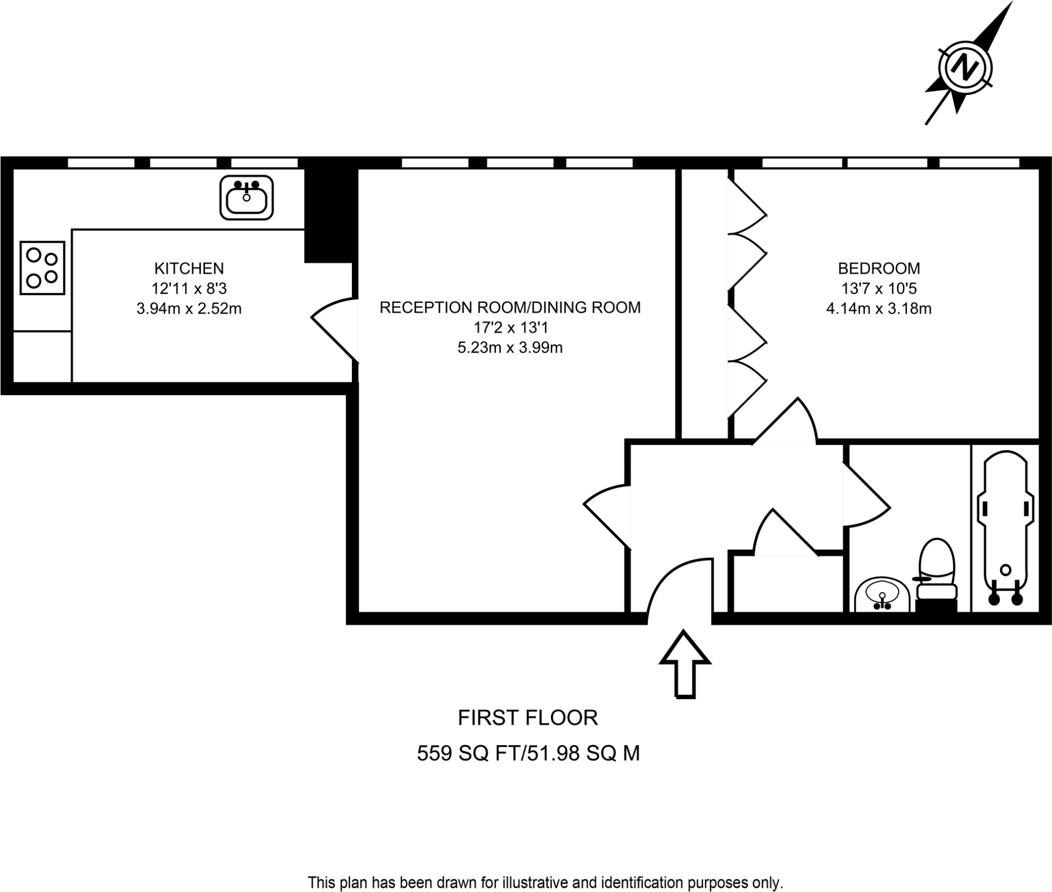
Bright 559 sq ft one-bedroom with fitted wardrobes and hallway storage
Modern fully fitted kitchen and contemporary bathroom
Excellent mobile signal and fast broadband — good for homeworking
Central Clerkenwell location; short walk to Barbican Station and City
Leasehold tenure — check lease length, service charges and ground rent
Inner-city setting with student population; expect possible street noise
Very high local crime rate — consider security measures
Set on the first floor of an attractive converted warehouse, this one-bedroom flat pairs period character with contemporary fittings. Large industrial-style windows and tall ceilings deliver generous natural light to a well-sized reception and a modern, fully fitted kitchen. The bedroom includes fitted wardrobes and the flat has a smart bathroom plus useful hallway storage.
Its Clerkenwell location is a major draw: Barbican Station and the City are within easy reach, while shops, bars and restaurants are on the doorstep. Excellent mobile signal and fast broadband make the flat well suited to city professionals or first-time buyers who work from home. At 559 sq ft the layout feels roomy for a central London one-bedroom.
Buyers should note the property is leasehold; confirm lease length, service charges and ground rent before committing. The immediate area is an inner-city, multicultural neighbourhood with nearby student populations and a very high recorded crime rate, so consider security and potential street noise when viewing. There is no flood risk.
Overall this is a characterful, well-presented central flat with modern conveniences and strong transport links. It suits someone seeking city living and convenient amenities, or an investor targeting strong rental demand — subject to lease details and local considerations.
1 bedroom flat for sale in St Johns Square, Clerkenwell, London, EC1V — £650,000 • 1 bed • 1 bath • 650 ft²
1 bedroom flat for sale in Goswell Road, Clerkenwell, London, EC1V — £765,000 • 1 bed • 2 bath • 808 ft²
1 bedroom apartment for sale in Goswell Road, LONDON, EC1V — £775,000 • 1 bed • 1 bath • 848 ft²
2 bedroom apartment for sale in Ironmonger Row, London, EC1V — £1,495,000 • 2 bed • 2 bath • 1403 ft²
4 bedroom apartment for sale in Central Street, Clerkenwell, EC1V — £1,250,000 • 4 bed • 2 bath • 1559 ft²
1 bedroom apartment for sale in Berry Street, London, EC1V — £795,000 • 1 bed • 1 bath • 833 ft²










































