Auction-ready refurbishment opportunity near transport links and local amenities.
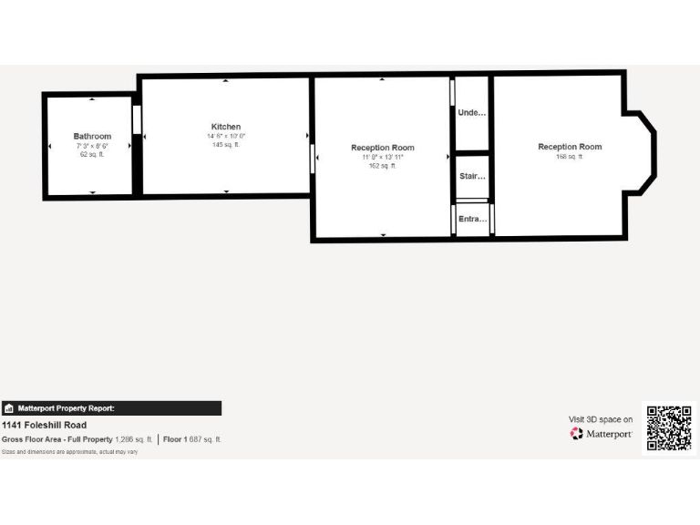
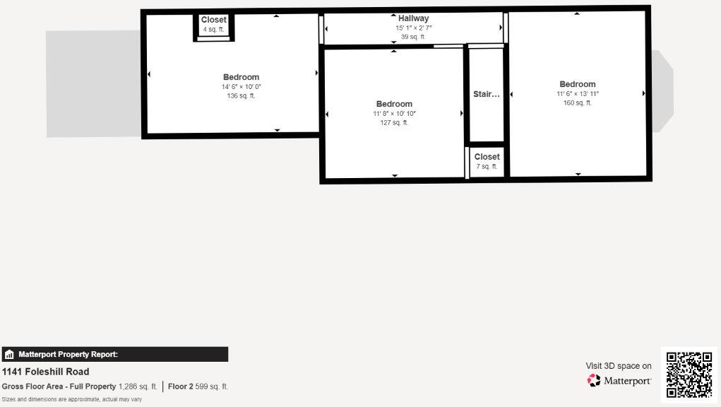
- Freehold vacant end-terrace with three bedrooms and garden
- UPVC double glazing and gas central heating present
- Large overall size, 1,286 sq ft, Victorian period features
- EPC rating C
- Sold at public auction; 42-day completion and admin fee applies
- Needs full modernisation; solid brick walls likely uninsulated
- Damp potential reported; thorough survey recommended
- Area very deprived with higher crime rates
A large, freehold Victorian end-terrace with three bedrooms and a small rear garden, offered vacant and ready for investment or refurbishment. The property benefits from UPVC double glazing, gas central heating and an EPC rating of C, providing a reasonable starting point for modernisation.
Sold at public auction with a 42-day completion period and an administration fee payable on completion, this lot suits cash-ready buyers, developers or landlords able to take on a renovation project. The house sits on Foleshill Road close to frequent buses, shops and local schools, and has fast broadband and excellent mobile signal — useful for lettings or resale appeal.
The property requires significant updating and cosmetic work and may present damp risk in places; walls are solid brick with no assumed insulation. The wider area is very deprived and records higher-than-average crime, so buyers should factor neighborhood considerations into rental or resale strategies. Legal pack review and a site inspection are essential before bidding.
For an investor or experienced DIY buyer, the house offers period features, a bay-windowed facade and potential to add value through renovation or reconfiguration. The plot and end-terrace position give modest development or improvement scope, subject to local planning and building surveys.
2 bedroom end of terrace house for sale in 41 Achal Close, Coventry, West Midlands, CV6 6PE, CV6 — £119,000 • 2 bed • 1 bath • 766 ft²
2 bedroom end of terrace house for sale in 103 Broad Street, Coventry, West Midlands, CV6 5BD, CV6 — £105,000 • 2 bed • 1 bath • 711 ft²
2 bedroom terraced house for sale in 82 Blythe Road, Coventry, CV1 5AW, CV1 — £49,000 • 2 bed • 1 bath • 670 ft²
2 bedroom terraced house for sale in 9 Knight Avenue, Coventry, West Midlands, CV1 2AY, CV1 — £25,000 • 2 bed • 1 bath • 854 ft²
2 bedroom terraced house for sale in 79 Blythe Road, Coventry, West Midlands, CV1 5AU, CV1 — £39,000 • 2 bed • 1 bath • 681 ft²
2 bedroom terraced house for sale in 69 Chandos Street, Coventry, CV2 4HR, CV2 — £55,000 • 2 bed • 1 bath • 773 ft²


























































