Auction-priced renovation opportunity close to schools, transport and city amenities.
- Two bedrooms, traditional Victorian mid-terrace layout
- Vacant freehold; vacant possession on completion
- Guide price £39,000; sold at public auction on 23 Oct 2025
- Needs full modernisation; refurbishment required throughout
- Gas central heating and double glazing present (unknown install dates)
- Solid brick walls likely uninsulated; consider insulation costs
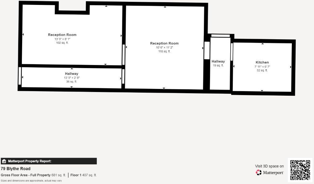
- Small rear garden; compact 681 sq ft footprint
- Located in a very deprived area; factor letting/sale timescales
A vacant mid-terrace Victorian house in CV1, offered at auction and priced to reflect required works. The property has two bedrooms, gas central heating, and double glazing, providing a straightforward modernisation path for a buyer prepared to refurbish.
Set on a small plot with a rear garden, the house suits an investor or hands-on buyer aiming for rental income or resale after renovation. The accommodation is compact (approx. 681 sq ft) with a traditional layout: reception room, kitchen, bathroom, and two first-floor bedrooms. Local amenities, schools and transport links are nearby in a busy city location.
Important negatives are clear: the property needs full modernisation, the solid brick walls likely lack insulation, and it sits in a very deprived area which may affect rental values and sale timing. It will be sold at auction with an administration fee and the usual auction conditions — purchasers will exchange contracts on the fall of the hammer.
Buyers should allow for refurbishment costs, check the legal pack before bidding, and budget for potential additional works uncovered on inspection. For an investor with renovation experience, this is a low-price entry into Coventry city stock with clear scope to add value.
2 bedroom terraced house for sale in 82 Blythe Road, Coventry, CV1 5AW, CV1 — £49,000 • 2 bed • 1 bath • 582 ft²
2 bedroom terraced house for sale in 9 Knight Avenue, Coventry, West Midlands, CV1 2AY, CV1 — £25,000 • 2 bed • 1 bath • 854 ft²
2 bedroom terraced house for sale in 11 Craners Road, Coventry, CV1 5AZ, CV1 — £50,000 • 2 bed • 1 bath • 729 ft²
3 bedroom terraced house for sale in 5 St. Marys Road, Nuneaton, CV11 5AU, CV11 — £55,000 • 3 bed • 1 bath • 1012 ft²
3 bedroom terraced house for sale in 83 Kingsland Avenue, Coventry, CV5 8DZ, CV5 — £69,000 • 3 bed • 1 bath
2 bedroom terraced house for sale in Aldbourne Road, COVENTRY, CV1 — £120,000 • 2 bed • 1 bath














































