Auction opportunity for hands-on investors seeking a renovation project in central Coventry.
Freehold Victorian end-terrace, vacant possession on completion
A vacant freehold Victorian end-terrace offering clear investor potential in Coventry city centre. The property is offered at auction on 23 October 2025 with vacant possession on completion and a 42-day completion period. It has an Energy Performance Rating of C and benefits from mains gas heating and UPVC double glazing, but it requires full modernisation throughout.
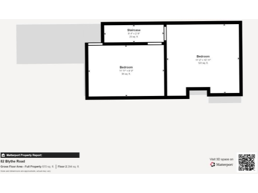
Set over two storeys, the house provides around 670 sq ft (three main rooms plus cellar) with two first-floor bedrooms and a rear garden on a small plot. Solid brick construction with external insulation gives a sound envelope to work with; sensible refurbishment could improve rental yield or resale value in a city rental market.
Important negatives: the house needs renovation, the local area is classified as very deprived with above-average crime, and the sale is by public auction with an administration fee of £2,340 (inc. VAT) payable on the fall of the gavel. Buyers must consult the legal pack and be prepared to exchange unconditionally at auction.
2 bedroom terraced house for sale in 79 Blythe Road, Coventry, West Midlands, CV1 5AU, CV1 — £39,000 • 2 bed • 1 bath • 681 ft²
2 bedroom terraced house for sale in 9 Knight Avenue, Coventry, West Midlands, CV1 2AY, CV1 — £25,000 • 2 bed • 1 bath • 854 ft²
2 bedroom terraced house for sale in 11 Craners Road, Coventry, CV1 5AZ, CV1 — £50,000 • 2 bed • 1 bath • 729 ft²
3 bedroom terraced house for sale in 83 Kingsland Avenue, Coventry, CV5 8DZ, CV5 — £69,000 • 3 bed • 1 bath
2 bedroom terraced house for sale in Ranby Road, Coventry, CV2 — £39,000 • 2 bed • 1 bath • 588 ft²
2 bedroom terraced house for sale in 69 Chandos Street, Coventry, CV2 4HR, CV2 — £55,000 • 2 bed • 1 bath • 773 ft²


































