Auction lot for investors seeking a renovation/refurbishment opportunity close to city amenities.
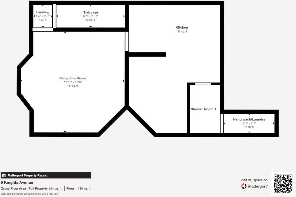
- Vacant freehold mid-terraced house, approx. 854 sq ft
- Sold at public auction; unconditional exchange on fall of hammer
- Two bedrooms, ground-floor shower room, small rear garden
- Gas central heating and double glazing present
- Needs full modernisation; visible external brick repair required
- Solid brick walls likely uninsulated; energy performance rating D
- Area is deprived with high crime; local market largely private renting
- Fast broadband and excellent mobile signal support rental demand
A vacant, freehold mid-terraced house offered for sale at public auction. The property has two bedrooms, gas central heating, double glazing and a small rear garden; the accommodation totals about 854 sq ft and is suited to an investor or buyer comfortable with a renovation project. The EPC is D and the building dates from c.1900–1929.
The house requires modernisation throughout — cosmetic and likely some structural repairs to external brickwork are visible — and walls are uninsulated solid brick (assumed). It presents potential for a straightforward refurbishment, refurbishment for rental, or modest reconfiguration subject to local consents. Broadband is fast and mobile signal is excellent, which supports lettings or resale to private renters.
Buyers should note this lot will be sold at auction with unconditional exchange on the fall of the hammer; vacant possession will be given on completion. The surrounding area is classified as deprived with high local crime rates and a predominance of private renting, so purchasers must factor location-related rental yields, demand and risk into valuations. Viewing will be by block appointment and the sale carries customary auction costs and a published administration fee.
2 bedroom terraced house for sale in 11 Craners Road, Coventry, CV1 5AZ, CV1 — £50,000 • 2 bed • 1 bath • 729 ft²
2 bedroom semi-detached house for sale in London Road, Whitley, Coventry, West Midlands, CV1 — £140,000 • 2 bed • 1 bath • 819 ft²
2 bedroom end of terrace house for sale in 41 Achal Close, Coventry, West Midlands, CV6 6PE, CV6 — £119,000 • 2 bed • 1 bath • 657 ft²
2 bedroom terraced house for sale in Aldbourne Road, COVENTRY, CV1 — £120,000 • 2 bed • 1 bath
4 bedroom semi-detached house for sale in 3 Heera Close, Coventry, CV6 5NR, CV6 — £175,000 • 4 bed • 1 bath • 633 ft²
3 bedroom terraced house for sale in St Margaret Road, Stoke, Coventry, West Midlands, CV1 — £150,000 • 3 bed • 1 bath • 937 ft²


































































































