BS21 6TN - Plot for sale in Farmhouse + 2.36 Acres | Kenn, BS21

View on Property Piper

Plot for sale in Farmhouse + 2.36 Acres | Kenn, BS21

Summary - STONEHOUSE FARM KENN STREET KENN CLEVEDON BS21 6TN

1 bed 1 bath Plot

Stone farmhouse on 2.36 acres with development upside — auction sale, needs full modernisation..
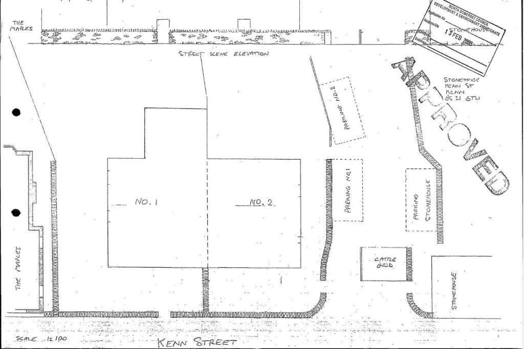
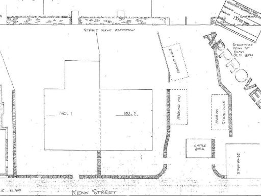
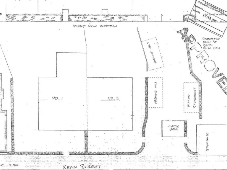
2.36 acre plot with vehicular access and off‑street parking
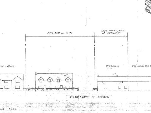
Historic planning granted for two semi‑detached cottages (buyer to verify)
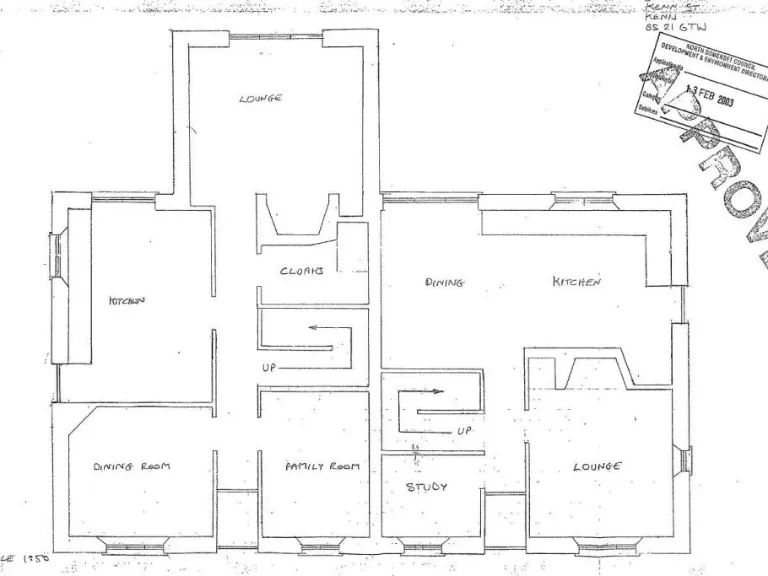
Stone farmhouse (pre‑1900) requires complete modernisation and repairs
Property unoccupied circa 25 years; expect extensive works and upgrades
Overage agreement on rear parts C & D until 31 March 2040
Concrete footings reportedly started; consents may not be extant
Auction sale: buyer’s premium payable and 8‑week completion term
Council tax described as quite expensive; verify ongoing holding costs
A rare rural plot offering a stone farmhouse on a substantial 2.36 acre plot with clear development and refurbishment potential. The site includes vehicle access, off-street parking and historic planning permissions for two semi‑detached cottages, making it attractive to developers or investors prepared to manage planning risk.

The existing farmhouse (circa pre-1900) is unoccupied for about 25 years and requires complete modernisation; buyers should expect significant repair, updating to modern building regulations and potential insulation and services upgrades. Concrete footings for two new builds were started in the past, but the vendor cannot confirm whether consents remain live—interested parties must verify extant planning separately.

There is an overage agreement affecting parts of the rear garden (plan refs C & D) until March 2040; this may trigger a payment if certain planning permissions are granted. Auction sale conditions include a buyer’s premium and an 8‑week completion window, so allow for auction costs, legal pack review and prompt exchange timelines.

For the right buyer this is a countryside opportunity: substantial land with renovation or small‑development upside close to Clevedon and good commuter links to Bristol. The plot suits a developer, investor or buyer seeking a sizeable private garden and a rebuild/refurbishment project, provided they carry out their own due diligence on planning, services and legal constraints.

Property Details

Brochure Descriptions

Image Descriptions

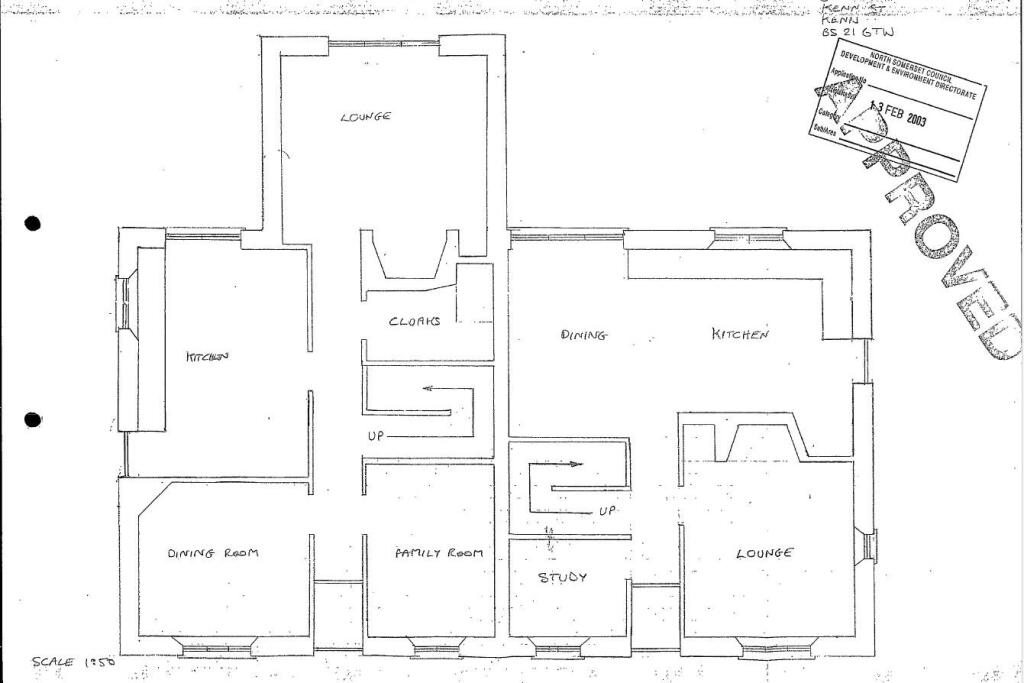
Floorplan Description

Rooms

Textual Property Features

Target Audience

AI Tags

Detected Visual Features

EPC Details

Nearby Schools

Nearest Bars And Restaurants

,,,,}

Nearest General Shops

,,}

Nearest Grocery shops

,,}

Nearest Supermarkets

,,}

Nearest Religious buildings

,,}

Nearest Medical buildings

,,,}

Nearest Airports

,}

Nearest Leisure Facilities

,,,,}

Nearest Tourist attractions

,,}

Nearest Train stations

,,,,}

Nearest Bus stations and stops

,,,,}

Nearest Hotels

,,}

Tags

Local Market Stats

Similar Properties

Meta

High Res Images

Compatible Images

Low res Images

Thumbnails

Raw Images

High Res Floorplan Images

Compatible Floorplan Images

Low res Floorplan Images

FloorplanImages Thumbnail

Raw Floorplan Images