Chain-free three-bedroom with garden, garage and scope to extend STPP.
1930s three-bedroom mid-terrace with bay window charm
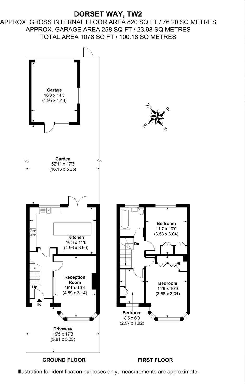
Set on a popular Twickenham street, this 1930s three-bedroom terraced house offers immediate move-in condition with clear scope to add value. The property benefits from a large landscaped rear garden, off-street parking and a double garage — rare for the area — and is offered chain free.
Well-located for families, it sits within easy walking distance of highly regarded schools including Waldegrave and Trafalgar, local green spaces and Whitton station (around 0.5 miles). The house is currently a comfortable, mid-century home but has obvious potential to extend to the rear and convert the loft (subject to planning), which is why extended neighbours now reach higher values.
Practical points to note: the home has one bathroom and a modest total floor area (approximately 820 sq ft), and the solid-brick walls are assumed uninsulated — further insulation and full modernisation would improve energy efficiency. For buyers seeking an established family house with short-term livability and medium-term improvement upside, this presents a compelling prospect.
 4 bedroom terraced house for sale in Selkirk Road, Twickenham, TW2 — £780,000 • 4 bed • 2 bath • 1240 ft²
 4 bedroom terraced house for sale in Selkirk Road, Twickenham, TW2 — £780,000 • 4 bed • 2 bath • 1240 ft² 3 bedroom semi-detached house for sale in Alton Gardens, Twickenham, TW2 — £670,000 • 3 bed • 1 bath • 952 ft²
 3 bedroom semi-detached house for sale in Alton Gardens, Twickenham, TW2 — £670,000 • 3 bed • 1 bath • 952 ft² 3 bedroom end of terrace house for sale in Hall Farm Drive, Whitton, TW2 — £575,000 • 3 bed • 1 bath • 725 ft²
 3 bedroom end of terrace house for sale in Hall Farm Drive, Whitton, TW2 — £575,000 • 3 bed • 1 bath • 725 ft² 3 bedroom semi-detached house for sale in Alton Gardens, Twickenham, TW2 — £675,000 • 3 bed • 1 bath • 812 ft²
 3 bedroom semi-detached house for sale in Alton Gardens, Twickenham, TW2 — £675,000 • 3 bed • 1 bath • 812 ft² 3 bedroom terraced house for sale in Fulwell Park Avenue, Twickenham, TW2 — £650,000 • 3 bed • 1 bath • 1171 ft²
 3 bedroom terraced house for sale in Fulwell Park Avenue, Twickenham, TW2 — £650,000 • 3 bed • 1 bath • 1171 ft² 3 bedroom terraced house for sale in Lincoln Avenue, Twickenham, TW2 — £625,000 • 3 bed • 1 bath • 761 ft²
 3 bedroom terraced house for sale in Lincoln Avenue, Twickenham, TW2 — £625,000 • 3 bed • 1 bath • 761 ft²






































