1930s semi with extended dining room, west garden and garage — great for families.
Three good-size bedrooms with fitted cupboards
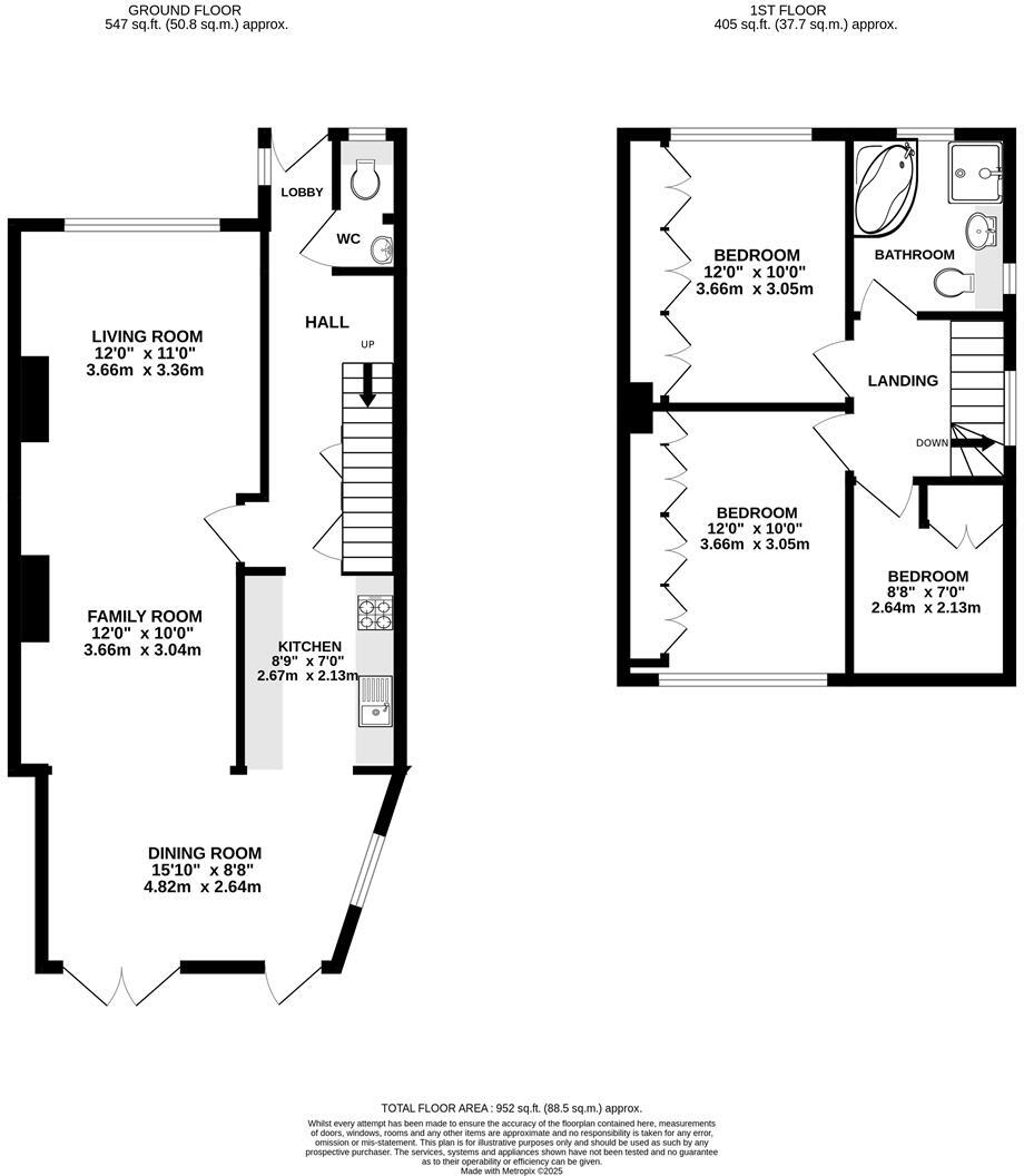
A well-proportioned three-bedroom semi-detached house arranged over two floors, this 1930s family home has been extended at ground level to provide a large rear dining room and a double-length living/family room. The property benefits from double glazing, gas central heating and a west-facing garden with raised deck — useful for evening sun and family outdoor time. A detached garage sits at the end of a shared driveway, providing off-street parking.
The layout suits families: three good-size bedrooms with fitted cupboards upstairs and a four-piece family bathroom including a separate shower. Downstairs there is a fitted kitchen and a convenient cloakroom/WC. The house is well located for local amenities, with Whitton and Twickenham stations and Chase Bridge School all within easy reach, plus a selection of highly rated local primary and secondary schools.
There are a few practical points to note. The property has dated internal finishes in places and some low/standard ceiling heights in the living areas; it currently appears to lack modern wall insulation (solid brick as built), and the double glazing dates from before 2002. There is scope to add value by extending into the loft and updating interiors to modern standards.
Overall this freehold home will suit a growing family seeking good local schools, transport links and outdoor space, or buyers wanting a solid period house with scope to modernise and extend. Viewings are recommended to assess potential and layout firsthand.
3 bedroom semi-detached house for sale in Alton Gardens, Twickenham, TW2 — £675,000 • 3 bed • 1 bath • 812 ft²
3 bedroom semi-detached house for sale in Ashley Drive, Whitton, Twickenham, TW2 — £650,000 • 3 bed • 1 bath • 1148 ft²
3 bedroom semi-detached house for sale in Alton Gardens, Twickenham, TW2 — £669,950 • 3 bed • 1 bath • 807 ft²
3 bedroom semi-detached house for sale in Rivermeads Avenue, Twickenham, TW2 — £625,000 • 3 bed • 1 bath • 1145 ft²
3 bedroom semi-detached house for sale in Cranbrook Drive, Twickenham, TW2 — £599,950 • 3 bed • 1 bath • 952 ft²
3 bedroom semi-detached house for sale in Alton Gardens, Twickenham, TW2 — £699,950 • 3 bed • 1 bath • 1066 ft²






















































