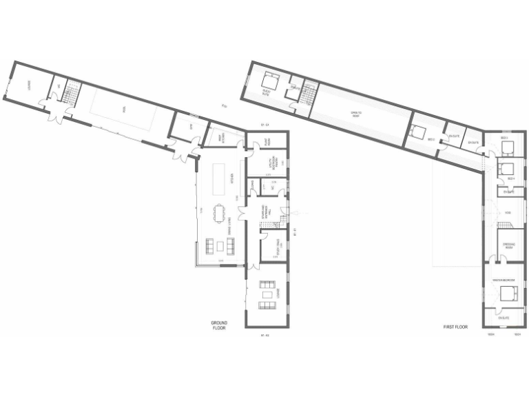
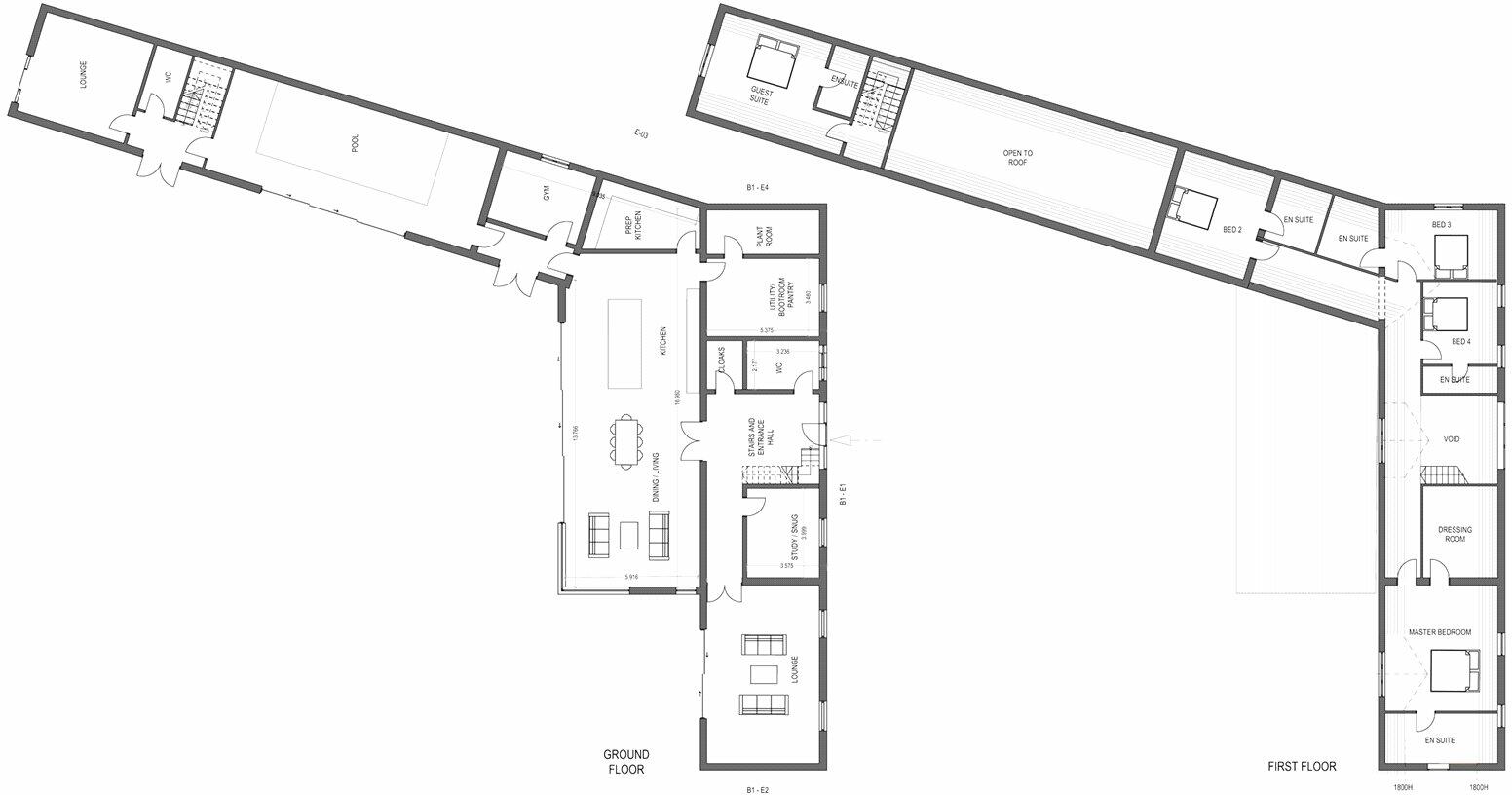
**Standout Features:**
- **Plot Size:** Approximately 2.73 acres (including garden and paddock land)
- **Overall Footage:** 9,000 sq ft across two units with approved planning for conversion into residential properties
- **Location:** Sought-after rural area on the edge of a village (CH3 7JW)
- **Renovation Potential:** Approval for modern design conversion of traditional brick structures
- **Additional Amenities:** Includes high ceilings, an indoor swimming pool, a detached triple garage, and a tennis court
- **Chain-Free Sale:** Immediate possession available
**Potential Downsides:**
- **Condition:** Extensive renovation required; current structures may include unsafe loft areas
- **Community Infrastructure Levy:** Additional costs for the buyer, estimated at £57,128.93
This exceptional opportunity at Barrow Lodge Farm Buildings presents a unique proposition for investors or families seeking a countryside retreat with immense potential. Nestled in scenic rural surroundings, this expansive property consists of two planning-approved units, allowing for creative transformation into modern family homes. Envision hosting gatherings in vast living spaces or enjoying the tranquility of a private garden and paddock, totaling 2.73 acres of peaceful landscape.
Despite the current dilapidated state of the buildings, the approved plans highlight the opportunity for contemporary living with multiple ensuite bedrooms and spaces designed for today’s lifestyle. With off-street parking and the charm of rural life, this property appeals to those with a vision for renovation. Secure this opportunity before it’s gone—such exclusive parcels rarely come to market in this idyllic setting!
6 bedroom detached house for sale in Award winning 5,300 square feet family home with equestrian potential, CH3 — £2,000,000 • 6 bed • 5 bath • 5334 ft²
Land for sale in Milton Green, Chester, Cheshire, CH3 — £425,000 • 1 bed • 1 bath • 7317 ft²
4 bedroom barn conversion for sale in Plot 7, Rookery View, Stoke Hall Lane, Nantwich, CW5 — £950,000 • 4 bed • 4 bath • 3241 ft²
3 bedroom detached bungalow for sale in Manor Park, Great Barrow, CH3 — £425,000 • 3 bed • 2 bath • 1469 ft²
5 bedroom detached house for sale in Saighton, Chester, Cheshire, CH3 — £675,000 • 5 bed • 1 bath • 2500 ft²
4 bedroom detached house for sale in Roosting Barn, Straight Mile, Poulton CH4 9EQ, CH4 — £895,000 • 4 bed • 4 bath • 2095 ft²


































































