Five-unit rural redevelopment with gardens and carports near Tattenhall.
Planning granted for five residential barn conversions
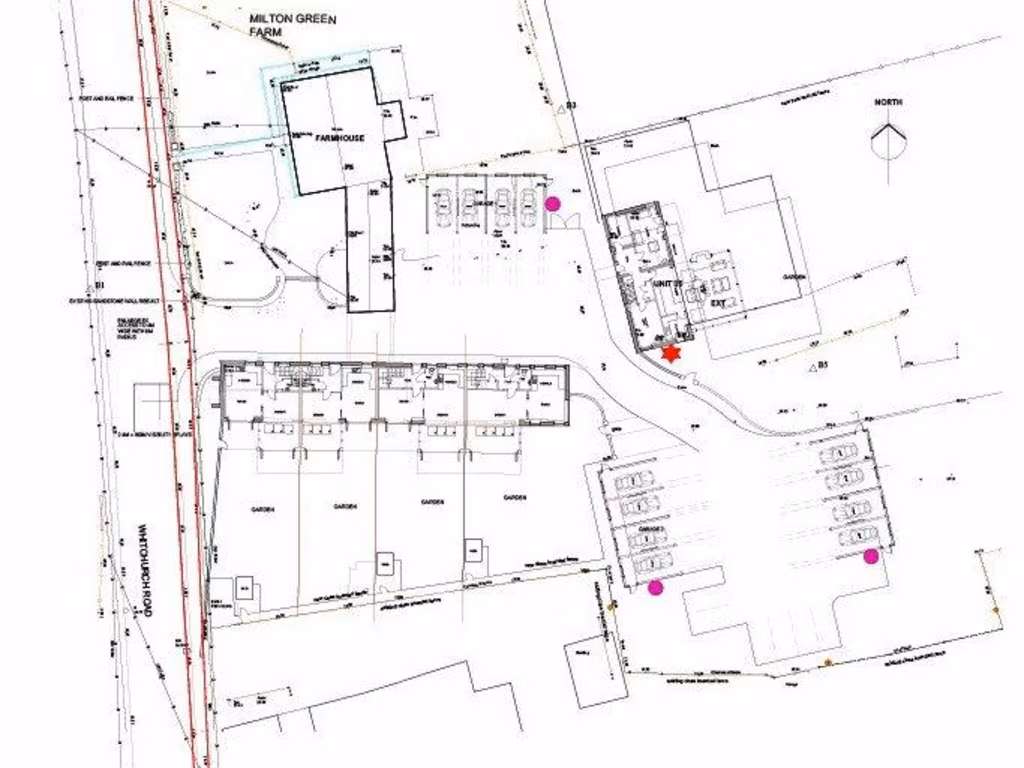
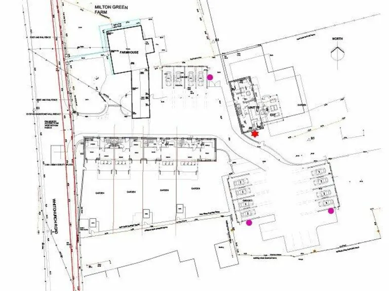
A rare rural redevelopment opportunity on the edge of Tattenhall, Milton Green Farm has full planning approval for five open-market barn conversions, delivering about 680 sq.m (7,317 sq.ft) of accommodation across a courtyard of traditional brick ranges. The scheme provides four two-storey mews barns and a detached 3-bedroom house, each with south-facing domestic gardens, allocated carport garaging and visitor parking on a site of approximately 1.19 acres.
The existing brick buildings are structurally reusable but include fibre sheet (asbestos) roofing and two modern steel portal-framed units that require demolition. Key technical information is available, including structural reports, an asbestos report and quote, drainage design (bio-disc treatment plant), bat mitigation licence and approved planning drawings. There is mains water and electricity nearby; heat is anticipated via air-source heat pumps.
Planning has been granted by Cheshire West & Chester (refs include 23/00498/FUL & 23/00499/LBC) and an LDC for implementation exists (23/00497/LDC). Note the permission must be implemented by 05/03/2027. Some applications for larger rear extensions were refused and an appeal is pending for those specific changes (appeal relates to 23/01196/s19 & 23/00915/s73).
Practical liabilities include a Community Infrastructure Levy (estimated £6,000–£8,000 in total) and buyer responsibility for all statutory service connections, final boundary works and construction of the courtyard garage block for the farmhouse. The setting offers good local amenities in Tattenhall, fast broadband potential and low crime levels — attractive for buyers seeking rural conversions with strong local schooling and commuter access to Chester and the North West road network.
Plot for sale in Station Road, Little Barrow, Nr Chester, Cheshire, CH3 — £700,000 • 1 bed • 1 bath • 9000 ft²
Plot for sale in Wimboldsley, Middlewich, Cheshire, CW10 — £1,500,000 • 1 bed • 1 bath • 23107 ft²
Barn conversion for sale in Hunsterson Road, Hatherton, Nantwich, Cheshire, CW5 — £495,000 • 1 bed • 1 bath
Barn conversion for sale in Royals Green Farm Barns SY13 — £425,000 • 1 bed • 1 bath • 10000 ft²
Land for sale in The Limes, Holme Street, Tarvin, Chester, Cheshire, CH3 8EQ, CH3 — £1,200,000 • 1 bed • 1 bath
Detached house for sale in Dudleston, Nr Ellesmere., SY12 — £245,000 • 1 bed • 1 bath • 2750 ft²










































