**Standout Features:**
- Spacious detached farmhouse with 5-6 bedrooms and 1 bathroom
- Four versatile reception rooms
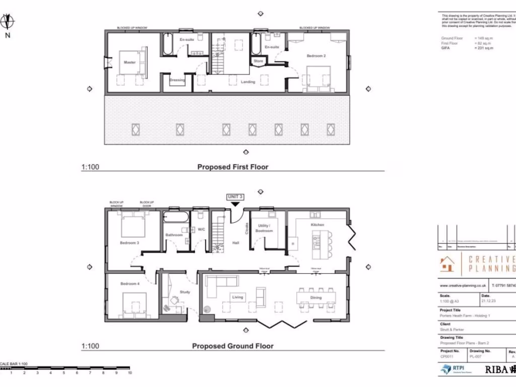
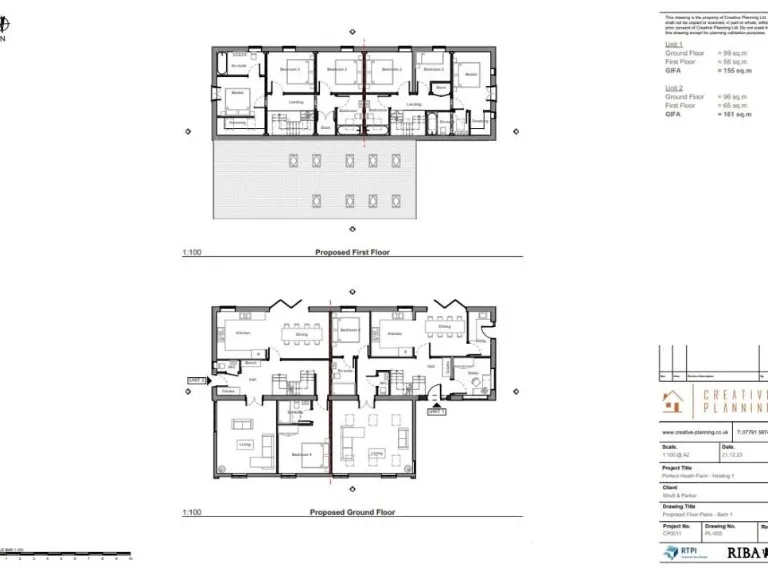
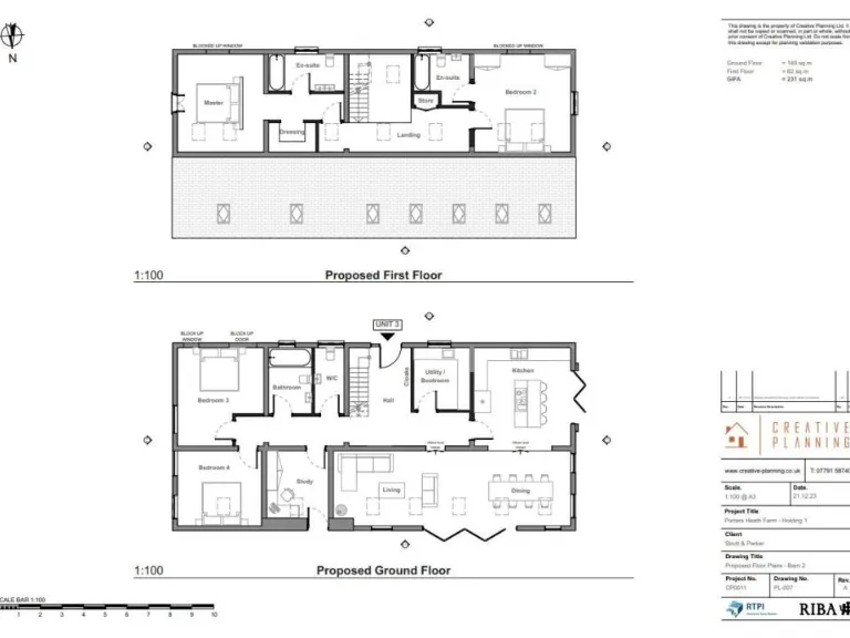
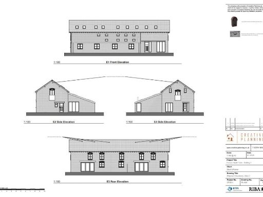
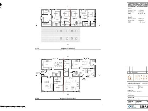
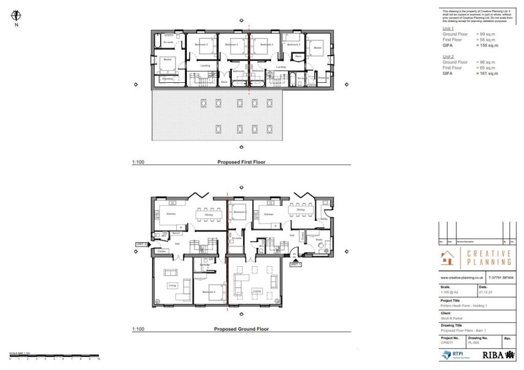
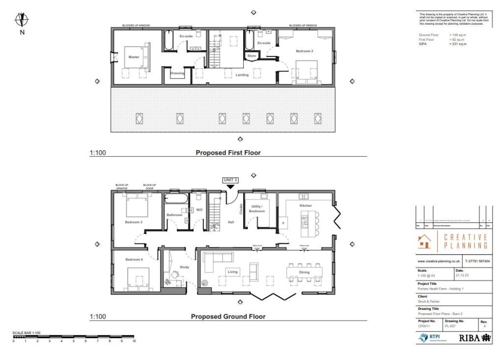
- Planning permission granted for converting barns into three residential units (24/00657/FUL)
- Expansive property encompassing approximately 4.93 acres
- Located in a tranquil rural setting with scenic countryside views
- Requires renovation but offers great potential for customization
- Very low crime rate in an affluent area
- Excellent communication links to Chester and nearby cities
**Summary:**
Discover Porters Heath Farm, a remarkable opportunity for buyers seeking a spacious family home with extensive development potential. This detached farmhouse offers approximately 2,500 square feet of living space, featuring five to six bedrooms and four well-proportioned reception areas—ideal for entertaining or family gatherings. Nestled within nearly 5 acres of picturesque countryside, the property is accompanied by planning permission to transform two traditional barns into three residential dwellings, making it a superb investment for those interested in expanding their property portfolio.
Although the home requires renovation, it presents a creative canvas for personal design, set in a peaceful rural environment just southeast of Chester. Ideal for families or investors, its proximity to local amenities, reputable schools, and excellent transportation links ensures a balanced lifestyle between tranquility and accessibility. The next open viewing dates are Thursday, July 31st and Thursday, August 14th from 11 AM to 3 PM—seize the chance to explore this unique opportunity before offers close on August 19th.
6 bedroom detached house for sale in Stoak, Chester, Cheshire, CH2 — £550,000 • 6 bed • 2 bath • 4460 ft²
7 bedroom detached house for sale in Chester, Cheshire, CH2 — £1,500,000 • 7 bed • 2 bath • 4763 ft²
3 bedroom semi-detached house for sale in Lodge Lane, Saughall, Chester, Cheshire, CH1 — £300,000 • 3 bed • 1 bath • 1872 ft²
4 bedroom farm house for sale in Nantwich Road, Broxton, Cheshire, CH3 — £650,000 • 4 bed • 1 bath • 5039 ft²
5 bedroom house for sale in Former Farmhouse with Substantial Outbuildings set in 1 Acre Private Gardens, CH2 — £595,000 • 5 bed • 2 bath • 1884 ft²
6 bedroom detached house for sale in Chorley Stock Farm, Chorley Stock Lane, Chorley, CW5 8JR., CW5 — £1,350,000 • 6 bed • 1 bath • 6886 ft²






























































