Freehold, part‑let asset with parking and three‑phase power ready for refurbishment.
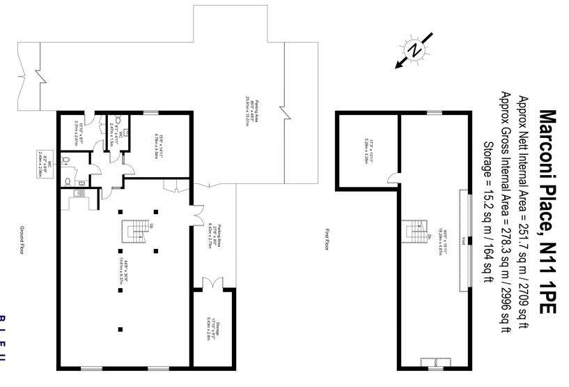
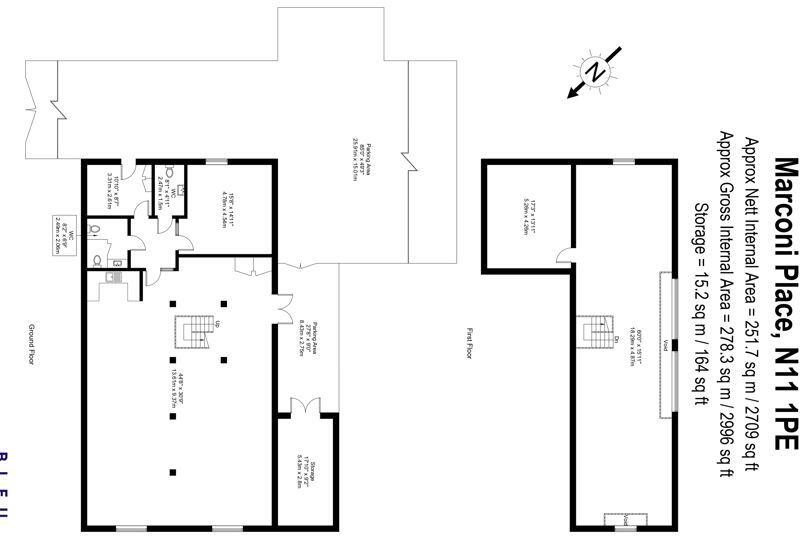
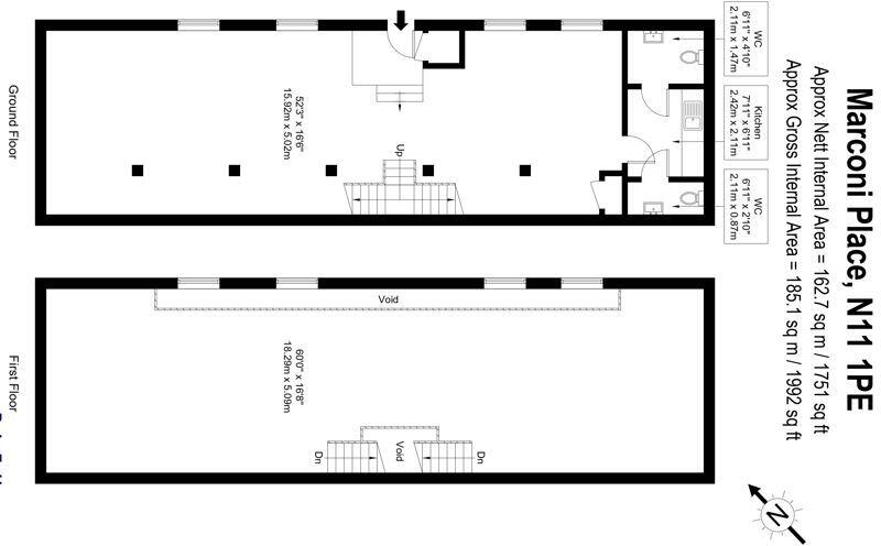
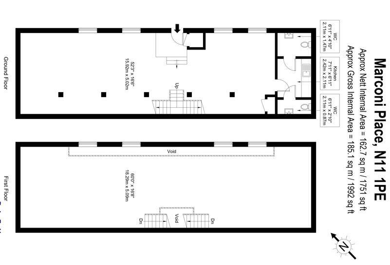
Approx 4,988 sq ft of flexible multi‑storey commercial space
A substantial former telephone exchange offering almost 5,000 sq ft of flexible commercial space on a large plot in a quiet cul‑de‑sac. The building retains industrial character — exposed brickwork, high ceilings and large windows — and benefits from 3‑phase power, off‑street parking for six cars and strong transport links to the A406 and New Southgate Overground. Part of the property is income producing (Unit 1 currently let at £33,800 pa) while the larger side unit is mostly vacant and could suit offices, workshop, nursery or dark kitchen subject to planning.
For investors this is a rare freehold opportunity with immediate rental income, clear refurbishment upside and multiple potential uses. The property is VAT‑elected and rateable values are provided for each unit, so buyers should factor tax and business rates into valuations. The current Energy Performance Certificate is rated E and some works may be required to improve energy efficiency.
Important considerations: the area records above‑average crime, planning consent will be needed for many alternative uses, and parts of the building will require refurbishment to modern standards. Legal costs are each side’s responsibility. Overall this is a versatile, characterful asset suited to an owner‑occupier or investor who can capitalise on conversion or improvement potential.
Commercial property for sale in Gateway Mews, London, N11 — £1,100,000 • 1 bed • 1 bath • 3111 ft²
Light industrial facility for sale in Riverwalk Business Park, Riverwalk Road, Enfield, Greater London, EN3 — £1,100,000 • 1 bed • 1 bath • 3972 ft²
Mixed use property for sale in North Circular Road, London, NW2 — £1,600,000 • 1 bed • 1 bath • 2777 ft²
4 bedroom mixed use property for sale in High Road, Wood Green, London, N22 — £1,100,000 • 4 bed • 1 bath • 1967 ft²
Office for sale in Georges Road, Holloway, Islington, London, N7 — £1,250,000 • 1 bed • 1 bath • 2121 ft²
Commercial property for sale in Derwent Road, Ealing, W5 — £650,000 • 1 bed • 1 bath • 3000 ft²






















































