**Standout Features:**
- Freehold commercial property in a secure gated business park
- High specification finish with modern industrial aesthetic
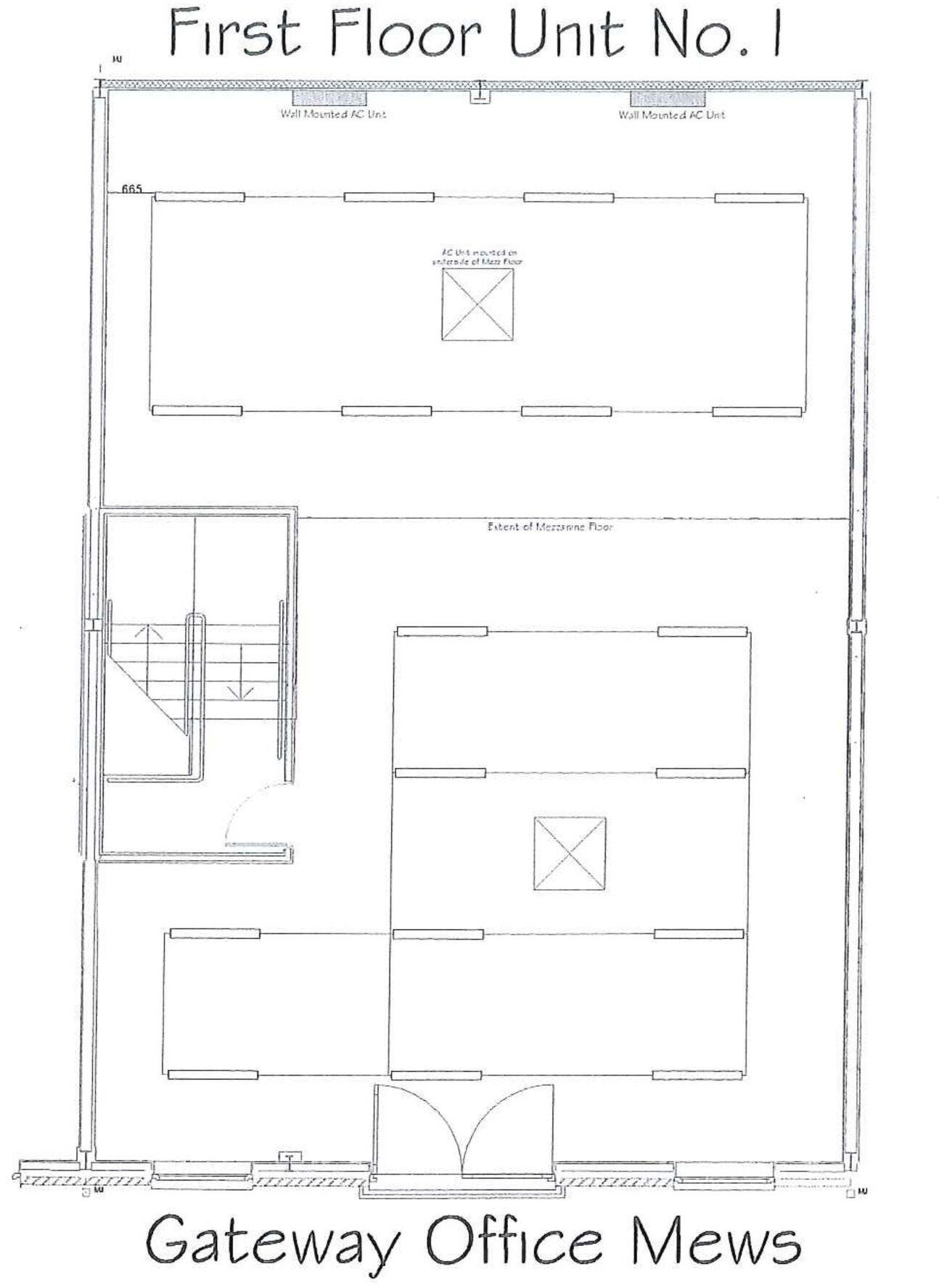
- Approx. 3,111 sq. ft. of flexible open-plan office space
- Advanced features including Cat 7 data cabling, fibre optic internet, and three-phase power
- Four dedicated off-street parking spaces
- Excellent location close to New Southgate and Bounds Green stations
- Immediate occupation available, VAT exempt
**Summary:**
Discover an impressive freehold commercial property boasting a high specification finish, perfect for businesses seeking space and functionality. This expansive 3,111 sq. ft. office blends modern industrial design with top-tier amenities, including air conditioning, LED lighting, and glass partitions, creating an inviting and efficient workspace. Located just off the A406 North Circular, with easy access to public transport, it offers strategic connectivity to Central London.
The property features a secure gated entrance and includes four designated parking spaces, adding value for both staff and clients. However, potential buyers should be aware of the average crime rate and the service charge of approximately £3,000 per annum. With wiring in place for CCTV and excellent mobile signal, it’s ready for immediate occupation, making it ideal for a variety of Class E uses.
Whether you're an investor or planning to establish your business, this property presents an attractive opportunity not to be missed in a bustling, multi-ethnic cosmopolitan area.
Office for sale in 8 Heathgate Place, Hampstead, London, NW3 2NU, NW3 — £2,000,000 • 1 bed • 1 bath • 3876 ft²
Office for sale in 8 Heathgate Place, 75 - 87 Agincourt Road, Hampstead, NW3 2NU, NW3 — £2,000,000 • 1 bed • 1 bath • 3876 ft²
Commercial property for sale in - 3 Marconi Place, Friern Barnet, London, N11 — £1,300,000 • 1 bed • 1 bath • 4988 ft²
Office for sale in Georges Road, Holloway, Islington, London, N7 — £1,250,000 • 1 bed • 1 bath • 2121 ft²
Distribution warehouse for sale in Lower Park Road, Arnos Grove, New Southgate, London, N11 — POA • 1 bed • 1 bath • 5231 ft²
Office for sale in Unit B North Gainsborough Studios, 1 Poole Street, London, N1 5EB, N1 — £1,250,000 • 1 bed • 1 bath • 2508 ft²














































