**Standout Features:**
- Sought-after location in Upper Prestatyn
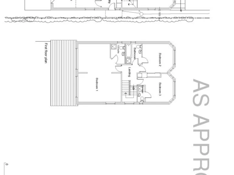
- Planning permission for a 3/4 bedroom detached home
- Backing onto Meliden Golf Course
- Close proximity to town center amenities, including Tesco and Marks & Spencer
- Ideal for family living with spacious layout options
**Potential Concerns:**
- Conditions attached to the planning permission (specifics available upon request)
- Land maintenance may be needed due to overgrown vegetation
Nestled in the desirable Upper Prestatyn, this building plot offers a remarkable opportunity to create your dream family home. With planning permission already in place for a spacious 3/4 bedroom residence, you can envision a layout that includes a large lounge, open-plan kitchen/diner/living room, en-suites for every bedroom, and even the potential for a luxurious home cinema or gym on the top floor.
Backing onto the tranquil Meliden Golf Course, this plot not only provides scenic views but also a peaceful atmosphere perfect for families looking to thrive. Just a short walk to Prestatyn's bustling town center, you'll enjoy easy access to various shops and services while still retaining the charm of a suburban lifestyle. Don't miss out on this unique chance to build a home in such a sought-after location—opportunities like this are not likely to last long!
Land for sale in Plot Of Land, 41 Plas Uchaf Ave, LL19 — £125,000 • 1 bed • 1 bath • 3294 ft²
Land for sale in Ffordd Pen Y Maes, Trefnant. LL16 4YL, LL16 — £130,000 • 4 bed • 2 bath
Plot for sale in Residential Development Land, Plas Isaf Drive, Abergele, LL22 — £480,000 • 1 bed • 1 bath • 2670 ft²
Plot for sale in Building Plots & Land at Pentre Bach Farm, Lower Foel Road, Dyserth LL18 6AU, LL18 — £325,000 • 4 bed • 1 bath
Plot for sale in Land next to No.50 Glan Y Don, Greenfield, Flintshire, CH8 — £40,000 • 3 bed • 1 bath
Plot for sale in Carmel, Holywell, CH8 — £280,000 • 6 bed • 6 bath • 1776 ft²






















