**Standout Features:**
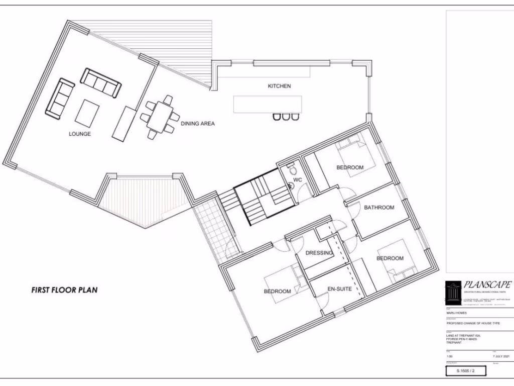
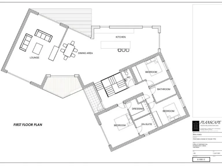
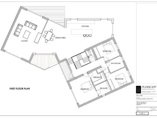
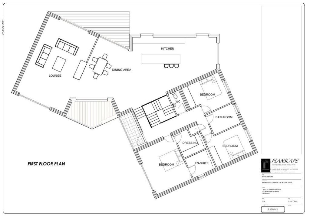
- Full planning permission in place for a modern 4-bedroom home.
- Stunning open-plan living design with high ceilings and large windows.
- Garage and dedicated parking on a 0.08-hectare plot in Trefnant.
- Peaceful village setting with low crime rates and excellent mobile and broadband connectivity.
**Potential Buyer Appeal:**
This exceptional plot of land in Trefnant offers a unique opportunity to build your dream home. With full planning permission for a contemporary 4-bedroom house, the design emphasizes spacious and stylish living areas enriched with natural light. Perfect for families, first-time buyers, or investors looking to tap into the rising demand for bespoke homes in tranquil settings.
Enviably located in a charming village, this property is nestled amid a supportive community with access to essential amenities, leisure spaces, and good transport links to Denbigh and St Asaph. While the plot size is compact, it is perfect for a low-maintenance lifestyle, and proximity to parks and community facilities enhances the family-friendly vibe.
There's an opportunity for first-time builders to gain guidance from the current owner, easing potential anxieties about starting a new construction project. However, note that the local council tax is relatively high, which is essential for budgeting considerations. Don’t miss this rare chance to secure a premium plot in a picturesque location—envision your future home amidst this serene backdrop today!
**Take the first step towards your new build; contact us to explore further details and scheduling.**
Land for sale in Pen Y Cefn Road, Caerwys, CH7 — £250,000 • 1 bed • 1 bath • 1982 ft²
Land for sale in Land at 28 Calthorpe Drive, Prestatyn, LL19 — £179,000 • 1 bed • 1 bath
Land for sale in Plot Of Land, 41 Plas Uchaf Ave, LL19 — £125,000 • 1 bed • 1 bath • 3294 ft²
Plot for sale in Carmel, Holywell, CH8 — £280,000 • 6 bed • 6 bath • 1776 ft²
Plot for sale in Residential Development Land, Plas Isaf Drive, Abergele, LL22 — £480,000 • 1 bed • 1 bath • 2670 ft²
Plot for sale in Building Plots & Land at Pentre Bach Farm, Lower Foel Road, Dyserth LL18 6AU, LL18 — £325,000 • 4 bed • 1 bath


































