Large freehold development plot with consent for three executive homes, close to town..
- Planning consent (Ref: 0/50292) for three executive houses included
- Large elevated plot backing onto open agricultural land
- Plas Isaf period house derelict and unsafe to enter
- Mains services previously connected but untested by seller
- Freehold title; no identified flood risk
- Area shows above-average crime and very high deprivation
- Alternative option to repair Plas Isaf subject to LPA consent
- Early viewing and independent site investigations recommended
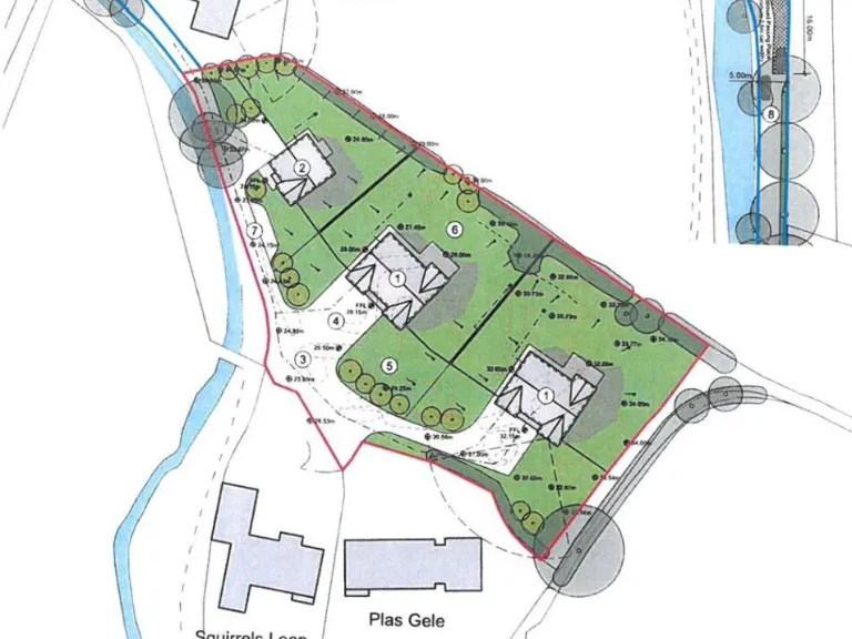
A high-quality residential development plot in an elevated, private position just a short walk from Abergele town centre. The site backs onto open agricultural land, offering a rural aspect while retaining easy access to local amenities. Planning consent (Ref: 0/50292) is granted for demolition of Plas Isaf and construction of three executive houses — two x 4-bed (≈2,400 sq ft each) and one x 3-bed (≈1,200 sq ft) — providing clear delivery potential for a small development scheme.
Plas Isaf is a period property that has fallen into serious disrepair. It is unsafe to enter and currently requires full renovation or demolition; purchasers may alternatively investigate a repair-and-reuse approach subject to local authority approval. Services (mains water, electricity, drainage and gas) have previously been connected but have not been tested — buyers must satisfy themselves on service condition and capacity.
The site is offered freehold with no identified flood risk and a very large plot size, making it suitable for executive family homes or an investment redevelopment. Note the wider area indicators: above-average crime and high local deprivation; those factors should be considered in viability, valuation and future marketing. Early inspection of planning documentation and independent technical surveys are strongly recommended.
Land for sale in 163 Ffordd Y Morfa, Abergele, LL22 — £35,000 • 1 bed • 1 bath
Land for sale in Glynton, Top Llan Road, Glan Conwy, LL28 — £600,000 • 1 bed • 1 bath
Land for sale in Glynton, Top Llan Road, Glan Conwy, Colwyn Bay, Conwy, LL28 5NP, LL28 — £600,000 • 1 bed • 1 bath
Land for sale in Development Land Opportunity - 1.64 Acres, North Wales Business Park, Abergele, Conwy, LL22 8LJ, LL22 — POA • 1 bed • 1 bath
Land for sale in Land adjoining Sycharth, Betws Gwerfil Goch, Corwen, LL21 — £130,000 • 1 bed • 1 bath
Land for sale in Commodore House, North Wales Business Park, Cae Eithin, Abergele, Conwy, LL22 — £310,000 • 1 bed • 1 bath


















