Create a bespoke detached home close to strong local schools and amenities.
Prominent freehold plot with wide road frontage and privacy hedging
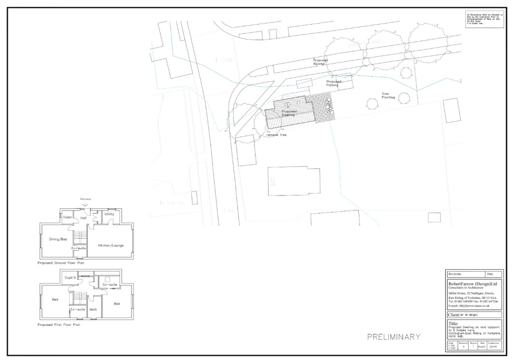
Decent-sized plot with individual detached home potential
Pre-application planning enquiry included — not full permission
Measurements are approximate; independent survey recommended
Garden partly landscaped but also overgrown; clearance required
Very slow broadband; plan for private internet solutions
Low flood and crime risk in an affluent suburban area
Council Tax payable once a dwelling is constructed
A prominent freehold plot on Endyke Lane offers a rare chance to build an individual detached home in a popular Cottingham location. The site benefits from wide road frontage, a decent plot size and a submitted pre-application planning enquiry, which gives buyers early insight into potential design and planning constraints. Local schools are highly regarded and the neighbourhood is a quiet, white suburban community with low crime and attractive surroundings.
The land currently includes landscaped and overgrown garden areas with mature hedging that provide privacy but require clearance and maintenance before construction. Measurements provided are estimates from an architect’s scaled diagram; buyers should commission their own surveys and confirm exact boundaries. Broadband provision in the area is very slow, so new owners should plan for private connectivity solutions if high-speed internet is important.
This is offered as freehold with a guide price of £125,000. Pre-application work is included, but this is not formal planning permission—prospective purchasers should make their own enquiries with the local authority and budget for application costs and possible conditions. Council Tax will apply once a dwelling is built and banded. The plot suits someone seeking a bespoke new-build (owner-occupier or investor), comfortable managing a site project and associated permissions.
Plot for sale in Land at 310 Northgate, Cottingham, HU16 — £180,000 • 4 bed • 2 bath • 2000 ft²
Land for sale in Minster Way,Beverley, East Riding Of Yorkshire, HU17 — £1,500,000 • 1 bed • 1 bath
3 bedroom detached house for sale in Southwood Road, Cottingham, East Riding Of Yorkshire, HU16 — £395,000 • 3 bed • 2 bath • 1033 ft²
Plot for sale in Park Avenue, Brandesburton YO25 8QR, YO25 — £70,000 • 1 bed • 1 bath • 5167 ft²
4 bedroom detached house for sale in The Paddock, Cottingham, HU16 4RA, HU16 — £500,000 • 4 bed • 3 bath • 2160 ft²
4 bedroom detached bungalow for sale in North Moor Lane, Cottingham, HU16 4JH, HU16 — £499,000 • 4 bed • 1 bath • 2100 ft²






























