LL28 5NP - 1 bed development opportunity glynton in Top Llan Road, LL2…

View on Property Piper

Land for sale in Glynton, Top Llan Road, Glan Conwy, Colwyn Bay, Conwy, LL28 5NP, LL28

Summary - Glynton, Top Llan Road, Glan Conwy, Colwyn Bay, Conwy, LL28 5NP LL28 5NP

1 bed 1 bath Land

Full planning for nine homes on a large suburban plot; verify size and tenure..
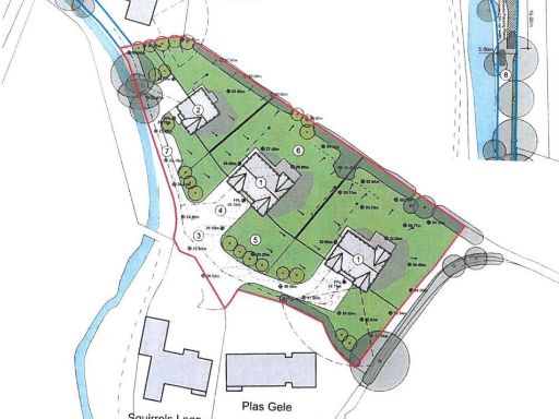
- Full planning permission granted for nine residential dwellings
- Circa 1.0 acre of grassed land (listing also references c.1.8 acres; verify)
- Road frontage to Top Llan Road with suburban edge location
- Distant estuary/river views and countryside outlook to south/west
- Predominantly flat with some boundary tree cover and gentle fall
- Offers over £600,000; freehold stated but tenure recorded as unknown
- Area classed as very deprived — may affect values and sales pace
- Excellent mobile signal and fast broadband; flood risk recorded as none
A rare development plot on the fringe of Glan Conwy with full planning permission for nine residential dwellings. The site benefits from road frontage to Top Llan Road, open aspects to the south and west, and distant estuary/river views which can improve marketability for future homes. Services appear readily available given the suburban edge location; mobile signal and broadband are reported as excellent and fast.

The land is described as predominantly grassed with some boundary tree cover and a gentle fall. The plot size is large for the locality and offers potential for good separation from neighbouring houses on the lower boundary, helping privacy and outlook. Planning in place significantly de-risks the initial consenting stage and shortens time to delivery for a builder or investor targeting small-scale residential schemes.

Notable constraints are factual and important: the listing gives an asking/guide of offers over £600,000 and tenure is recorded as unknown, which will require verification. The wider area is classed as very deprived, which can affect sales values, pricing expectations and funding terms. The description also contains conflicting plot-size notes (circa 1.0 acre in some fields, approximately 1.8 acres in a summary); the exact area should be confirmed in legal/title documents before offer.

This site suits a developer or investor able to proceed quickly with implementation and market new homes locally. Practical next steps are desktop due diligence on title and planning conditions, ground investigation, and a local market appraisal to validate sales values in the surrounding, economically challenged area.

Property Details

Brochure Descriptions

Image Descriptions

Textual Property Features

Target Audience

AI Tags

Detected Visual Features

Nearest Bars And Restaurants

,,,,}

Nearest General Shops

,,}

Nearest Grocery shops

,,}

Nearest Supermarkets

,,}

Nearest Religious buildings

,,}

Nearest Medical buildings

,,,}

Nearest Leisure Facilities

,,,,}

Nearest Tourist attractions

,,}

Nearest Train stations

,,,,}

Nearest Bus stations and stops

,,,,}

Nearest Hotels

,,}

Tags

Local Market Stats

AirBnB Data

Similar Properties

Meta

High Res Images

Compatible Images

Low res Images

Thumbnails

Raw Images