High‑spec modern living with strong commuter links and practical extras.
Fixed price — no bidding or closing‑date process
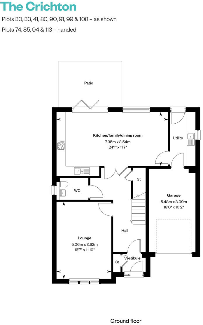
German studio kitchen with Siemens appliances included
Open plan family/kitchen/dining with bi‑fold doors to garden
Fitted wardrobes to principal bedrooms; flexible fifth bedroom/study
Integral single garage, private driveway and EV charging provision
Backed by 10‑year NHBC warranty and two‑year after‑sales service
Council Tax band is high; confirm ongoing running costs
Local area noted as very deprived; check local services and outlook
This detached five‑bedroom new build at Millgate Lawns is aimed squarely at families seeking contemporary, low‑maintenance living near Edinburgh. The home’s German‑designed kitchen, Siemens appliances and open‑plan family/kitchen/dining space with bi‑fold doors create a practical heart for everyday life and entertaining. Fitted wardrobes to the main bedrooms, a separate utility, integral garage, private driveway and EV charging provision add convenient, ready‑to‑use features.
Built to modern efficiency standards and backed by a 10‑year NHBC warranty, the house promises lower running costs — the developer cites average energy savings — and includes a 24‑hour emergency response and two‑year after‑sales support. The location offers quick access to the M9 for commuting, plus nearby parks, schooling, a supermarket, leisure centre, cycle paths and a marina for family activity.
Important facts and potential drawbacks are set out plainly. Council Tax is described as quite expensive and the local area is noted as very deprived, which could affect local services and long‑term values. There is some administrative cost: an annual factor fee of £208.01 plus a £100 float. Also note an inconsistency in the provided details about bathroom count (developer text refers to multiple bathrooms but summary data lists one) — buyers should confirm the exact layout and bathroom provision before proceeding.
Overall, the property suits buyers who prioritise high‑spec, energy‑efficient new build living with family‑friendly layout and commuter links, but who will accept estate servicing charges and should verify final room and bathroom counts prior to purchase.
5 bedroom detached house for sale in Beatlie Road,
Winchburgh,
EH52 6WL, EH52 — £574,995 • 5 bed • 1 bath • 1975 ft²
3 bedroom terraced house for sale in Beatlie Road,
Winchburgh,
EH52 6WL, EH52 — £274,995 • 3 bed • 1 bath • 902 ft²
4 bedroom detached house for sale in Beatlie Road,
Winchburgh,
EH52 6WL, EH52 — £444,995 • 4 bed • 1 bath • 1402 ft²
5 bedroom detached house for sale in Beatlie Road,
Winchburgh,
EH52 6WL, EH52 — £569,995 • 5 bed • 1 bath • 1961 ft²
4 bedroom detached house for sale in Ben More Drive, East Calder, EH53 0UZ, EH53 — £474,995 • 4 bed • 1 bath • 1646 ft²
3 bedroom semi-detached house for sale in Turnhouse Road,
Edinburgh,
EH12 0AX, EH12 — £419,995 • 3 bed • 1 bath • 1142 ft²














































































































































